Galleria
\\Raum_serveur\05_PROJETS\00_INPROGRESS-02\LA GOUESNIERE\13_COM\01_PLANS\GOUE_com-Plans MASSE (1)
Raum, Centro di manutenzione per camion, planimetria
\\Raum_serveur\05_PROJETS\00_INPROGRESS-02\LA GOUESNIERE\13_COM\01_PLANS\GOUE_com-Plans RDC_EN (1)
Raum, Centro di manutenzione per camion, pianta
\\Raum_serveur\05_PROJETS\00_INPROGRESS-02\LA GOUESNIERE\13_COM\01_PLANS\GOUE_com-Plans COUPE_B_FR (1)
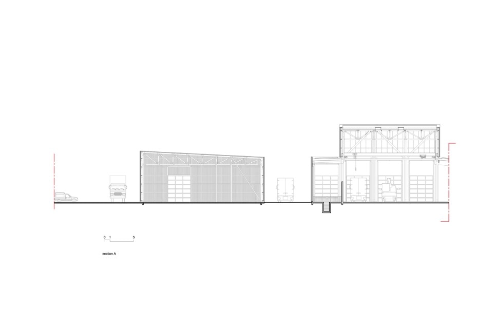
Raum, Centro di manutenzione per camion, sezione
Due edifici con funzioni differenti racchiudono un ampio cortile interno: uno contiene le funzioni amministrative, un negozio di componenti e laboratori di guida; il secondo consiste in un deposito con anche un parcheggio esterno coperto. Tutti i dispositivi sono progettati per ottimizzare le condizioni delle varie fasi lavorative, la sicurezza del team, le condizioni acustiche e luminose, il rapporto tra materiale e ambiente circostante.
Centro di manutenzione per camion, La Gouesnière, Francia
Tipologia: uso misto
Architetti: Raum
Ingegneria: Otéis, Acoustibel
Area: 2.352 mq
Completamento: 2016
