Studio di progettazione: Faci Leboreiro
Nome del progetto: Cuattro Casa De Café
Luogo: Troncones, Guerrero, Messico
Dimensioni: 402 mq
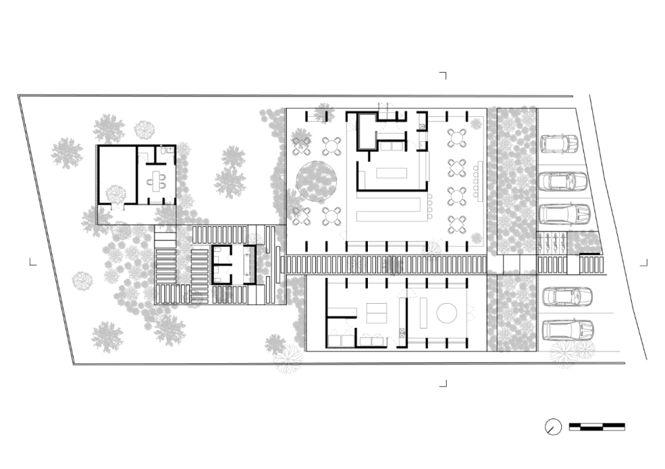
Nel villaggio balneare di Troncones, lo studio Faci Leboreiro ha progettato un’opera che invita ad abbandonarsi ai tempi lenti (e terapeutici) di una “pausa caffé” in un’oasi di pace sospesa tra l’oceano e la foresta e sagomata attorno agli alberi. L’intervento integra una caffetteria con ristorante, panificio, area vendita di prodotti artigianali e ufficio, e trova la sua configurazione inglobando e aggirando la vegetazione esistente accuratamente preservata. Attorno a questa, si distribuiscono due corpi di fabbrica paralleli separati da un viale, e un terzo edificio in testata al percorso. Materiali naturali e durevoli – dal cemento a vista, al legno locale, alla ghiaia nei camminamenti – e uno studio dei flussi di ventilazione naturale e degli orientamenti rispondono ad esigenze funzionali di inerzia termica, durabilità e confort micro-climatico nel clima torrido della regione e integrano la costruzione nel contesto, creando un ambiente permeabile e rilassato in cui l'interno e l'esterno sono piacevolmente confusi.
