View gallery
\\Raum_serveur\05_PROJETS\00_INPROGRESS-02\LA GOUESNIERE\13_COM\01_PLANS\GOUE_com-Plans MASSE (1)
Raum, Trucks Maintenance Centre, site plan
\\Raum_serveur\05_PROJETS\00_INPROGRESS-02\LA GOUESNIERE\13_COM\01_PLANS\GOUE_com-Plans RDC_EN (1)
Raum, Trucks Maintenance Centre, ground floor
\\Raum_serveur\05_PROJETS\00_INPROGRESS-02\LA GOUESNIERE\13_COM\01_PLANS\GOUE_com-Plans COUPE_B_FR (1)
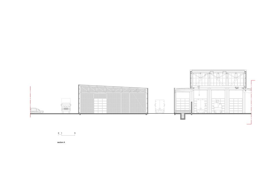
Raum, Trucks Maintenance Centre, section
Two buildings serving different functions are gathered around a spacious courtyard: an activity building that gathers the administrative functions, a supplies shop and motorway workshops; a covered and protected parking and storage building. All the devices set up to offer a real optimization of working conditions, in terms of team safety, spatiality, acoustic conditions, light qualities, materials and relationship with the close environment.
Trucks Maintenance Centre, La Gouesnière, France
Program: industrial facility
Architect: Raum
Engineering: Otéis, Acoustibel
Area: 2,352 sqm
Completion: 2016
