Galleria
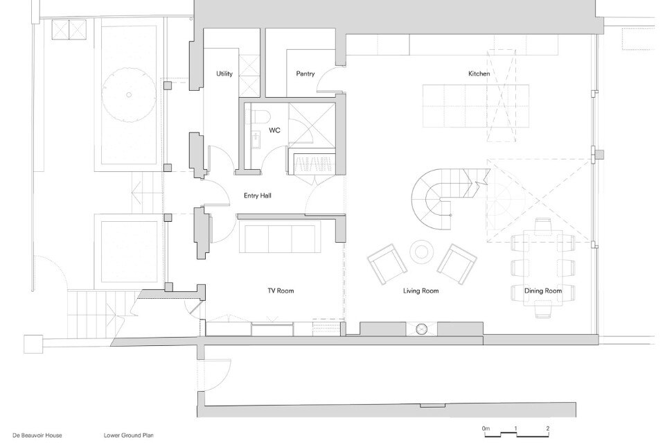
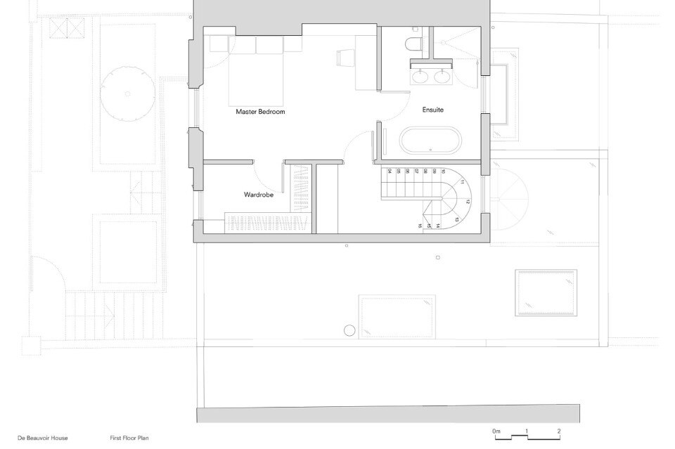
L’estensione posteriore è un innesto leggero di legno lamellare strutturale, che incornicia una serie di spazi contemporanei collegati alla vecchia casa con una scala di acciaio su misura. La scala è il nuovo cuore della casa, un elemento meticolosamente studiato in tutti i suoi dettagli che crea un accesso scultoreo e definisce gli spazi che connette.
Casa De Beauvoir, Londra
Tipologia: estensione di una casa unifamiliare
Architetto: Cousins & Cousins Architects
Struttura: Webb Yates
Estimo: BHA
Consulenza ambientale: Enhabit
Costruzione: Not Disclosed
Completamento: 2017
