View gallery
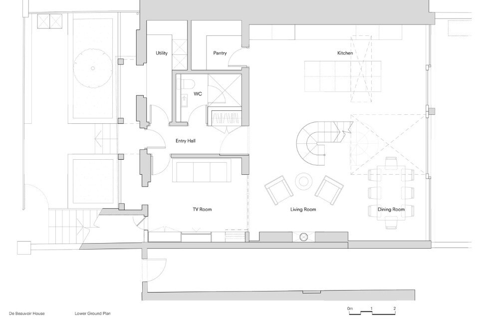
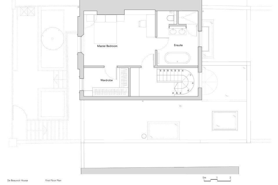
The rear extension, a lightweight structural glulam timber insertion, frames a series of newly created modern spaces connected via a bespoke steel staircase. The staircase forms the new heart of the house, a meticulously detailed and sculptural point of access that defines the spaces it connects.
De Beauvoir House, London
Architect: Cousins & Cousins Architects
Program: single family house extension
Structural engineer: Webb Yates
Cost consultant: BHA
Environmental consultant: Enhabit
Contractor: Not Disclosed
Completion: 2017
