Galleria
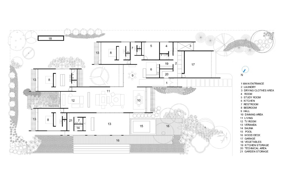
Il verde circostante entra dentro la residenza grazie alle ampie vetrate. Passeggiando all’interno della casa si rivela una grande varietà di prospettive. La gerarchia spaziale è definita dalla diversa altezza degli ambienti domestici. Gli spazi sono interconnessi in modo fluido da pareti orientate in direzione nord-sud. Le ampie vetrate hanno invece orientamento est-ovest, permettendo magnifiche viste durante l’alba o il tramonto.
Galleria
House 28, Brasilia DF, Brazil
Tipologia: casa unifamiliare
Architetti: Equipe Lamas – Samuel Lamas
Collaboratore design d’interni: João Carlos Ramos Magalhães
Ingegneria: Ruy Lamas, Julio Novita, Vladimir Barbán
Paesaggio: João Fausto Maule
Superficie: 850 mq
Completamento: 2016
