Risultati
Nessun elemento trovato
Ricerca troppo corta
Villa Mangwon
A Seul lo studio coreano Aoa architects ha progettato Villa Mangwon, un edificio a uso misto, di cinque piani e con tetto a falda, cercando ordine e armonia nel disordine.
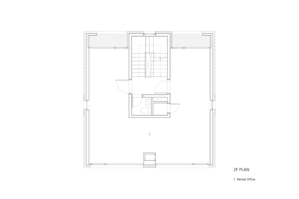
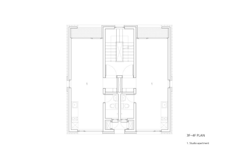
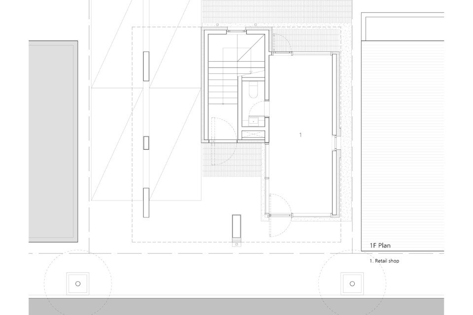
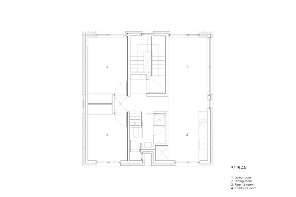
Villa Mangwon è un edificio di cinque piani con tetto a falda. La forma del lotto su cui si costruisce è quasi rettangolare. Il piano terra è sollevato in parte su pilotis e presenta aree parcheggio e un piccolo negozio. Ai piani superiori troviamo piccoli uffici al secondo piano e quattro monolocali lineari al terzo e al quarto piano. I monolocali in affitto sono completamente aperti a nord e sud, dove dispongono di un piccolo balcone. Gli ultimi piani sono occupati dalla casa della famiglia del proprietario con un attico e una piccola terrazza sul tetto.
aoa architecture, Villa Mangwon, Seul, 2016
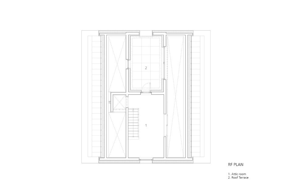
La casa della famiglia ha un soggiorno lineare a ovest e due piccole stanze a est. Gli ambienti sono collegati tra loro attraverso un corridoio. La luce naturale entra nelle camere attraverso il lucernario che le collega anche al disimpegno e alla mansarda. La mansarda è rifinita con materiali grezzi ed è pensata per essere lo spazio dove i bambini possono giocare. Attraverso una finestra fatta del tradizionale legno coreano, i figli in soffitta possono parlare direttamente con i genitori nella sala da pranzo. La terrazza sul tetto è come una stanza all’aperto, in quanto chiusa da un muro con un’unica apertura circolare.
aoa architecture, Villa Mangwon, Seul, 2016
L’edificio presenta una struttura tripartita A(servito) – B(servente) – A(servito). Questo sistema spaziale permette di avere spazi lineari con doppi affacci. Contrariamente ai “monoliti bianchi” con aperture disposte irregolarmente – che sempre più di frequente troviamo per piccoli progetti di edilizia abitativa in Corea – Villa Mangwon presenta un andamento ripetitivo e regolare delle finestrature.
aoa architecture, Villa Mangwon, Seul, 2016
Questa strategia riflette il fondamentale atteggiamento dello studio coreano che è quello di cercare l’armonia nel disordine ed evitare un eccessivo sentimentalismo nella progettazione architettonica. Nella facciata anteriore tutto il peso, fisico e sociale, dell’edificio sembra gravare sulla sottile colonna al piano terra. Questa può essere considerata una metafora dell’instabilità del mercato immobiliare coreano.
Galleria
SHARE
PIN IT
SHARE
PIN IT
SHARE
PIN IT
SHARE
PIN IT
SHARE
PIN IT
SHARE
PIN IT
SHARE
PIN IT
SHARE
PIN IT
SHARE
PIN IT
SHARE
PIN IT
aoa architecture, Villa Mangwon, Seul, 2016
SHARE
PIN IT
aoa architecture, Villa Mangwon, Seul, 2016
SHARE
PIN IT
aoa architecture, Villa Mangwon, Seul, 2016
SHARE
PIN IT
aoa architecture, Villa Mangwon, Seul, 2016
SHARE
PIN IT
aoa architecture, Villa Mangwon, piano terra
SHARE
PIN IT
aoa architecture, Villa Mangwon, primo piano
SHARE
PIN IT
aoa architecture, Villa Mangwon, secondo/terzo piano
SHARE
PIN IT
aoa architecture, Villa Mangwon, quarto piano
SHARE
PIN IT
aoa architecture, Villa Mangwon, pianta terrazza
SHARE
PIN IT
aoa architecture, Villa Mangwon, sezioni
SHARE
PIN IT
Villa Mangwon, Seul Tipologia: edificio a uso misto Architetti: aoa architects Strutture: RC Costruzione: COWORKERS Superficie: 290,3 mq Completamento: 2016