results
No results
Please enter a long search term
Villa Mangwon
Aoa architects designed a mixed-use five stories building in Seoul, keeping a distance from excessive sentimentalism in design methodology and seeking harmony within disharmony.
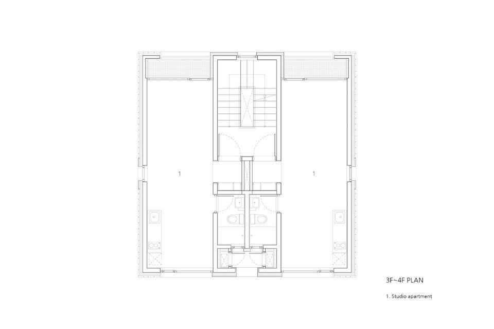
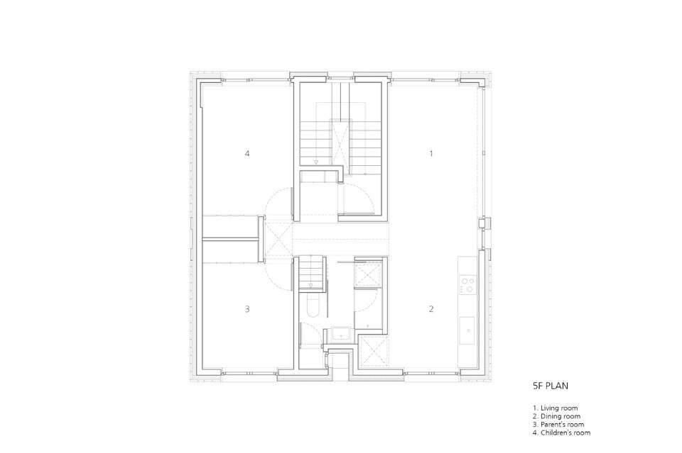
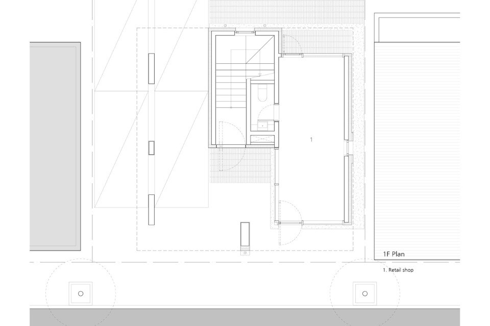
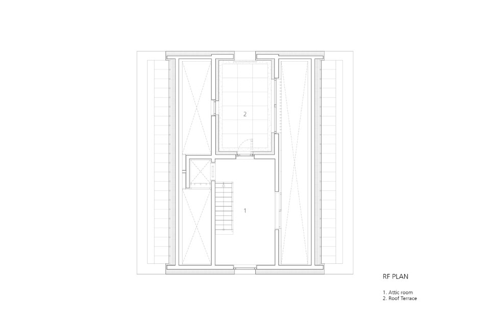
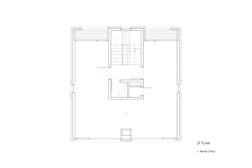
Villa Mangwon is a five stories building with gabled roof. The shape of the site is nearly rectangular and it has distant views on the upper floors. On the ground floor there are parking areas and a small retail shop with pilotis. The upper floors consist of small offices on the second floor, four linear studio apartments on the third and fourth. The studio apartment for rent is entirely open north and south, where it has a small balcony and an open street view. The top floor is the land owner’s family house with an attic and a small roof terrace.
aoa architecture, Villa Mangwon, Seoul, 2016
The family house has a linear living room on the west, two small rooms on the east and they are connected through a corridor of gable form. At the end of this corridor, natural light is coming through the skylight which connects two rooms, corridor and attic spatially, while giving enough light to those. The attic is finished with raw materials and normally for children’s playroom. Through a korean traditional wooden window in the attic children can talk to parents in the dining area. The roof terrace has a feeling of a room due to its wall with rounded opening on the south.
aoa architecture, Villa Mangwon, Seoul, 2016
The structure of the building presents the A(served)-B(servant)-A(served) spatial system that invites an open view in the linear space. Contrary to the “white monolith” with irregular window arrangement shown frequently in small housing projects in Korea recently, villa mangwon obviously expresses stacking each floor with regular and repetitive window arrangement.
aoa architecture, Villa Mangwon, Seoul, 2016
This strategy reflects on our fundamental attitude which is to ask the architectonic meaning in the construction, to keep a distance from excessive sentimentality in design methodology and to seek harmony within disharmony. The front facade implies that the social weight rise upwards while it looks like the whole physical and social weight rest on the single thin column on the ground floor. Metaphorically, it resembles somewhat to the unstable structure of the Korean real estate market.
View gallery
SHARE
PIN IT
SHARE
PIN IT
SHARE
PIN IT
SHARE
PIN IT
SHARE
PIN IT
SHARE
PIN IT
SHARE
PIN IT
SHARE
PIN IT
SHARE
PIN IT
SHARE
PIN IT
aoa architecture, Villa Mangwon, Seoul, 2016
SHARE
PIN IT
aoa architecture, Villa Mangwon, Seoul, 2016
SHARE
PIN IT
aoa architecture, Villa Mangwon, Seoul, 2016
SHARE
PIN IT
aoa architecture, Villa Mangwon, Seoul, 2016
SHARE
PIN IT
aoa architecture, Villa Mangwon, ground floor
SHARE
PIN IT
aoa architecture, Villa Mangwon, first floor
SHARE
PIN IT
aoa architecture, Villa Mangwon, second/third floor
SHARE
PIN IT
aoa architecture, Villa Mangwon, fourth floor
SHARE
PIN IT
aoa architecture, Villa Mangwon, roof floor
SHARE
PIN IT
aoa architecture, Villa Mangwon, sections
SHARE
PIN IT
Villa Mangwon, Seoul Program: Mixed-use Housing Architects: aoa architects Structure: RC Contractor: COWORKERS Area: 290.3 sqm Completion: 2016