Il volume a forma di L è posizionato tra le dune, e la sua forma offre una buona differenziazione tra le aree private e pubbliche. Sul lato privato, una facciata in vetro offre agli occupanti una vista eccellente degli splendidi dintorni. La facciata su strada è chiusa tranne che per una lunga finestra orizzontale che si estende per quasi tutta la lunghezza, permettendo ai passanti di intravedere ciò che accade dentro. Questi accorgimenti permettono alla casa di essere illuminata dalla luce solare durante tutto il giorno.
La facciata è realizzata in liste di legno di larice di larghezza variabile, il cui colore tenderà al grigio con il passare del tempo, armonizzandosi ulteriormente con le dune. Il tetto – di legno, zinco e muschio – contribuirà ulteriormente a questo processo. L’altezza e la forma del tetto e della facciata sono stati pensati in relazione al contesto e contribuiscono alla caratterizzazione dell’edificio.
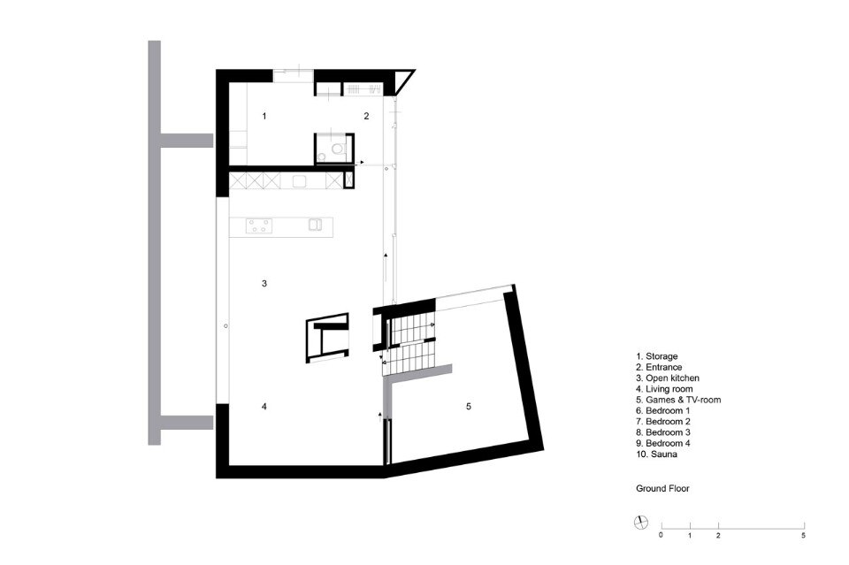
Il soggiorno è composto da un open space ampio e luminoso in cui le diverse aree sono definite e collegati dalle superfici inclinate del tetto. Il rapporto tra i due piani combina privacy e spazi a misura d’uomo, consentendo ai membri della famiglia di utilizzare la casa a modo loro senza arrecare disturbo agli altri.
Il piano interrato comprende le camere da letto, i bagni e la sauna. Il patio – nascosto alla vista a livello del suolo da un basso muro di legno sulla facciata ovest – porta luce solare e ventilazione. Materiali naturali come legno e pietra sono stati utilizzati sia per l’esterno che per l’interno della casa.
Durante la progettazione è stata dedicata molta attenzione a rendere la casa sostenibile, non solo attraverso l’uso di materiali naturali, ma anche controllando il consumo di energia. Buon isolamento, finestre con tripli vetri, orientamento solare, ombreggiatura naturale sulla facciata sud fornita da uno strapiombo, e il mantenimento di una temperatura costante nella zona sotterranea contribuiscono alla sostenibilità dell’edificio.
L’utilizzo di un’illuminazione a LED per quanto possibile, e il camino nel soggiorno, fanno il resto. La casa rispetta pienamente l’ambizione di Schiermonnikoog di essere un’isola autosufficiente.
Dockboot Holiday Home, Schiermonnikoog, Paesi Bassi
Tipologia: casa vacanze
Architetti: De Zwarte Hond
Team di progetto: Henk Stadens, Jurjen van der Meer, Freddy Siekmans, Marek Pronk
Area: 260 mq
Completamento: 2015
