La parte storica dell’edificio, costruita nel 1914, è stata rinnovata per ospitare la caffetteria del museo e una sala per eventi. La nuova struttura museale è caratterizzata da viste strategiche sul parco che fondono interno ed esterno in un insieme senza soluzione di continuità. Oltre a esporre parti della collezione permanente, l’edificio offre anche spazio per mostre temporanee, uffici amministrativi e un laboratorio di restauro.
Il museo ha un aspetto accoglente, un layout chiaro e spazi sorprendentemente ariosi, ottenuti attraverso l’utilizzo di materiali naturali come la pietra, il vetro e l’acciaio.
Galleria
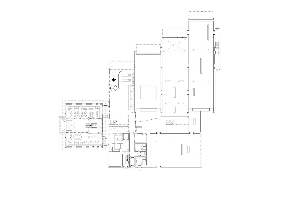
MmR_PR-100_plattegronden.mcd
Hans van Heeswijk Architects, Museum MORE, Gorssel, Paesi Bassi. Pianta del piano terra
MmR_PR-100_plattegronden.mcd
Hans van Heeswijk Architects, Museum MORE, Gorssel, Paesi Bassi. Pianta del primo piano
MmR_PR-100_plattegronden.mcd
Hans van Heeswijk Architects, Museum MORE, Gorssel, Paesi Bassi. Pianta dell'attico
Museum MORE, Gorssel, Paesi Bassi
Tipologia: museo
Architetti: Hans van Heeswijk architecten
Progetto paesaggistico: Michael van Gessel
Consulente strutturale: Van Rossum Raadgevende Ingenieurs
COnsuelnte impiantistico: Nelissen ingenieursbureau
Supervisione alla costruzione: Herder advies
Impresa: Koopmans
Impianti: Croon
Sistemi di sicurezza: Wolter & Dros
Area: 4.100 mq
Completamento: 2015
