ReUrbano ha trovato un vecchio edificio residenziale, di un certo valore storico, abbandonato dopo la morte del suo ultimo occupante. Il progetto distribuisce al suo interno nove appartamenti di varie dimensioni e configurazioni, oltre a una zona commerciale verso il fronte principale.
Il progetto mantiene quasi per intero la struttura esistente, nonostante le istanze di conservazione locali prescrivono di conservare solo la facciata. L’edificio occupa la maggior parte del lotto, a esclisione di un’area di servizio, indipendente dal volume principale, nella parte posteriore. Il progetto si basa su un’analisi dettagliata di ciascuno degli elementi esistenti, con l’intento di creare una realtà diversa – più coerente con la nuova realtà economica e sociale –, in armonia con l’edificio originale: passato e presente coesistono, creando una nuova realtà costruita da due tipologie architettoniche che rispondono a due diversi momenti storici.
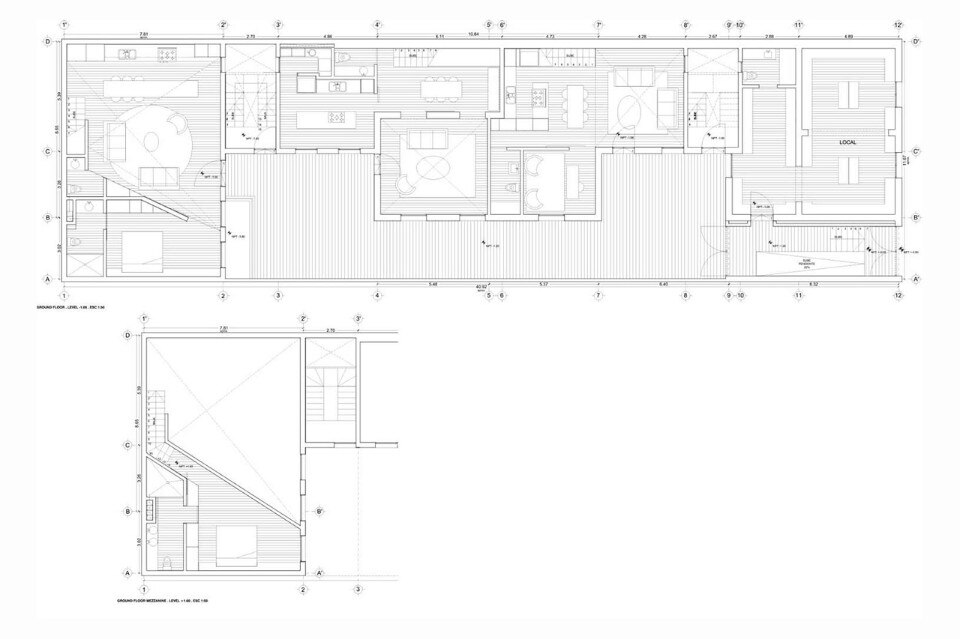
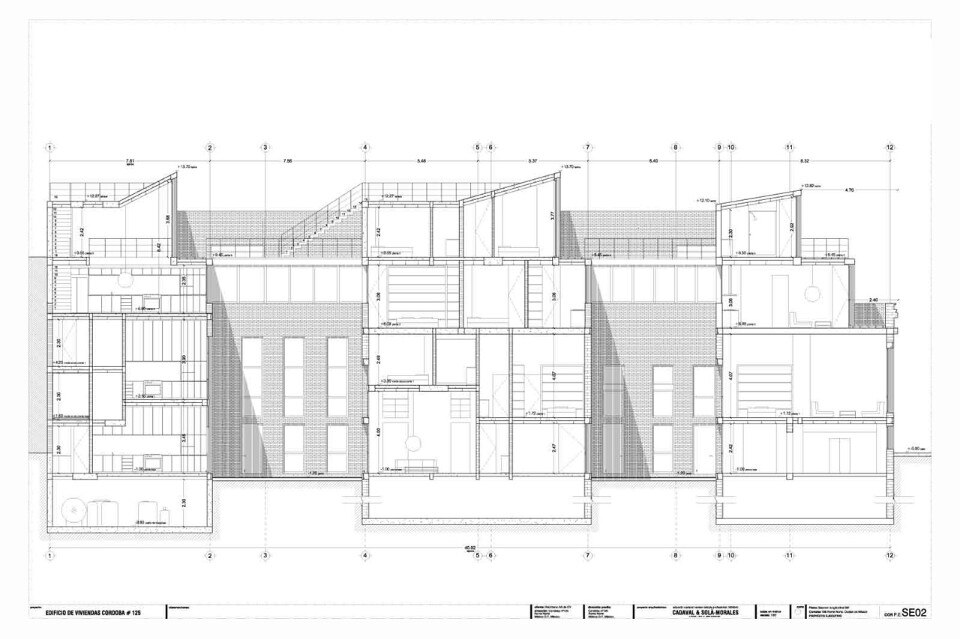
Il progetto è strutturato a partire da un corridoio obliquo esterno; il cortile esistente da cui si accede agli appartamenti viene replicato nella parte posteriore, in modo che i due nuclei principali per accedere alle unità siano collegati a ciascuno di questi cortili. L’amplaimento sul retro della casa – che sostituisce la vecchia area dei servizi –, disegna questo secondo patio e ha la forma e la materialità della casa esistente, anche se usa tecnologie attuali: l’aggiunta è chiaramente identificabile da un professionista, ma appare come un tutt’uno a un occhio distratto. Il progetto cresce anche in altezza con l’aggiunta di due nuovi piani alla vecchia casa.
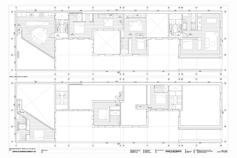
Scavando 1,5 m sotto il livello stradale, e costruendo una serie di livelli intermedi l’interno della casa esistente viene suddiviso in un massimo di tre livelli. Per evidenziare l’orizzontalità, la facciata del primo piano della sopraelevazione è completamente vetrata, al fine di alleggerire il peso della nuova aggiunta e di differenziare la costruzione originale dal nuovo intervento. Il piano superiore è invece una successione di terrazze e volumi costruiti che modifica la percezione complessiva dell’altezza dell’edificio e snellisce il progetto, apparendo come una sequenza di piccole torri e non come un pieno continuo.
La matericità è la chiave del progetto. La casa originale è costruita in mattoni, materiale che è stato utilizzato anche nel nuovo volume sul retro. Quelli originali sono grezzi, pieni di identità e storia; quelli nuovi differiscono per piccoli particolari, che dichiarano una produzione industriale: piccole sfumature che permettono di leggere la differenza, ma che costruiscono una singola entità.
I volumi del livello superiore hanno una propria identità, creata sia dal materiale che dal colore (nero, per aiutare ad alleggerire il peso visivo dell’aggiunta). I materiali scelti aiutano a creare ambienti unici, di grande personalità, pensati per famiglie comuni e per le loro mutevoli esigenze: camere da letto, cucine e bagni costruiscono spazi unici, intrecci della vecchia e della nuova struttura.
Galleria
\\eixample\CA-SO\01_PROYECTOS\28_ROMA\07 Obra Terminada\01_Planos\CAD\02 Plans\02_RO_Ground Floor PL 50 (1) (1)
\\Eixample\CA-SO\01_PROYECTOS\28_ROMA\05 Proyecto Ejecutivo\03_FINAL\00 Portada\06_24_12_RO_PO PORTADA (1)
\\Eixample\CA-SO\01_PROYECTOS\28_ROMA\05 Proyecto Ejecutivo\03_FINAL\00 Portada\06_24_12_RO_PO PORTADA (1)
\\Eixample\CA-SO\01_PROYECTOS\28_ROMA\05 Proyecto Ejecutivo\03_FINAL\00 Portada\06_24_12_RO_PO PORTADA (1)
Edificio Córdoba-Reurbano, Colonia Roma Norte, Città del Messico
Tipologia: edificio residenziale
Architetti: Cadaval & Solà-Morales
Responsabili di progetto: Eduardo Cadaval & Clara Solà-Morales
Collaboratori: Olivier Arditi, Catherine Nguyen
Ingegneria strutturale: Ricardo Camacho
Impresa: Eugenio Eraña, Juan Carlos Cajiga
Area: 2.200 mq
Completamento: 2015
