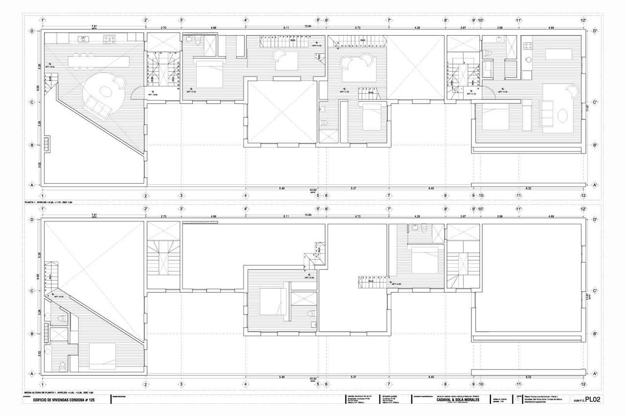
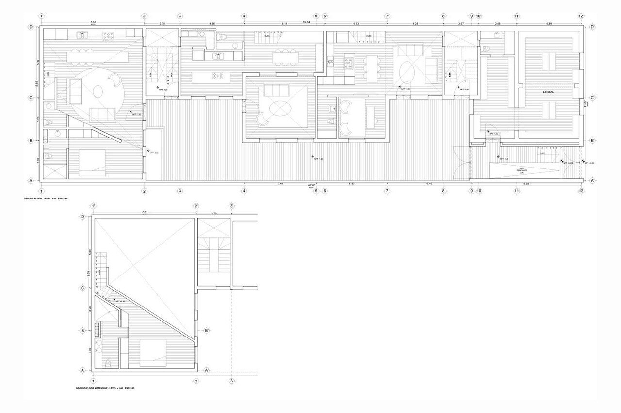
ReUrbano identifies an old house of historical value that was abandoned after the death of its eighty year old occupant and engages us to transform it into a housing building. The project will have 9 apartments of various sizes and configurations, as well as commercial area in the upfront facade.
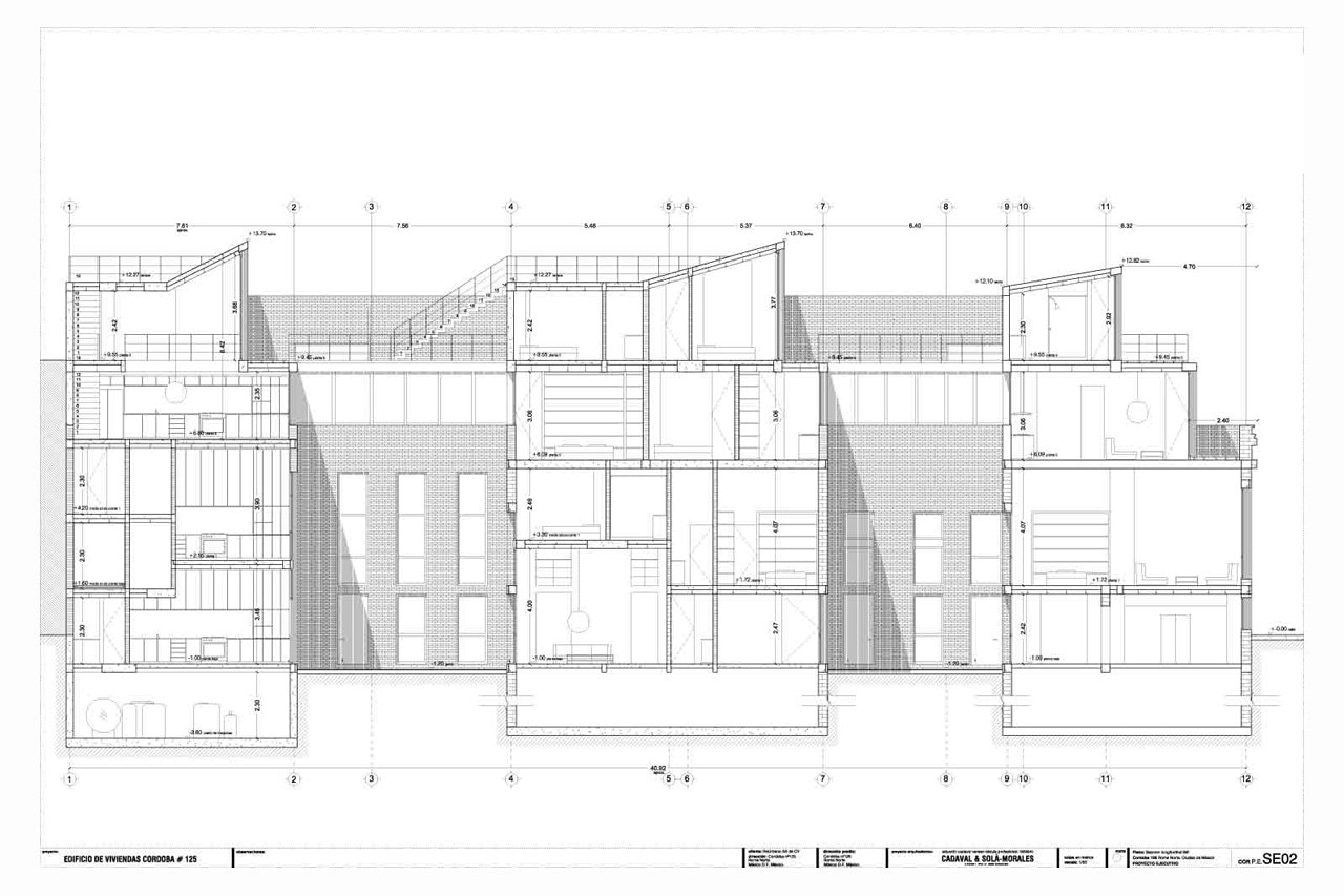
The project maintains almost the overall existing building, beyond the dictum set by the local preservation instances, which establish that only the facade needs to be preserved. The existing building occupies the majority of the plot, although there is a ruin of a service area, independent of the actual house, at the rear of the plot. The project is based on a detailed analysis of each of the existing elements, looking forward to generate a different reality – more consistent with the new economic and social reality –, but in harmony with the original building: past and present coexisting, respecting and creating a new reality built up of two architectural typologies which respond to two different historic moments.
The project is structured through an outdoor sidelong corridor; the existing courtyard that provides entrance to the original house is replicated at the rear back, and therefore the two main cores to access the units are now related to each of those patios. The addition to be built on the back of the house – replacing the old service area –, draws this second patio and has the form and materiality of the existing house, although it uses current technologies: the addition is clearly identifiable by a professional, but provides a continuous reading to a distracted eye. The project also grows in height, both within the existing building and by the addition of two new floors to the old house.
Digging 1.5m below street level, and building a series of intermediate levels inside the house, the interior of the existing house transforms from its original single level to up to 3 levels at some points. To highlight horizontality, the facade of the first floor to be built on top of the existing building is fully glazed, in order to lighten up the weight of the new addition, as well as to differentiate the original building of the new intervention. The very top floor of the addition, is constructed with air and architecture: a succession of terraces and built volumes modifies the perception of the overall building’ height and slims the project, to appear as a chain of small towers and not as a continuous solid.
Materiality is key to the project. The original house is built in brick, material that has also been used in addition at the back of the building. The first is a living rough material, full of identity and history; the new differs from the original by small details, ranging industrial production to the way how walls are perforated: they are small subtleties that allow reading the difference, but that through their likeness build a single entity.
The volumes on the upper level have their own identity, both by the material itself, and by the colour (black, not white, to help lighten the weight of the addition). The materials enhance the generation of unique spaces, with great personality, designed for standard families, with changing needs that are also standard: rooms, bedrooms, kitchens and bathrooms build up unique spaces, intricate with the old and the new structure, ready to be appropriated by individual and different lifestyles, which come up with the new inhabitants.
View gallery
\\eixample\CA-SO\01_PROYECTOS\28_ROMA\07 Obra Terminada\01_Planos\CAD\02 Plans\02_RO_Ground Floor PL 50 (1) (1)
\\Eixample\CA-SO\01_PROYECTOS\28_ROMA\05 Proyecto Ejecutivo\03_FINAL\00 Portada\06_24_12_RO_PO PORTADA (1)
\\Eixample\CA-SO\01_PROYECTOS\28_ROMA\05 Proyecto Ejecutivo\03_FINAL\00 Portada\06_24_12_RO_PO PORTADA (1)
\\Eixample\CA-SO\01_PROYECTOS\28_ROMA\05 Proyecto Ejecutivo\03_FINAL\00 Portada\06_24_12_RO_PO PORTADA (1)
Edificio Córdoba-Reurbano, Colonia Roma Norte, Ciudad de México
Program: residential building
Architects: Cadaval & Solà-Morales
Project: Eduardo Cadaval & Clara Solà-Morales
Collaborators: Olivier Arditi, Catherine Nguyen
Structural Engineering: Ricardo Camacho
Construction Company: Eugenio Eraña, Juan Carlos Cajiga
Area: 2,200 sqm
Completion: 2015
