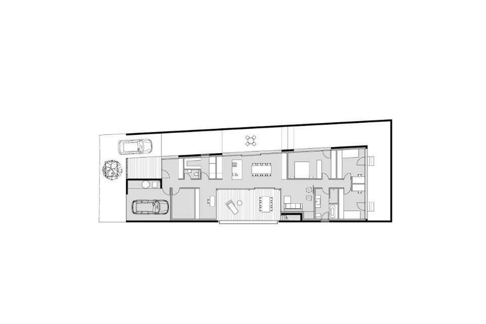
La risposta a queste particolari condizioni è stato un volume di solo piano chiuso su tutti i lati da un muro. La casa occupa la più vasta area possibile su cui era permesso di costruire e le dimensioni del terreno sono rivelate da un muro che corre lungo il perimetro e protegge la privacy dai vicini, distanti solo tre metri.
Dall’esterno la casa sembra ermeticamente chiusa, ma al suo interno si apre e sviluppa una sequenza di spazi interni ed esterni. Il centro della casa è un atrio affacciato verso sud. Le grandi finestre scorrevoli permettono a questo spazio di far parte sia del soggiorno sia della zona pranzo. Lo stretto cortile a forma di L collega esternamente le altre aree di vita e, insieme a una terrazza sul tetto di dimensioni generose, offre ulteriori spazi esterni che, a seconda del momento della giornata, creano una varietà di rapporti visivi.
I materiali scelti rafforzano l’impatto di questa residenza come un volume a sé stante. Il cemento armato come elemento strutturale e progettuale plasma il modo in cui l’edificio viene percepito. I telai delle finestre, come gli schermi di stecche verticali posti davanti ad alcune di esse, sono in rovere trattato.
All’interno le pareti e i soffitti sono finiti con una calda tonalità di bianco. In gran parte della casa la pavimentazione è un massetto di anidrite a cui è stato aggiunto un pigmento giallo naturale.
Galleria
Grabher 141112 Pl.ne.2d
Grabher 141112 Pl.ne.2d
Casa G., Valle del Reno, Vorarlberg, Austria
Tipologia: casa unifamilaire
Architetti: Bechter Zaffignani Architekten
Gestione cantiere: Jürgen Haller
Ingegneria strutturale: ZTE Leitner
Fisica delle costruzioni: Bernhard Weithas
Impresa: Burtscher Bau
Completamento: 2014
