Galleria
Rhythmdesign ae Case-Real, Scuola materna Hakemiya, Kumamoto, Giappone. Pianta del primo piano
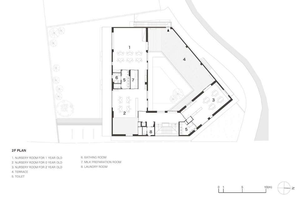
Rhythmdesign ae Case-Real, Scuola materna Hakemiya, Kumamoto, Giappone. Pianta del secondo piano
Scuola materna Hakemiya, Kumamoto, Giappone
Tipologia: scuola materna
Architetti: Rhythmdesign (Kenichirou Ide, Mariko Shimada), Case-Real (Koichi Futatusmata, Ritsu Shibata)
Ingegneria strutturale: Kuroiwa Structural Engineers
Impresa: Shutaku Co.,Ltd.
Progetto luci: Tatsuki Nakamura(BRANCH lighting design)
Progetto segnaletica: Oryel (Koichi Inoue, Chikako Nakashima)
Area: 395,9 mq
Completamento: 2014
