Entrambe le lastre di vetro scorrono su binari che si estendono per il doppio della larghezza di ogni finestra, per una vista senza ostacoli. Essi si estendono anche a terra, per fare in modo che la casa sia sensibile anche alla vita della strada.
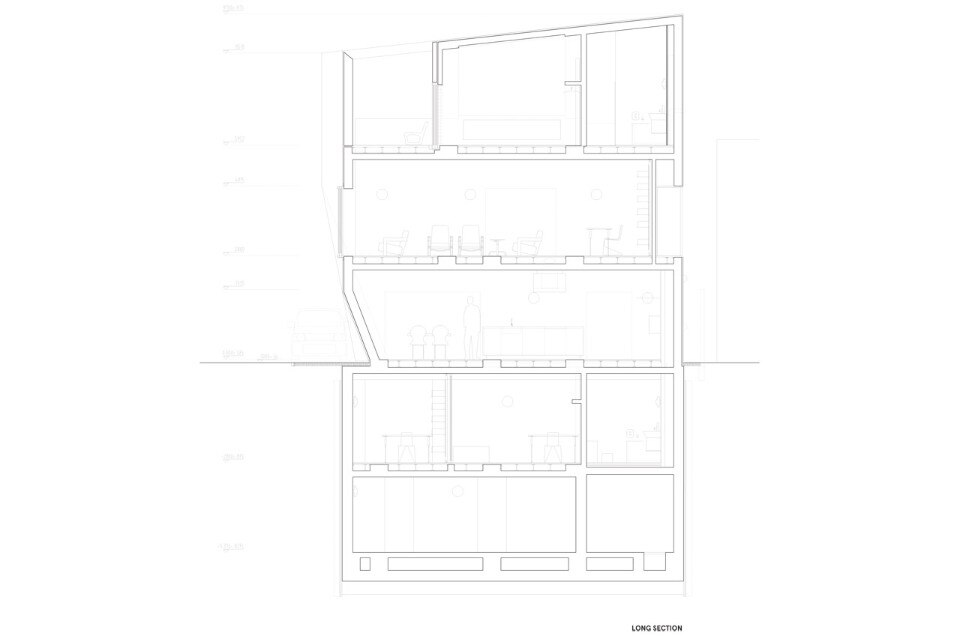
Quando le finestre sono chiuse, la casa si riveste di una texture cangiante. Al piano terra, una di queste finestre serve come ingresso principale, affacciato sulla cucina. Ogni livello ha un programma funzionale diverso: il più basso ospita spazi tecnici e di deposito; sopra, le due camere da letto, permeate dalla luce del giorno attraverso le finestre a nastro che si estendono per tutta la lunghezza della casa; la cucina e la sala da pranzo occupano il piano terra; la zona giorno il primo piano; e al piano più alto una camera da letto padronale con un ofuro in legno (la tradizionale vasca da bagno giapponese).
Una piccola terrazza, che appare tuttavia grande rispetto alle dimensioni della casa, è collegata alla camera da letto matrimoniale. La parete nord di questa terrazza è realizzata con lo stesso vetro strutturato che protegge le finestre della casa.
Quando è aperta, improvvisamente appare una vista verso il parco, priva di balaustra. Quando è chiusa, la vista è ostruita e la terrazza diventa introversa e privata. Al contrario, la parete sud-occidentale rappresenta l’apice della facciata della casa, in cui è stato creato un taglio per introdurre la luce nella camera padronale. Il taglio lascia un vuoto nel muro della terrazza, che a sua volta crea uno spazio esterno avvolgente, coperto solo dal cielo.
A causa della forma allungata del sito, è stata creata una piega lungo la facciata sud, inclinata in modo che si arretra dal confine al piano terra per lasciare uno spazio sufficiente a parcheggiare una Smart. Sottilmente audace se vista da lontano, la casa si fonde nel suo contesto. E aprendo tutte le finestre, o creando una configurazione di vetrate aperte e chiuse, la casa si trasforma per esporre le sue qualità caleidoscopiche al quartiere e ai suoi abitanti.
Strutturalmente, il volume in cemento è a prova di terremoto, in conformità alla severa normativa vigente. Situata in posizione centrale a Tokyo, con la possibilità di aprirsi verso la città o di chiudersi in se stessa, secondo configurazioni multiple, A’ House è una residenza impegnata in un dialogo continuo con il suo contesto tradizionale ma che, allo stesso tempo, anticipa il futuro.
A’ House, Tokyo, Giappone
Tipologia: residenza unifamiliare
Architetti: Wiel Arets Architects
Team di progetto: Wiel Arets, Satoru Umehara, Alex Kunnen
Collaboratori: Jörg Luthke, Jean-Jacques Jungers, Sadamu Shirafuji, Ilze Paklone
Committente: Arets-Sijstermans
Consulenti: Tai Mikio Architect & Associates, LOW FAT Structure INC, EOS plus Co. LTD, Comodo Co. LTD, Oskomera Group BV, Saint Gobain Glass, Eiger Co. LTD
Area: 136 mq
Completamento: 2014
