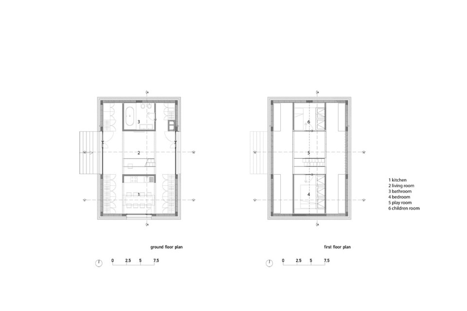
Il piano terra funziona prevalentemente come spazio pubblico o semi-pubblico, affacciato sul paesaggio, mentre il piano superiore, molto privato, guarda solo verso il cielo.
Lo spazio è diviso con due volumi di legno che al piano terra contengono la cucina, la sala da pranzo e il bagno, e al piano superiore la camera matrimoniale e la camera dei bambini.
Questo gioco di scatole permette a ogni camera da letto di apparire come una piccola casa in legno, piuttosto che come una camera. Il ponte che collega le due case funge da sala giochi.
La casa ha tre grandi finestre quadrate che aprono la vista verso la chiesa sulla collina italiana a ovest, la foresta a sud e l’ingresso a est. La ridefinizione del tradizionale tetto in pietra del Carso, con la sua consistenza, il colore, il materiale e la sua ripida inclinazione è stata eseguita come interpretazione cementizia contemporanea e tecnologica. La connessione materiale inscindibile tra la facciata e tetto è un’allusione all’immagine del tradizionale villaggio carsico.
Il progetto affronta il rapporto tra contemporaneo e tradizione, apre la questione delle caratteristiche dell’architettura anonima costruita tradizionale da cui trae origine e contemporaneamente stabilisce la relazione tra l’interpretazione contemporanea e il dominio, solitamente condizionato, della sintesi.
Galleria
floor plans
Compact Karst House, Vrhovlje, Slovenia
Tipologia: casa unifamiliare
Architetti: Dekleva Gregorič Arhitekti
Team di progetto: Aljoša Dekleva, Tina Gregorič, Lea Kovič, Vid Zabel
Committente: Borut Pertot
Area: 92 mq
Completamento: 2014
