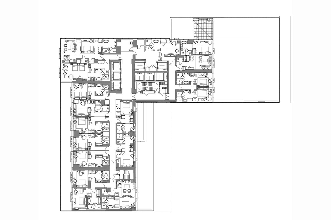
Il design degli interni è stato poi affidato a Thomas Juul-Hansen. Christian de Portzamparc ha attinto dalla forma complessa del lotto per sviluppare i caratteri fondamentali del progetto. Il risultato riflette i requisiti strutturali di una torre marcatamente allungata, rispettando i regolamenti di allineamento della città e delle distanze specifiche per il sito.
La torre è rivolta verso Central Park, come in un omaggio. La facciata sud è strutturata in bande verticali di vetro in due colori contrastanti. Visibili anche dall’interno, esprimono l’energia di una cascata nel paesaggio verticale di New York, collegando ogni unità volumetrica tramite superfici curve di transizione.
Le facciate est e ovest, che ricordano l’estetica dei progetti di Le Monde e Nantes, con pattern ispirato a Gustave Klimt che fluttua con il costante cambiamento dell’esposizione alla luce.
Galleria
03 A-103_01 Model.ai
A3 one 57 A-124_07.pdf
C:\Users\Etienne\Desktop\ONE5 DWG\A-132_20 modif Model (1)
One57 tower, New York
Tipologia: hotel e torre residenziale
Architetti: Christian de Portzamparc
Committente: Extell Development Company
Architetto esecutivo: SLCE Architect LLP
Progetto interni residenziali: Thomas Juul-Hansen, LLC
Progetto interni hotel: Yabu Pushelberg
Consulente Zonizzazione: Michael Parley, Development Consulting Services Inc.
Strutture: WSP Cantor Seinuk
Impianti: AKF
Facciate: IBA Israël Berger & Associates NY
Paesaggio: Terrain-NYC
Area: 74.353 mq
Completamento: 2014
