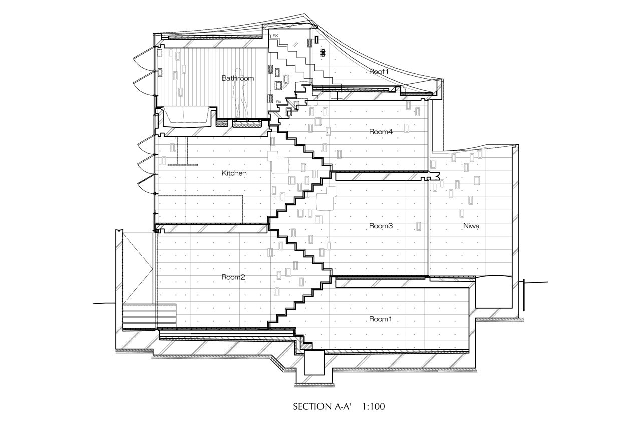
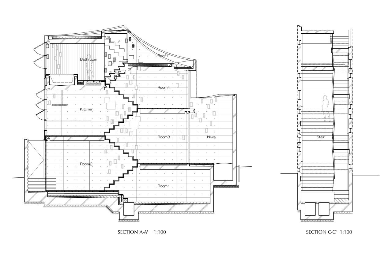
Anzittutto gli architetti hanno concepito i setti murari come elementi sottili e forti al tempo stesso, membrane che segnano il confine tra architettura e persone, tra sostanza e fenomeno.
In altre parole, le pareti risultano sostanziali nella loro massa e trasparenti al tempo stesso.
Galleria
Sabaoarch, The Wall of Nishihara, Shibuya, Tokyo. A sinistra: Photo Yuji Nishijima. A destra: Photo Ohno Shigeru
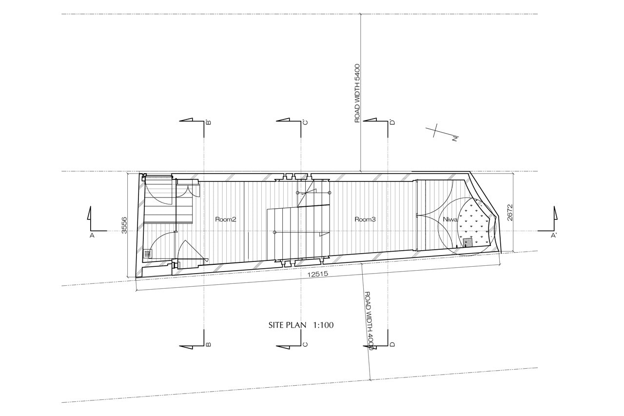
The Wall of Nishihara, Shibuya, Tokyo
Tipologia: casa unifamiliare
Architetti: Sabaoarch (Masanori Kuwabara )
Ingegneria strutturale: Matou Hayata
Impresa: NK
Area: 40 mq
Completamento: 2013
