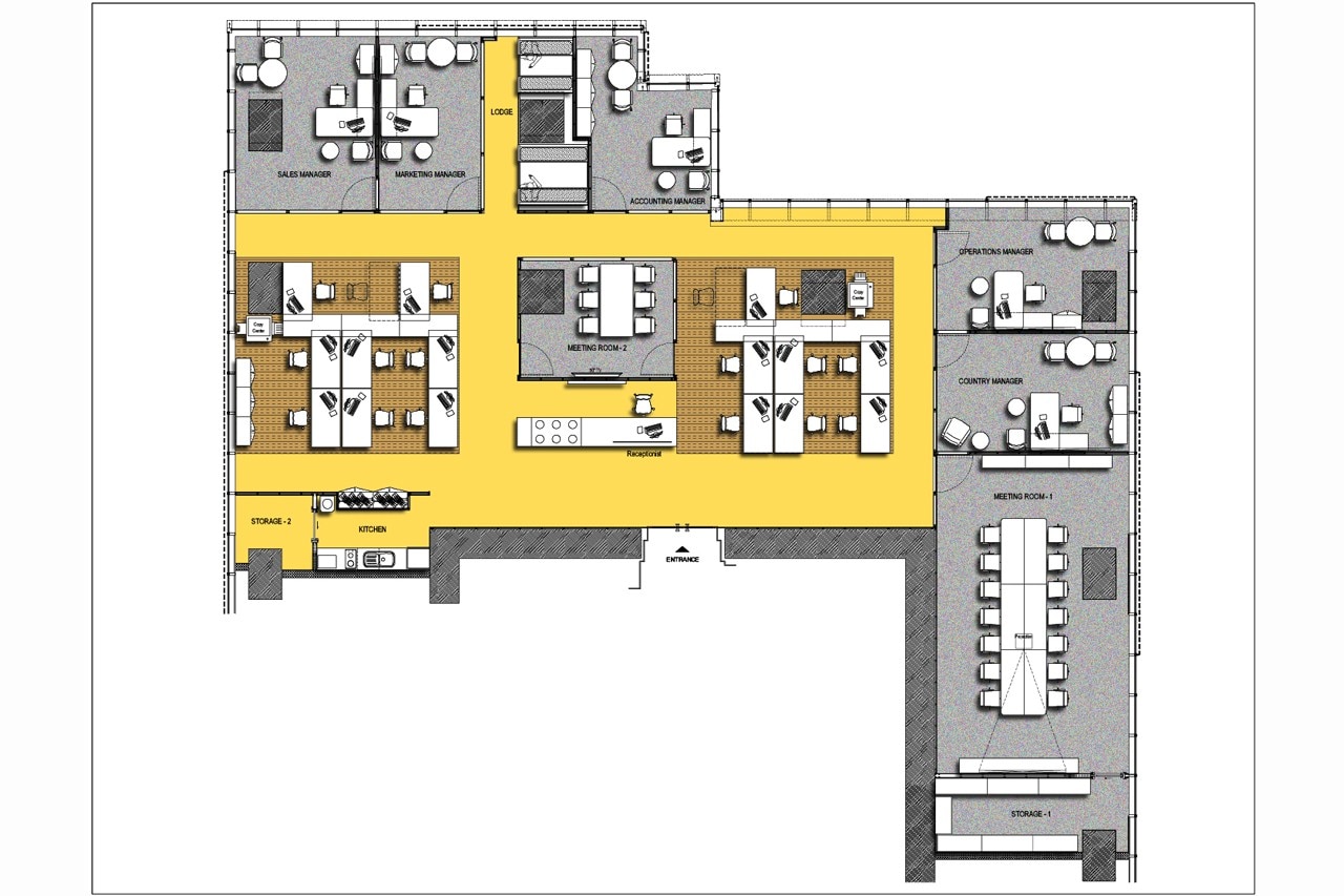
Il design degli interni è stato ispirato dai prodotti Lego per rafforzare l’appartenenza alla brand identity degli spazi progettati: la sala d’ingresso e il soffitto della reception simulano la sagoma dei mattoncini e immagini dei personaggi Lego sono riprodotte alle pareti e sulle partizioni in vetro.
I colori aziendali sono stati utilizzati su tutte le superfici, donando agli interni un carattere armonico. Il comfort acustico è stato raggiundo applicando pannelli in lana di roccia ad alta densità ai soffitti dell’open space. Questi pannelli sono stati integrati con gli apparecchi illuminanti e sono stati trasformati in elementi di design. Tutti i volumi chiusi sono circondati da partizioni con doppi vetri e i pavimenti sono rivestiiti dai tappeti, in modo da migliorare l’isolamento acustico.
Galleria
Lego Turkey, Trump Towers, Istanbul
Tipologia: ufficio
Architetti: O.S.O Mimarlık Tasarım
Team di progetto: Okan Bayik / Serhan Bayik / Ozan Bayik
Area: 350 mq
Completamento: 2014
