Galleria
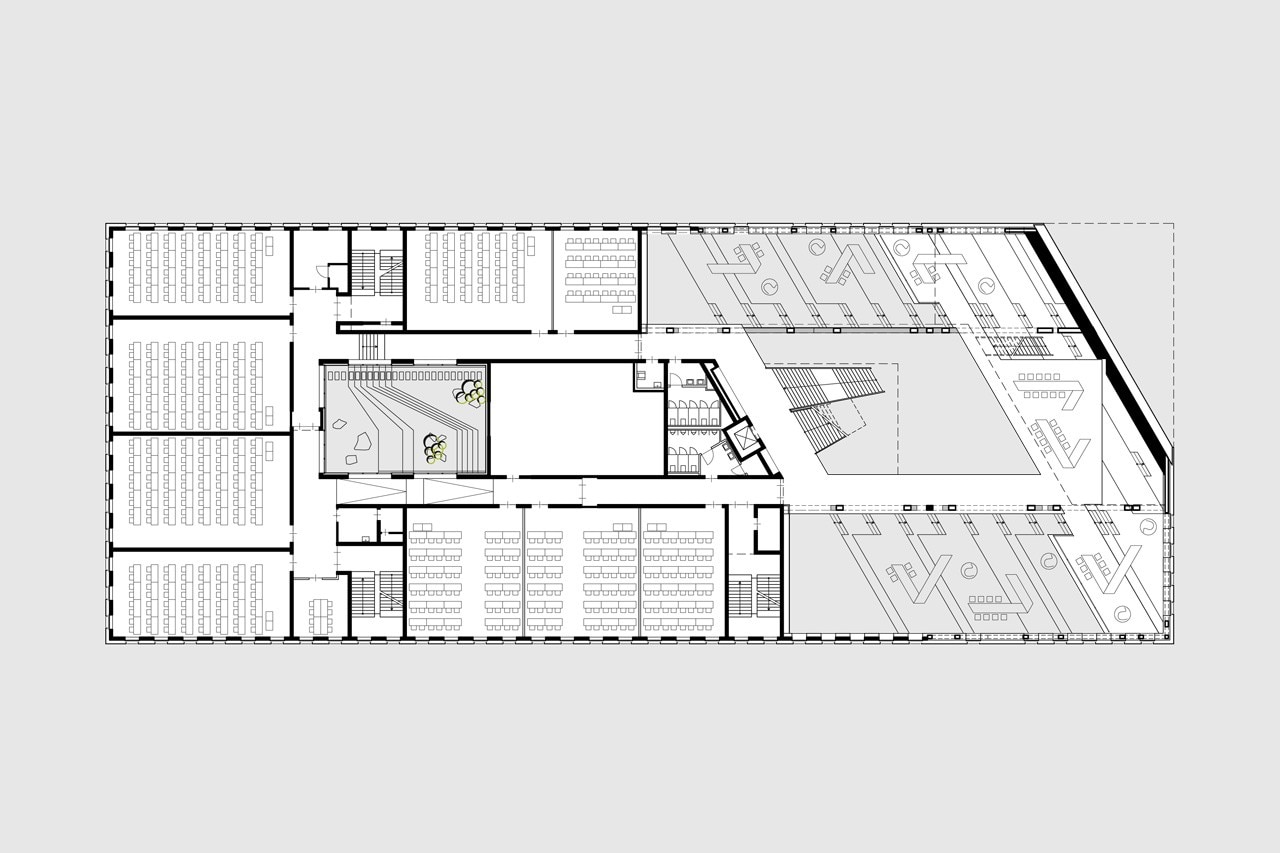
Benthem Crouwel Architects, Hörsaalgebäude Osnabrück, Osnabrück, Germania. Pianta del piano terra
Benthem Crouwel Architects, Hörsaalgebäude Osnabrück, Osnabrück, Germania. Pianta del primo piano
Hörsaalgebäude Osnabrück, Osnabrück, Germania
Tipologia: edificio universitario
Architetti: Benthem Crouwel Architects
Architetto responsabile: Markus Sporer
Team di progetto: Markus Sporer, Cornelius Wens, Sander Vijgen, Anna Gerlach, Joris Görling, Daniel Vlasveld, Carel Weber
Ingegneria strutturale: Kempen Krause Ingenieure GmbH
Ingegneria Fisica: ENAKON Wolfenbüttel GmbH
Ingegneria Meccanica: IQ Haustechnik
Architetti degli interni: Benthem Crouwel Architects
Graphic design: Thonik
Committente: Stiftung Fachhochschule Osnabrück
Area: 7.280 mq
Completamento: aprile 2014
