Galleria
LegacyER - Site Plan_Ground
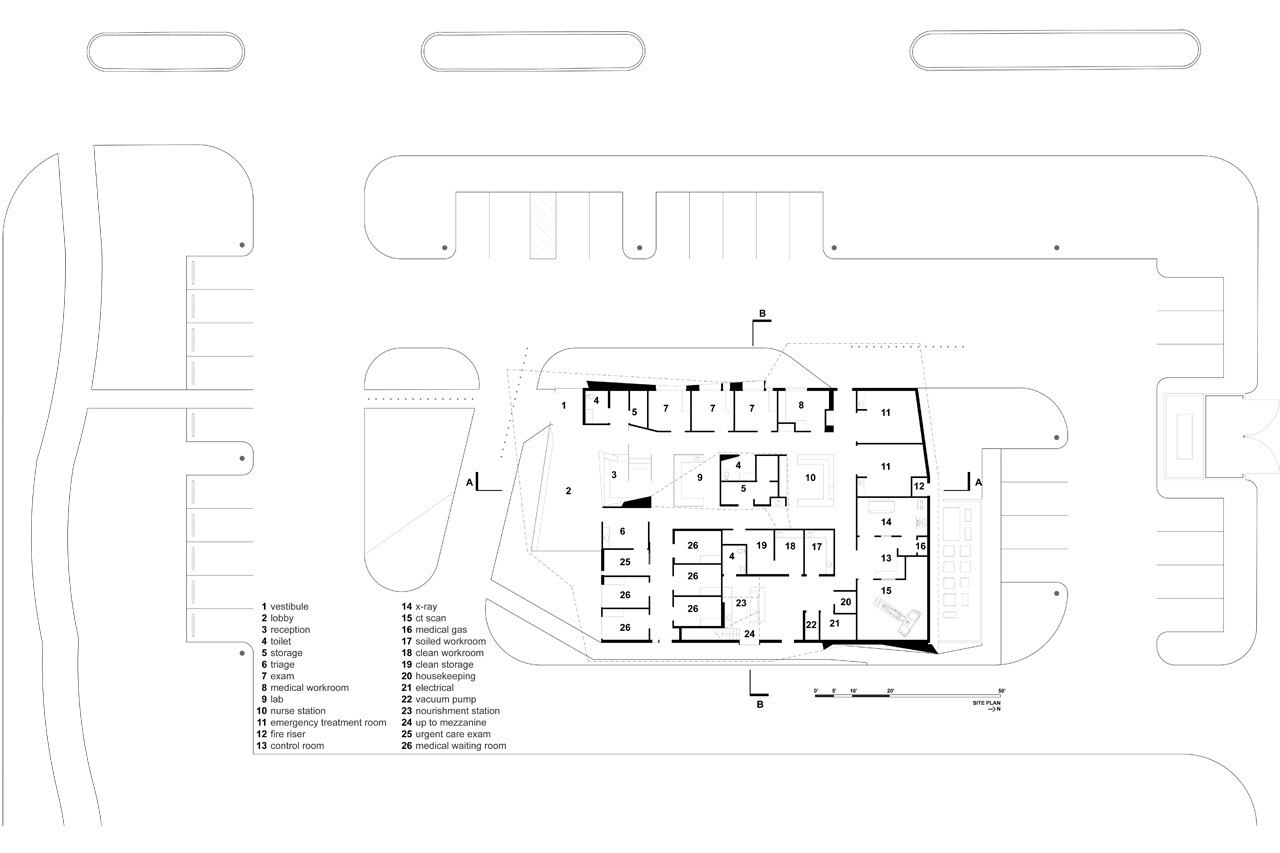
5G Studio Collaborative, Legacy ER-Allen, Allen, Texas. Inquadramento
Legacy ER-Allen, Allen, Texas
Tipologia: pronto soccorso
Architetti: 5G Studio Collaborative
Team di progetto: Yen Ong, Paul Merrill, Josh Allen, Christine Robbins, Danielle Cross (interior design)
Impresa: UEB Builders
Architettura del paesaggio: SMR Landscape Architects
Ingegneria civile: RLK Engineering
Ingegneria strutturale: Datum Engineers
Ingegneria impiantistica: Jordan & Skala Engineers
Area: 784 mq
Completamento: novembre 2013
