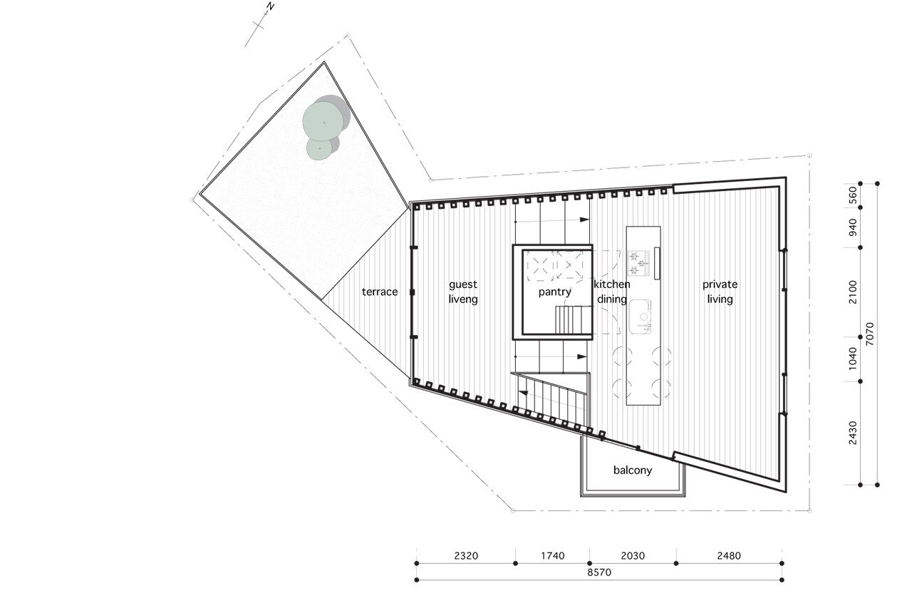
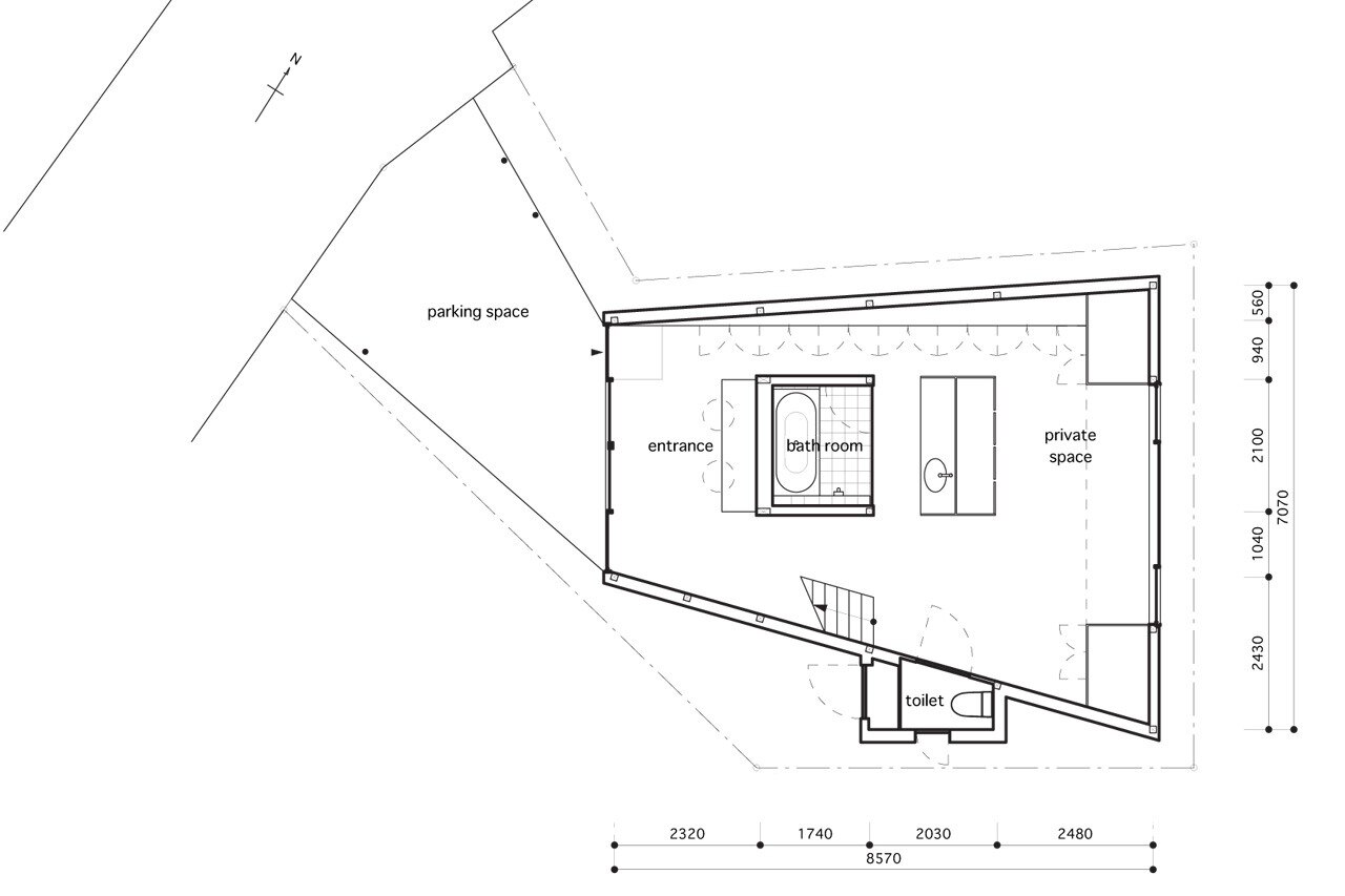
La sagoma dell’edificio segue la forma del lotto, con due giardini pensili progettati in modo tale da sembrare in continuità con l’area verde antistante. Il tetto verde che copre il garage scende verso il soggiorno, aprendo una prospettiva verso gli alberi del parco. L’altro giardino pensile, sopra la residenza, si abbassa verso la strada, partecipando al paesaggio verde del parco.
I giardini pensili svolgono un’importante funzione di regolazione climatica, assorbendo la radiazione solare durante l’estate e isolando termicamente gli ambienti interni durante l’inverno.
Lo spazio interno è un grande open space rivestito in legno, con un nucleo cavo al centro. Giocando con la luce naturale, la distanza dalla strada e i dislivelli, lo spazio diventa più privato procedendo verso il retro della casa.
Il vuoto centrale dirige la luce naturale verso il bagno al primo piano, servendo anche come sistema di accesso al tetto e di ventilazione. Inoltre, le pareti di questo nucleo sono state progettate per assorbire gran parte delle forze sismiche, consentendo di utilizzare pilastri di soli 50 mm per sostenere il tetto verde del garage.
Grass Cave House, Yokohama-shi, Kanagawa
Tipologia: casa unifamiliare
Architetti: Makiko Tsukada Architects
Ingegneria strutturale: Taizen Nieda e Mitsuyoshi Yoshida
Area: 97,18 mq
Completamento: novembre 2013
