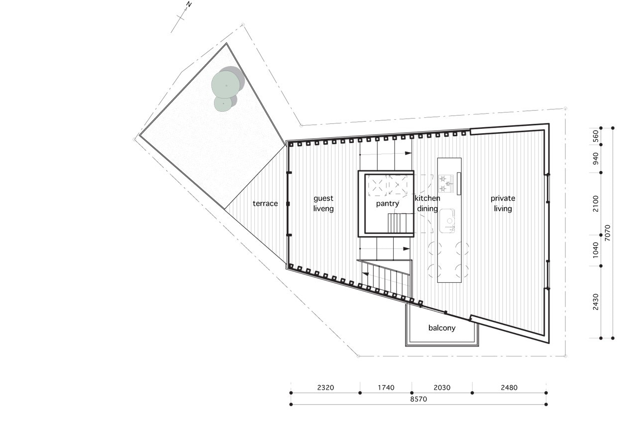
Specifically, the outline of the building was determined to follow the shape of the site. Two floating lawns were planned in a way such that they appear to be continuous with the green area in front. The lawn on the roof of the garage slopes down towards the living room, while directing a line of sight from the interior to trees in the park. Another lawn is made on the roof of the living space. It slopes down towards the street side, creating a rich green scenery along with the surrounding trees.
The floating roofs have a hat-like function that work as air conditioners to absorb solar radiation during summer, and as insulation to maintain the interior thermal environment during winter.
Grass Cave House, Yokohama-shi, Kanagawa
Program: single-family house
Architects: Makiko Tsukada Architects
Structural Engineer: Taizen Nieda and Mitsuyoshi Yoshida
Area: 97,18 sqm
Completion: November 2013
