Galleria
\\Ts5400db9e\OP\OP-DP\04-IMAGE\48-EDE\1-EDE-0 Layout1 (1)
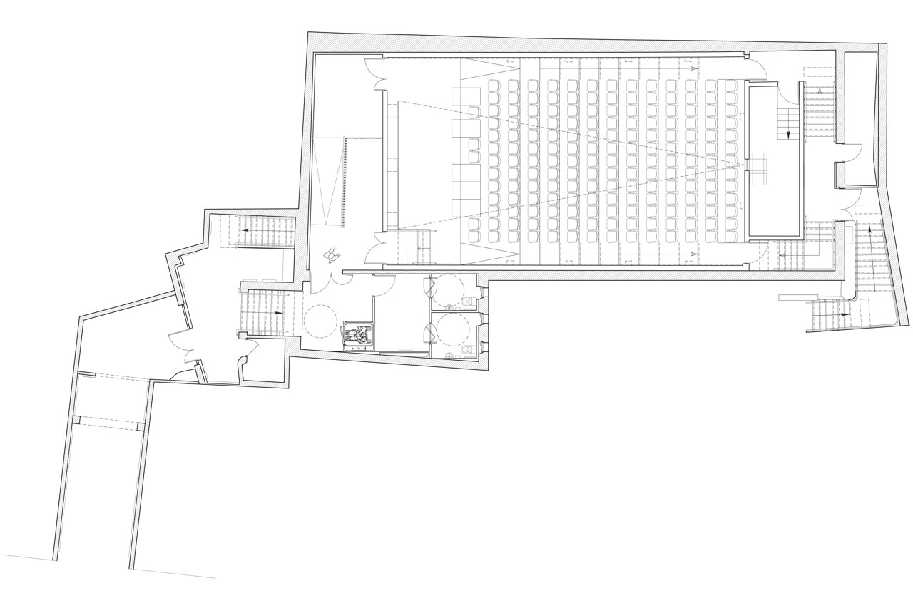
Olivier Palatre Architects, Eden Cinema, Montmorency, France. Ground floor plan
\\Ts5400db9e\OP\OP-DP\04-IMAGE\48-EDE\1-EDE-0 Layout1 (1)
Olivier Palatre Architects, Eden Cinema, Montmorency, France. First floor plan
Eden Cinema, Montmorency
Tipologia: ristrutturazione di un cinema
Architetti: Olivier Palatre Architects
Consulenza tecnica: Atelux
Committente: città di Montmorency
Area: 660 mq
Completamento: novembre 2013
