View gallery
\\Ts5400db9e\OP\OP-DP\04-IMAGE\48-EDE\1-EDE-0 Layout1 (1)
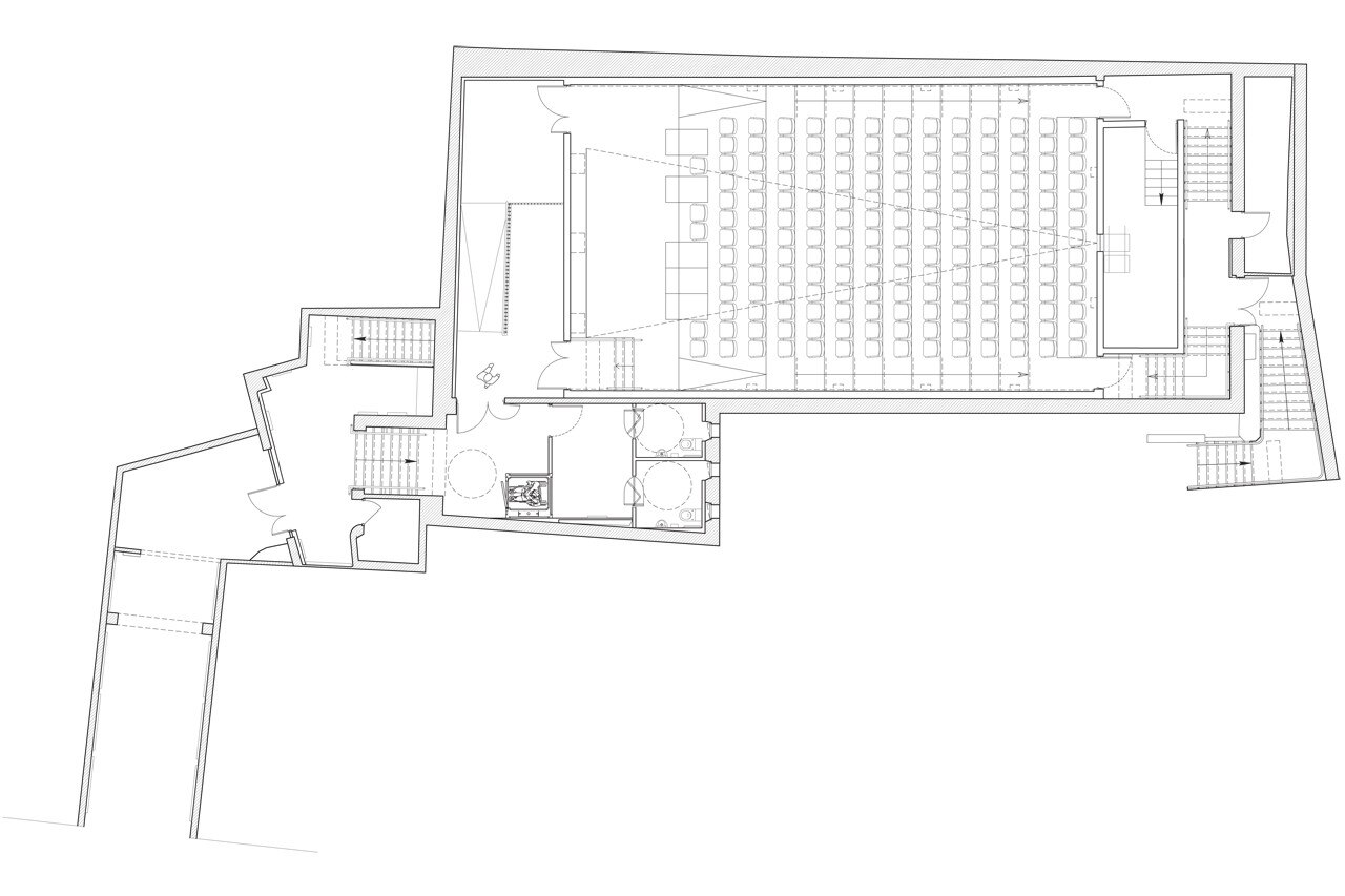
Olivier Palatre Architects, Eden Cinema, Montmorency, France. Ground floor plan
\\Ts5400db9e\OP\OP-DP\04-IMAGE\48-EDE\1-EDE-0 Layout1 (1)
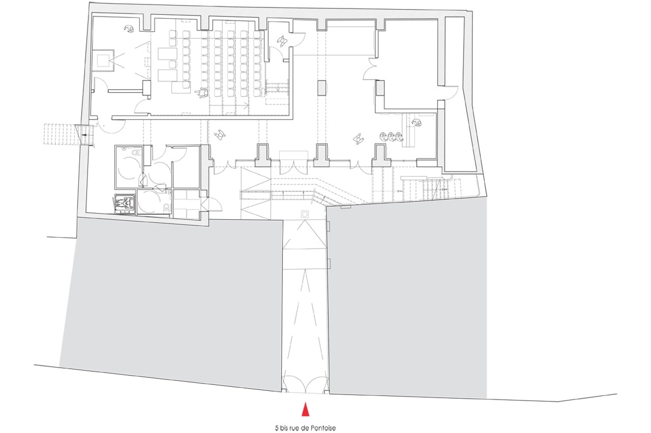
Olivier Palatre Architects, Eden Cinema, Montmorency, France. First floor plan
Eden Cinema, Montmorency
Program: restoration of a cinema
Architects: Olivier Palatre Architects
Technical Consultants: Atelux
Client: town of Montmorency
Area: 660 sqm
Completion: November 2013
