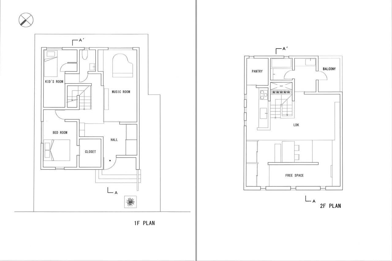
Dall’ingresso ci si trova di fronte a una stanza, delimitata da porte scorrevoli con feritoie rettangolari, utilizzata come sala da musica. Le aperture sono state disposte ritmicamente in modo da creare un’atmosfera che corrisponde alla funzione dell’ambiente. Aprendo i pannelli scorrevoli la stanza si unisce all’ingresso e al corridoio dando origine a un ambiente unico.
Al secondo piano sono collocati il soggiorno e la zona pranzo, dominati da uno spesso muro in cemento che divide lo spazio ed evidenzia la sua presenza attraverso il colore scuro, in contrasto con il resto delle cromie utilizzate.
Questi effetti di luce caratterizzano anche lo spazio intorno alla scala, sul lato opposto, leggermente staccata dal resto del piano. La parete rivestita in legno e la luce proveniente dalla profonda apertura sembrano abbracciare lo spazio, creando un’atmosfera calda e domestica.
Ciò che caratterizza la casa non sono quindi né dettagli elaborati né materiali costosi, ma la composizione spaziale e gli effetti visivi creati dalla luce e dai volumi.
Galleria
Tuneful House, Shiga, Giappone
Tipologia: casa unifamiliare
Architetti: FORM/Kouichi Kimura Architects
Committente: privato
Area: 125 mq
Completamento: 2014
