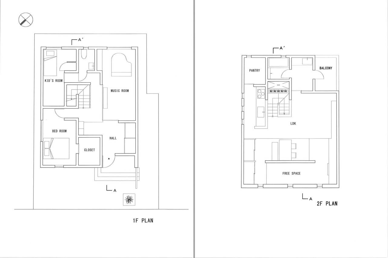
Entering at the front door, a room separated by sliding doors with rectangle slits appears. It is used as the music room. The rhythmically laid out slits create an atmosphere that matches the room. In contrast, by closing the sliding doors, the room is connected with the entrance, hall and passage, functioning as a unified, visually expanded space.
The living-dining room is located on the second floor. Various space renderings are provided in this single room. The room contains a wall which dimly reflects light from the top light and thus its texture is highlighted. This is a structural wall, and also an element that divides the space.
By dividing the room, it has brought about migratory traffic that creates a fascinating sequence. In addition, the carefully placed table, bench, and lighting fixture provide beautiful life scenes. Such visual effects and light renderings are also planned around the staircase located at the opposite side.
The planting space at the staircase modestly separates the staircase and the atrium to give a pleasant distance between them. The wall with warm wood surface and the light dispersed through the wooden louver gently embrace the space to produce comfortable lives.
What enhance this house are neither the elaborate details nor expensive materials, but the spatial composition resulted from the visual effect.
View gallery
Tuneful House, Shiga, Japan
Program: single-family house
Architects: FORM/Kouichi Kimura Architects
Client: Private
Area: 125 sqm
Completion: 2014
