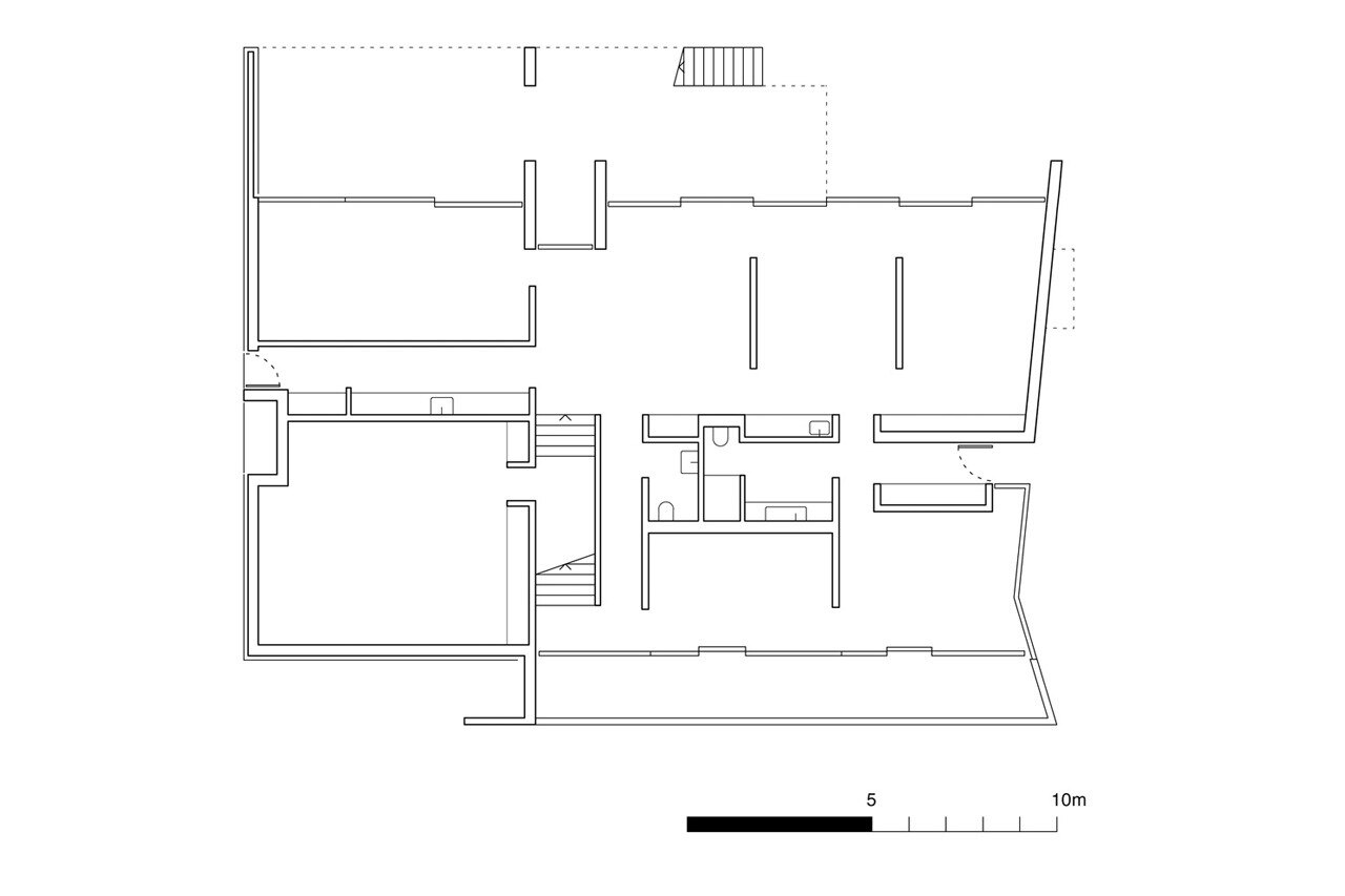
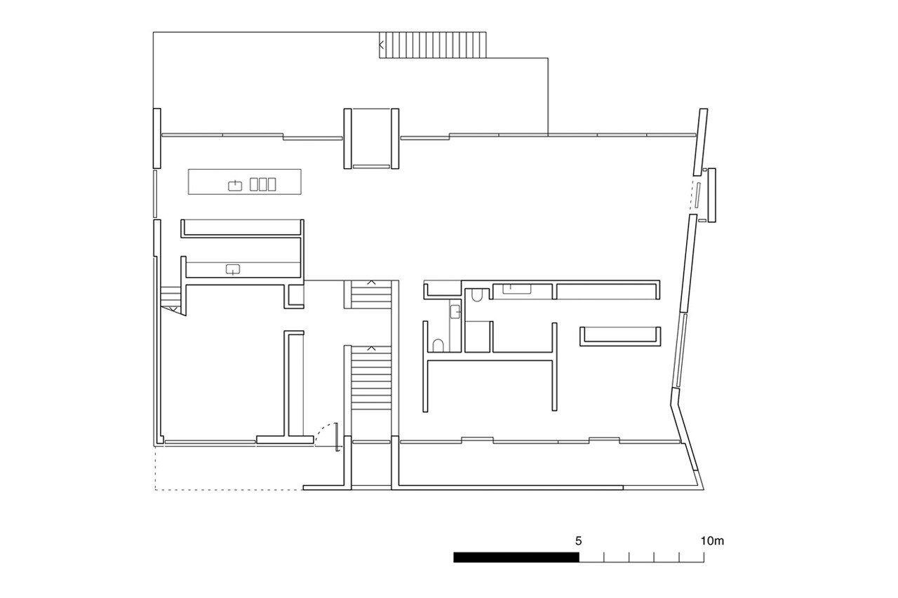
La massa monolitica della casa nasconde una cavità, dove si trova la porta d'ingresso. Il volume anteriore è alleggerito da un'incisione, che rappresenta il confine interno tra aree private e pubbliche. Un pozzo di luce dietro la facciata anteriore permette di illuminare entrambi i piani nella parte nord-est della casa. Il terreno in pendenza permette un accesso nascosto alla cantina e offre una magnifica vista della vicina penisola di Álftanes.
B25, Reykjavík, Iceland
Architetto: PK Arkitektar
Committente: privato
Team di progetto: Pálmar Kristmundsson, Fernando de Mendonça, Anja Schröter e Andrew Burgess
Consulenti: Conís Verkfræðiráðgjöf, Verkhönnun
Area: 457 mq
Completamento: 2010
