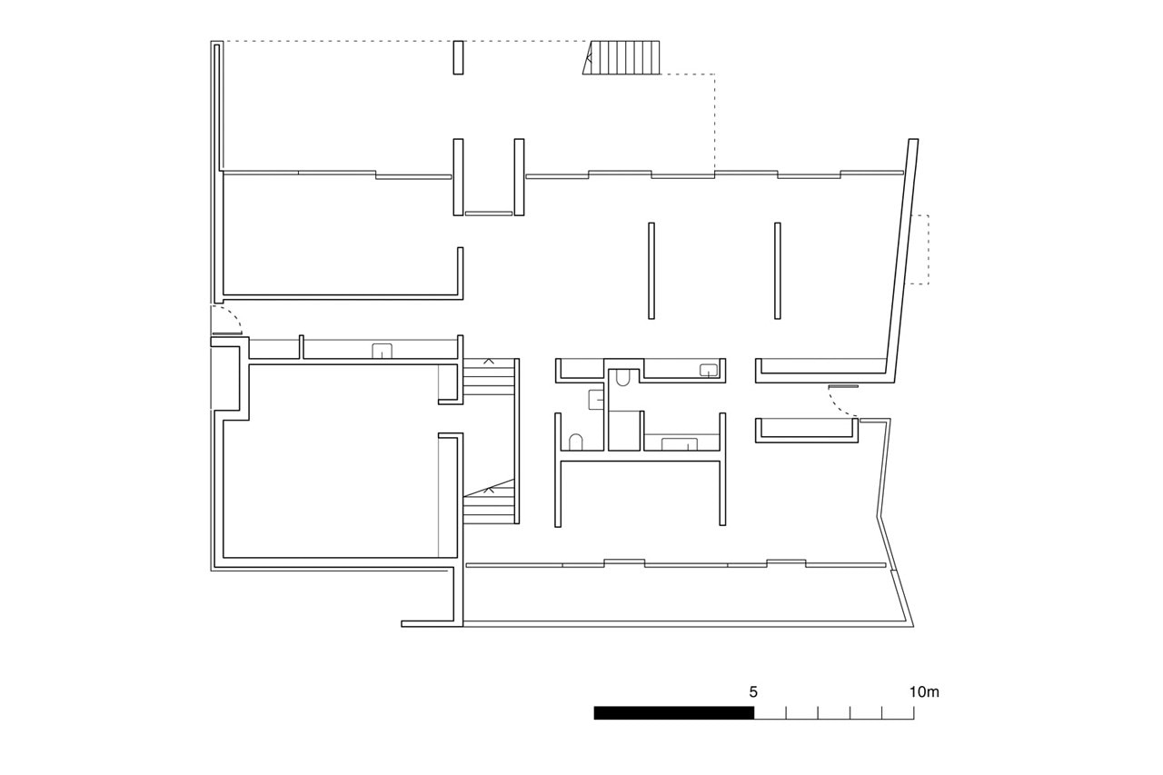
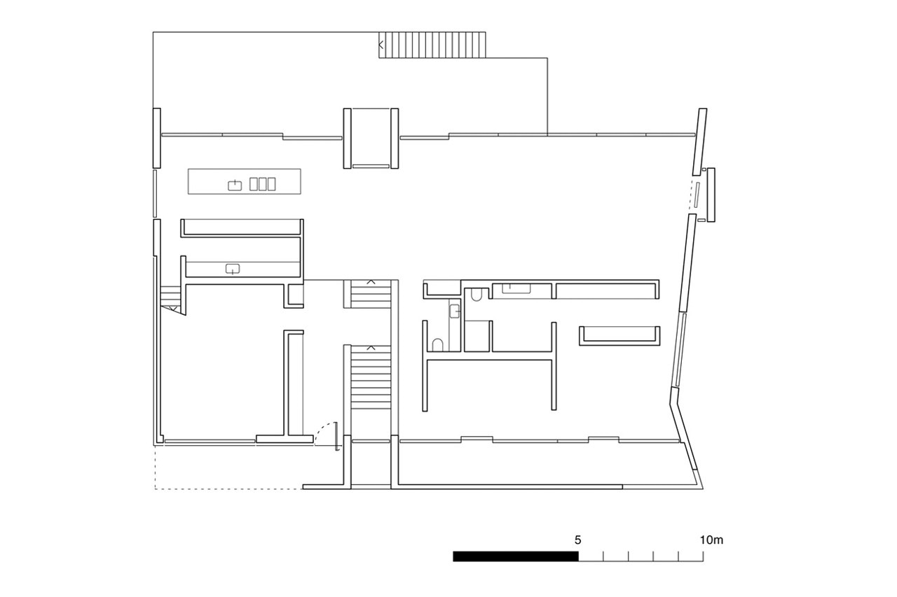
The house was conceived to appear from the street as a singular solid mass; with the entrance hidden from the street. By contrast, the rear side of the house, with private outdoor areas, has a sense of openness and permeability.
The monolithic mass of the house conceals a recess, where hides the front door. The front volume is lightened by an incision, which represents the interior boundary between private and public areas. A light well behind the front façade permits daylight into both floors in the northeast part of the house. The sloping plot allows for the basement to be hidden and gives magnificent views of the nearby Álftanes peninsula.
Red Rhyolite is employed here as cladding on the recessed surfaces of the otherwise white monolith. The front yard is a minimal surface of gravel and stone; greenery being restricted to a patch at the rear where a single tree stands. In stark contrast with the green walls and lush gardens common to the area: the arid treatment of the front yard applied here is more in line with Iceland’s nature and landscapes.
B25, Reykjavík, Iceland
Architect: PK Arkitektar
Client: privato
Project team: Pálmar Kristmundsson, Fernando de Mendonça, Anja Schröter e Andrew Burgess
Consultants: Conís Verkfræðiráðgjöf, Verkhönnun
Area: 457 sqm
Completion: 2010
