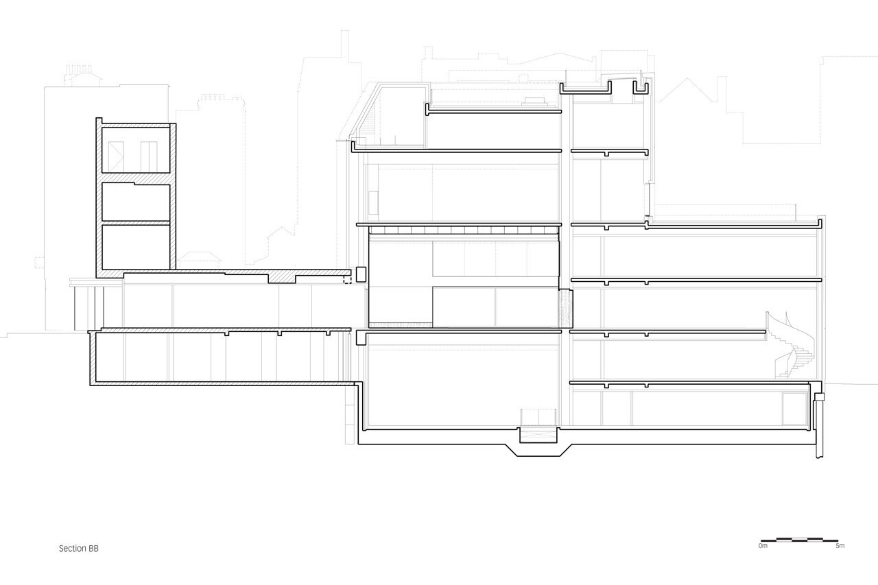
La sfida affrontata dagli architetti è stata quella di creare spazi flessibili all’interno di un edificio molto stretto nel centro cittadino, in una zona sottoposta a vincoli, e collegato a un volume esistente.
Galleria
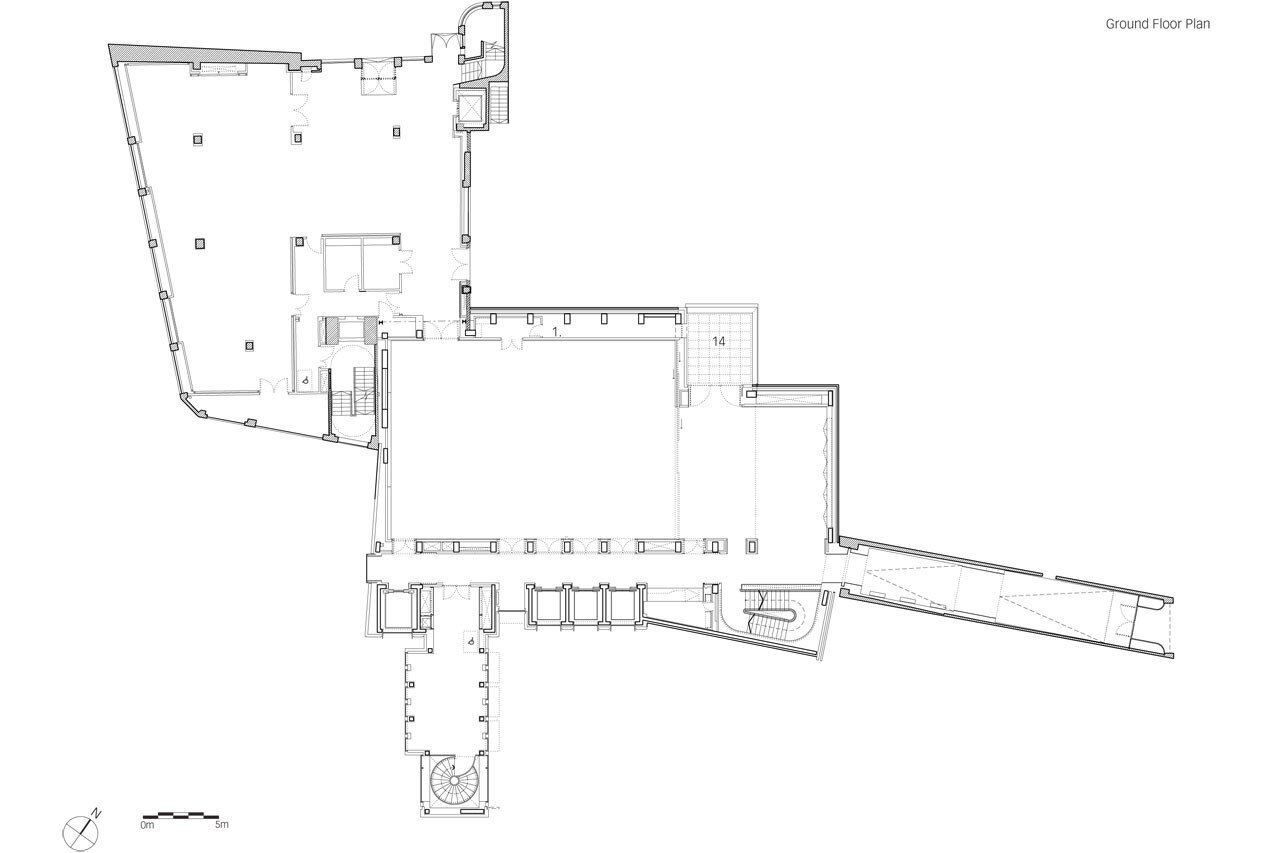
Lifschutz Davidson Sandilands, Bonhams New Bond Street Headquarters, Londra. Pianta del piano terra
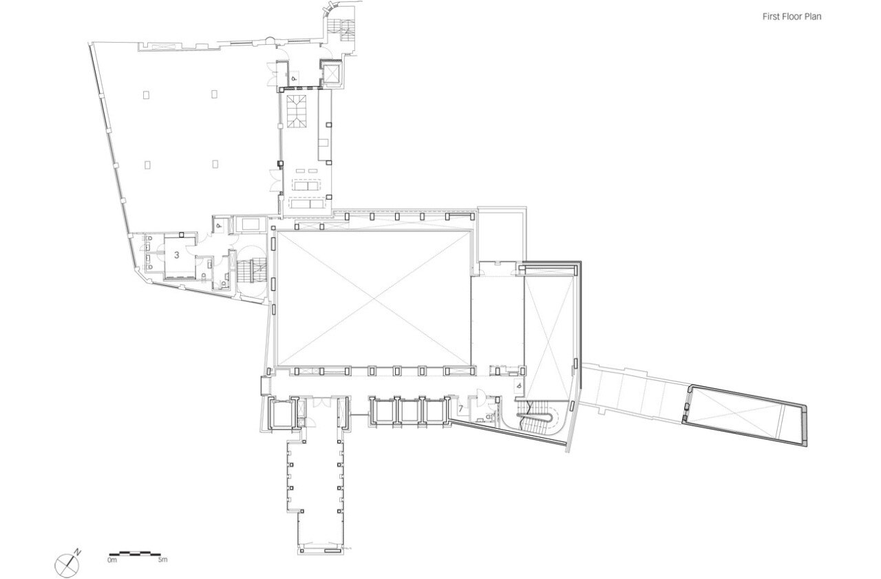
Lifschutz Davidson Sandilands, Bonhams New Bond Street Headquarters, Londra. Pianta del primo piano
Lifschutz Davidson Sandilands, Bonhams New Bond Street Headquarters, Londra. Pianta del quarto piano
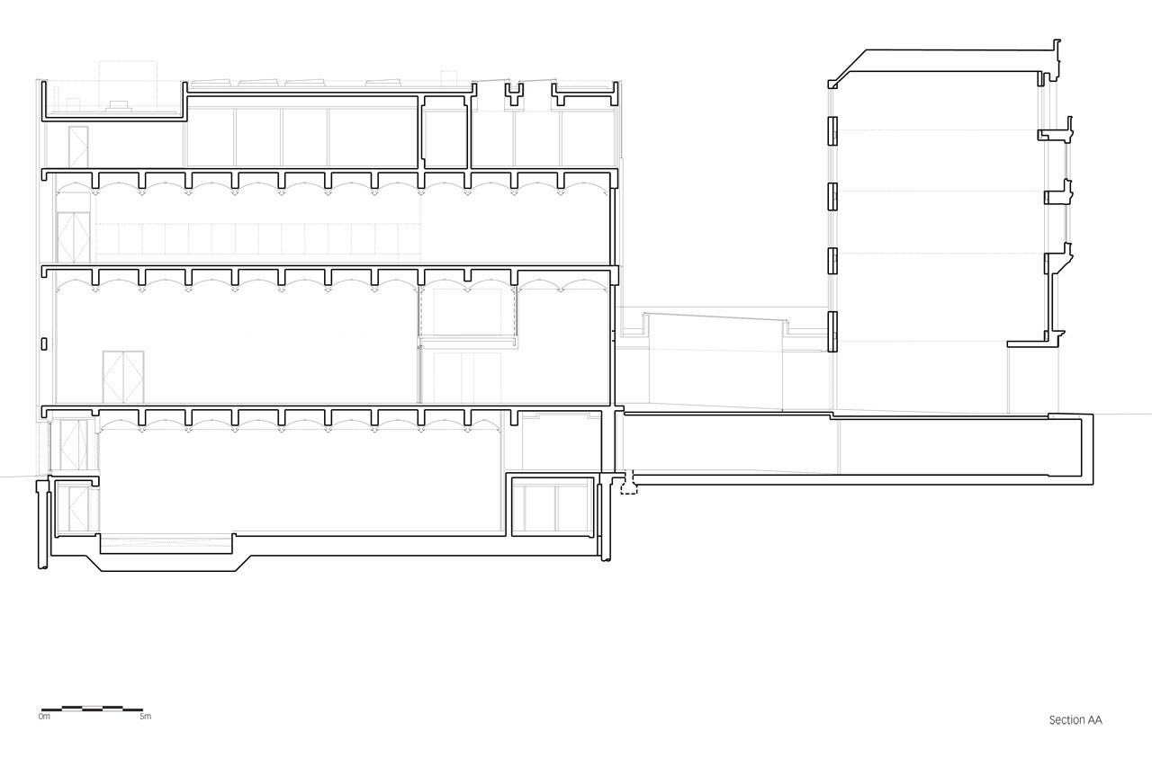
Bonhams New Bond Street Headquarters, Londra
Tipologia: casa d’aste
Architetti: Lifschutz Davidson Sandilands
Committente: Bonhams
Ingegneria: Mott MacDonald
Ingegneria strutturale: AKT II
Impresa: Knight Harwood
Completamento: 2013
