View gallery
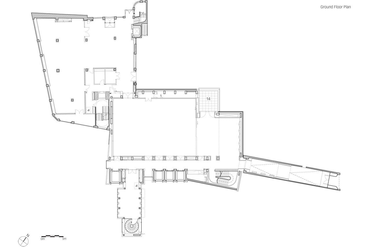
Lifschutz Davidson Sandilands, Bonhams New Bond Street Headquarters, London. Ground floor plan
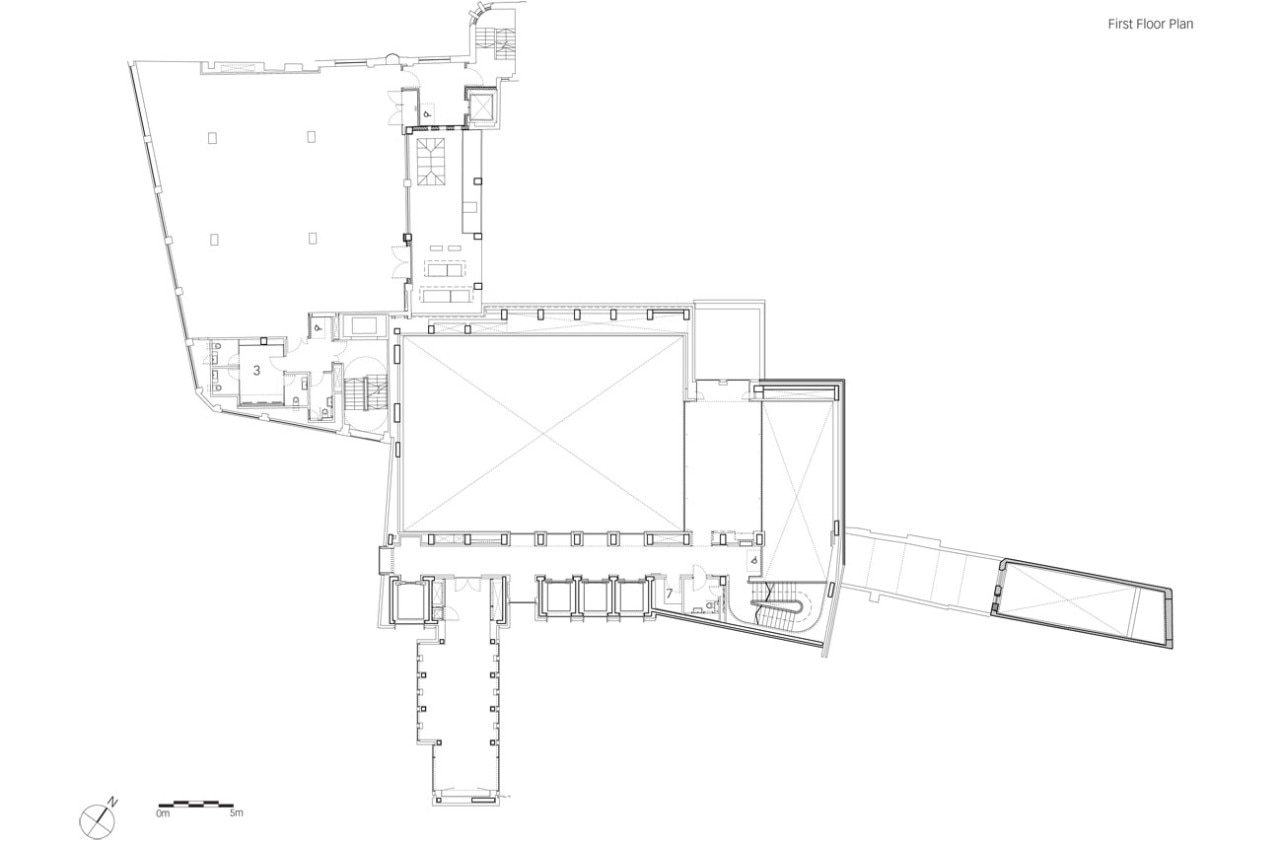
Lifschutz Davidson Sandilands, Bonhams New Bond Street Headquarters, London. First floor plan
Lifschutz Davidson Sandilands, Bonhams New Bond Street Headquarters, London. Fourth floor plan
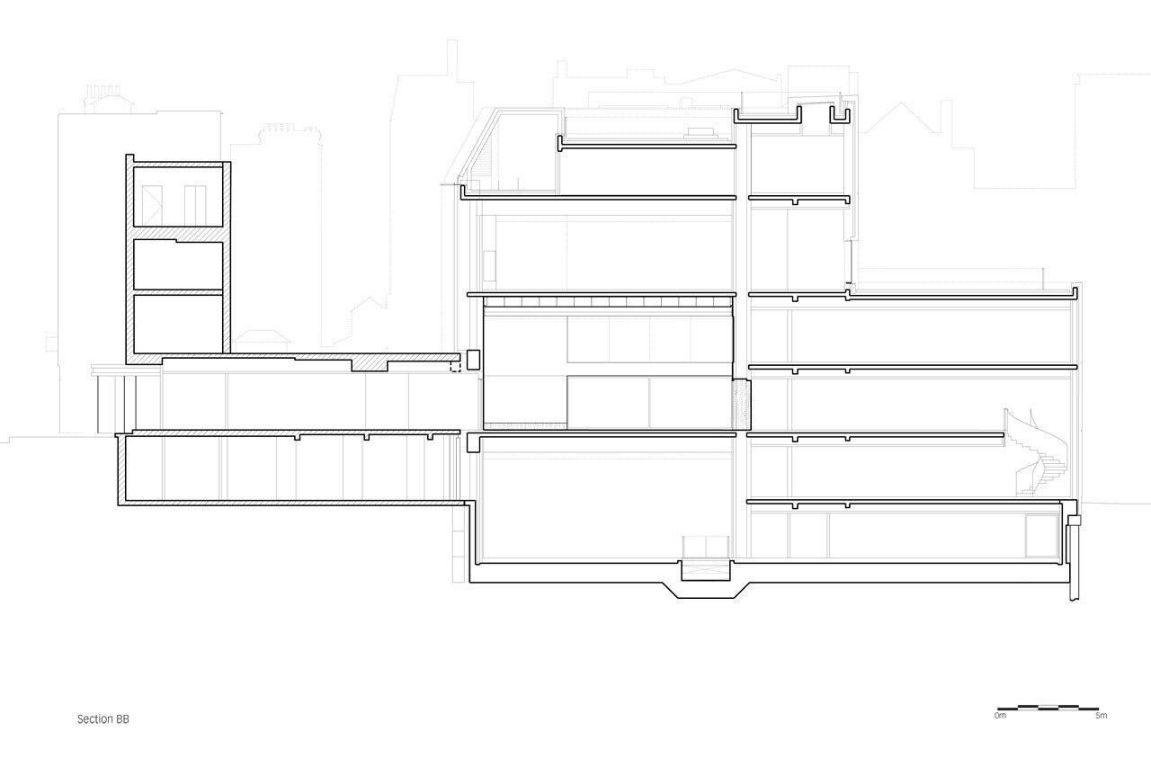
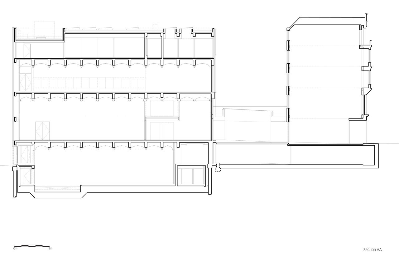
Bonhams New Bond Street Headquarters, London
Program: auction house
Architects: Lifschutz Davidson Sandilands
Client: Bonhams
Services Engineer: Mott MacDonald
Structural Engineer: AKT II
Main Contractor: Knight Harwood
Completion: 2013
