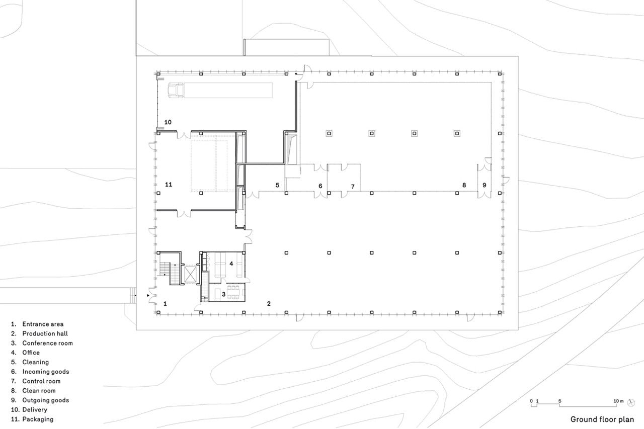
Capannone industriale a Gruesch, Svizzera
Tipologia: capannone industriale con camera bianca
Architetti: Barkow Leibinger
Area: 4.500 mq
Committente: Trumpf Gruesch AG
Ingegneria strutturale: Conzett, Bronzini, Gartmann AG
Ingegneria meccanica: Hans-Luzi Zuest
Ingegneria elettrica: Brueniger & Co. AG
Completamento: 2013
