Il nuovo corpo, sostenuto da otto colonne in acciaio indipendenti che attraversano tutto l’edificio, ospita due piani espositivi, per un totale di 1.000 mq. L’addizione si presenta così come un corpo indipendente, architettonicamente e strutturalmente. Il volume, denominato Art Cloud, è rivestito all’esterno da 55.000 piastrelle ceramiche tridimensionali, la cui superficie vetrificata blu e bianca riflette il colore del cielo, fondendosi con esso. Le aperture sul fronte nord consentono alla luce solare di penetrare nelle sale espositive, dalle quali i visitatori possono godere di una vista panoramica sulla città.
Galleria
H:\330 PR en acquisitie\332 Publikaties\Publicaties Hubert-Jan\2011 Boek Hubert-Jan\Beelden\extra 2012-09-24\552 DO 30-00a boek
L:\100-200 projecten\552 Museum de Fundatie Zwolle\cad\presentaties dwg\552 DO 20-00 presentatiedoorsnedes bureaufolder A3 Layo
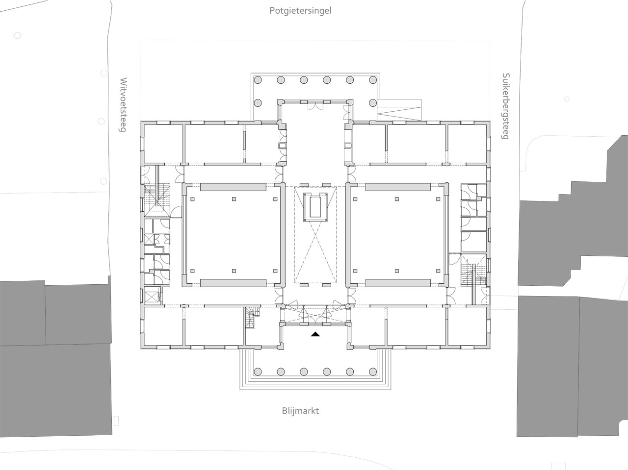
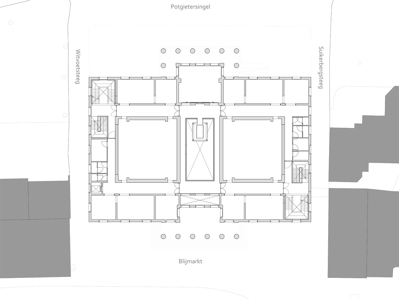
L:\100-200 projecten\552 Museum de Fundatie Zwolle\cad\presentaties dwg\552 W 00-00_04_publicatieplattegronden Model (1)
L:\100-200 projecten\552 Museum de Fundatie Zwolle\cad\presentaties dwg\552 W 00-00_04_publicatieplattegronden Model (1)
L:\100-200 projecten\552 Museum de Fundatie Zwolle\cad\presentaties dwg\552 W 00-00_04_publicatieplattegronden Model (1)
L:\100-200 projecten\552 Museum de Fundatie Zwolle\cad\presentaties dwg\552 W 00-00_04_publicatieplattegronden Model (1)
Museum De Fundatie, Zwolle, Paesi Bassi
Tipologia: ampliamento del museo
Architetti: Bierman Henket architecten
Committente: Museum De Fundatie / Gemeente Zwolle
Consulenti: ABT adviesbureau voor bouwtechniek bv, Huisman & van Muijen, Climatic Design Consult, Bremen Bouwadviseurs
Contractor: BAM oost
Ceramiche: Koninklijke Tichelaar
Completamento: 2013
