View gallery
H:\330 PR en acquisitie\332 Publikaties\Publicaties Hubert-Jan\2011 Boek Hubert-Jan\Beelden\extra 2012-09-24\552 DO 30-00a boek
Bierman Henket Architecten, Museum De Fundatie, Zwolle, The Netherlands, cross sectiond and facade connection
L:\100-200 projecten\552 Museum de Fundatie Zwolle\cad\presentaties dwg\552 DO 20-00 presentatiedoorsnedes bureaufolder A3 Layo
Bierman Henket Architecten, Museum De Fundatie, Zwolle, The Netherlands, cross sections
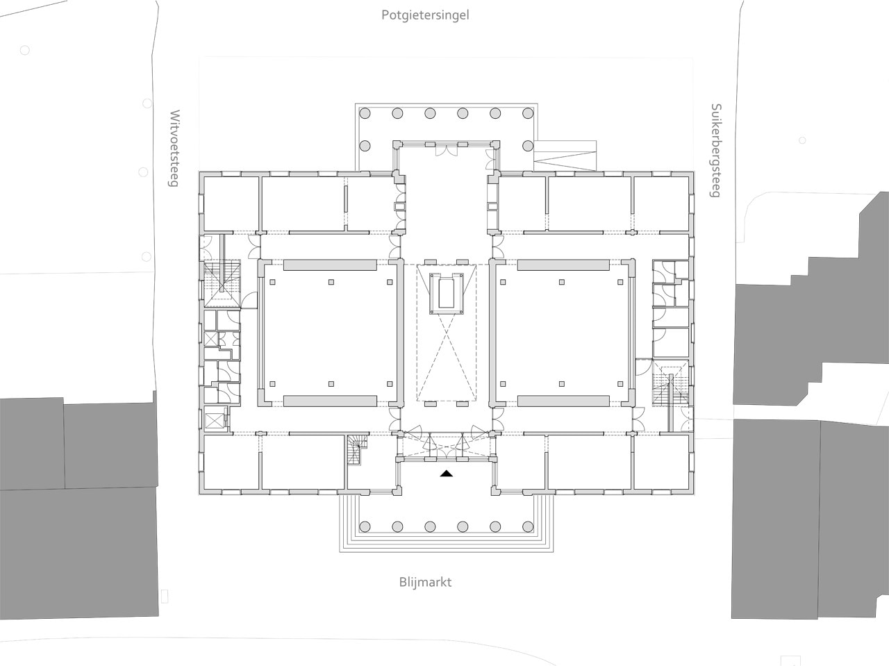
L:\100-200 projecten\552 Museum de Fundatie Zwolle\cad\presentaties dwg\552 W 00-00_04_publicatieplattegronden Model (1)
Bierman Henket Architecten, Museum De Fundatie, Zwolle, The Netherlands, ground floor
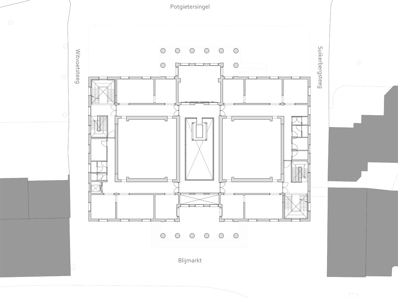
L:\100-200 projecten\552 Museum de Fundatie Zwolle\cad\presentaties dwg\552 W 00-00_04_publicatieplattegronden Model (1)
Bierman Henket Architecten, Museum De Fundatie, Zwolle, The Netherlands, first floor
L:\100-200 projecten\552 Museum de Fundatie Zwolle\cad\presentaties dwg\552 W 00-00_04_publicatieplattegronden Model (1)
Bierman Henket Architecten, Museum De Fundatie, Zwolle, The Netherlands, second floor
L:\100-200 projecten\552 Museum de Fundatie Zwolle\cad\presentaties dwg\552 W 00-00_04_publicatieplattegronden Model (1)
Bierman Henket Architecten, Museum De Fundatie, Zwolle, The Netherlands, third floor
Museum De Fundatie, Zwolle, The Netherlands
Program: museum extension
Architects: Bierman Henket architecten
Client: Museum De Fundatie / Gemeente Zwolle
Consultants: ABT adviesbureau voor bouwtechniek bv, Huisman & van Muijen, Climatic Design Consult, Bremen Bouwadviseurs
Contractor: BAM oost
Ceramics: Koninklijke Tichelaar
Completion: 2013
