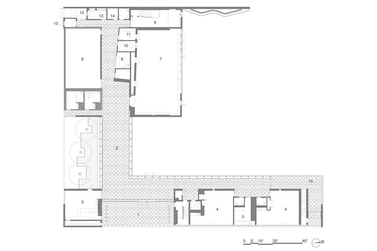
Le falciature ondulate delle erbe e le aree di fiori selvatici evocano le origini agricole della comunità. Il vecchio sentiero 'Hunterfly Road' scompare e riappare prima delle case come in un 'paesaggio fantasma' estrapolato da vecchie mappe.
Il paesaggio è l'elemento dominante della composizione. Questo spazio crea una distanza di transizione tra le dimore storiche e il nuovo centro. I terreni agricoli ricreati creano un movimento che collega il presente al passato, tra l'oggi e il domani.
In ossequio alle strutture storiche, l'edificio è mantenuto volutamente basso, collocato in modo da proteggere la vista delle vecchie case, fornendo l’accesso lungo il vecchio sentiero indiano verso le case e le ampie viste aperte del sito storico attraverso i corridoi trasparenti.
Sotto al terreno aperto ci sono sono sette pozzi a secco, per realizzare la percolazione in loco delle acque piovane, e 48 pozzi geotermici perforati ad una profondità di 470 metri. Il vasto numero di pozzi geotermico a circuito chiuso serve undici pompe di unità di trattamento aria acqua-aria calore, riducendo notevolmente la dipendenza del nuovo edificio dai combustibili fossili per il riscaldamento e il raffreddamento .
In linea con l'intenzione generale di progettazione di creare uno spazio apero alla comunità, tutti gli spazi interni sono inondati di luce naturale, offrendo una molteplicità di punti di vista del sito storico e il del quartiere circostante.
Weeksville Heritage Center
Brooklyn, New York
Architetto: Caples Jefferson Architects
Cliente: David Burney, FAIA, NYC Department of Design & Construction; Victor Metoyer, NYC Department of Cultural Affairs; Pamela Green, Weeksville Heritage Center
Manager: Hill International
Impresa: Brickens Construction
Ingegneria strutturale: Severud Associates
MEP Ingegneria: Loring Consulting Engineers
Ingegneria tecnica e geocivile: Langan Engineering
Ingeneria geotermica: P.W. Grosser Consulting
Progetto illuminotecnico: Berg-Howland Associates
Architetto del paesaggio: Elizabeth Kennedy Landscape Architects
Costi: Faithful + Gould
Acustica e audiovisivi: Shen Milsom + Wilke
Luci teatrali: Cline Bettridge Bernstein Lighting Design
Costruzioni: Metropolis
Specifiche: Heller + Metzger PC
Curtainwall: Gordon Smith Corporation
Progetto della sostenibilità: Viridian
Sicurezza: Ducibella Venter & Santore
Programmazione museale: Dial Associates
Costo: $26.000.000
