L’interno del centro sportivo è stato completamente riprogettato intorno all’asse costituito dal corpo ascensore circondato dalle scale di ingresso.
Le luci a soffitto sottolineano ulteriormente la direzione del percorso. La partizione rosa limita lo spazio senza chiuderlo. La riflessione dello specchio e la trasparenza del vetro creano un effetto di espansione spaziale.
Il ritmo visivo è prodotto in armonia con le travi in calcestruzzo a vista preesistenti. Varie esperienze sensoriali avvengono in uno spazio minimalista.
Un alto livello di attenzione fa in modo che i materiali, l’illuminazione e l’atmosfera rilassante vengano percepiti nella maniera migliore possibile da parte del pubblico.
Galleria
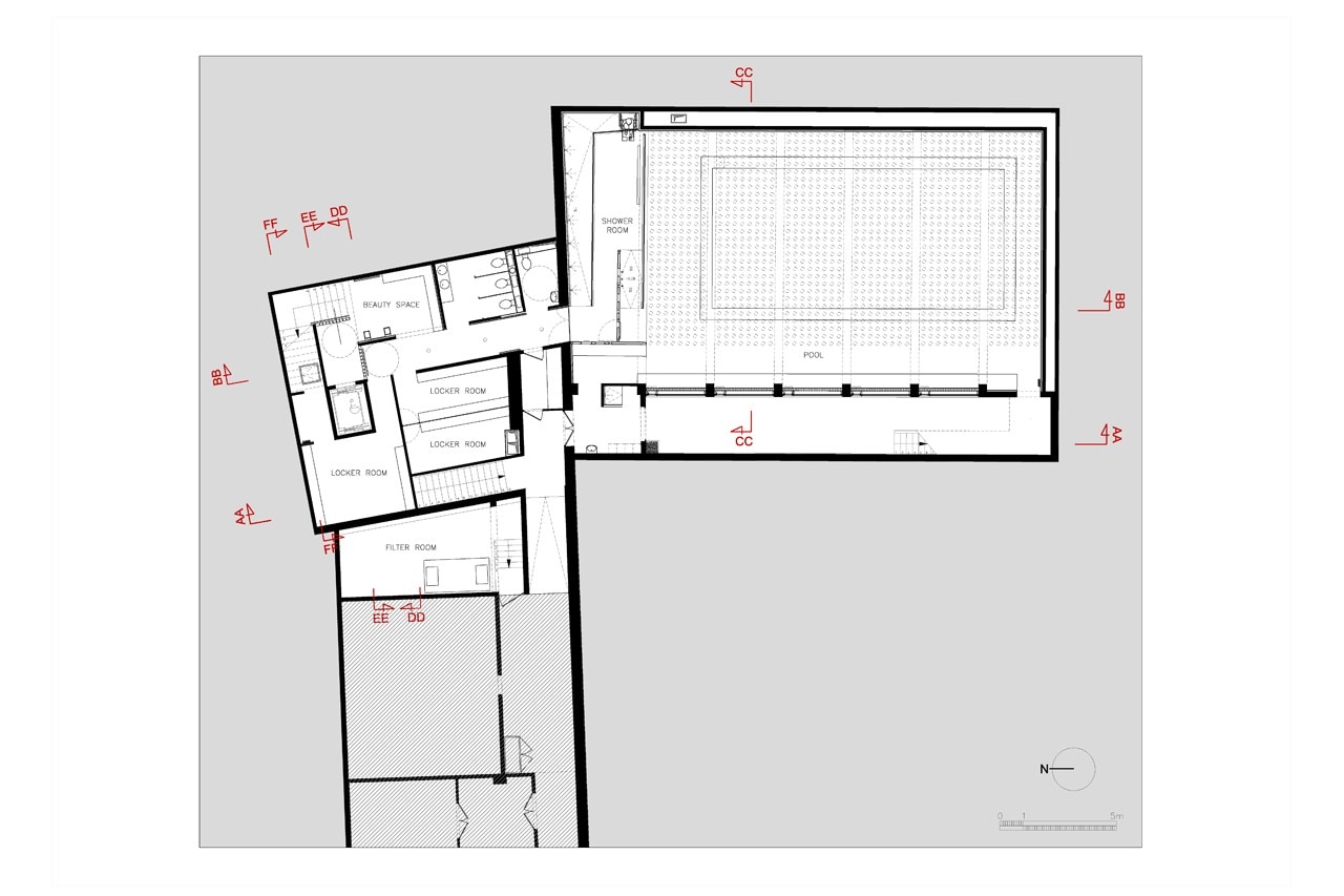
Centro Sportivo Atlas, Parigi
Tipologia: centro sportivo
Architetti: Yoonseux Architectes
Committente: Ville de Paris
Materiale: Solid Surface HI-MACS®
Area: 1.300 mq
Completamento: 2013
