njiric+njiric arhitekti

A marzo una grande esposizione al de Singel di Anversa, dal titolo "Kalvarienguertel". Entro la fine dell'anno, la pubblicazione di una monografia dedicata interamente alla loro attività, per i tipi della casa editrice spagnola Actar. Il 2001 sembra, insomma, segnare un momento di svolta professionale per la coppia di architetti croati Helena e Hrvoje Njiric che, da quasi un decennio, "calca" le scene dei concorsi internazionali facendosi notare per le proposte dall'elevato contenuto innovativo. Tanto schematico, quanto sintetico il loro modo di comunicare i progetti: l'idea di base è racchiusa in poche linee, tracciate a mano. Comunicativa e d'impatto la loro architettura che combina in modo perfetto il mondo digitale con quello analogico e si prefigge di essere immediata e spontanea. "Tutto è a portata di mouse", sostiene Hrvoje Njiric per il quale utilizzare il computer non significa dipendenza, ma, al contrario, liberazione da tecnica e metodo. Un'abitazione per il "nomade urbano" (Parasite) e una biblioteca universitaria a Barcellona (Think Pad) sono due dei loro ultimi progetti.
Prospettiva di progetto. In primo piano uno dei patii circolari
Prospettiva di progetto. In primo piano uno dei patii circolari
Pianta della biblioteca. In verde sono evidenziati i patii circolari
Pianta della biblioteca. In verde sono evidenziati i patii circolari
Ipermercato Baumaxx a Maribor (Slovenia), 1998-00. La copertura
Ipermercato Baumaxx a Maribor (Slovenia), 1998-00. La copertura
La coppia di architetti Helena e Hrvoje Njiric
La coppia di architetti Helena e Hrvoje Njiric
Think Pad, visualizzazione del progetto
Think Pad, visualizzazione del progetto
Schema di progetto per l’ipermercato Baumaxx a Maribor (Slovenia), 1998-00
Schema di progetto per l’ipermercato Baumaxx a Maribor (Slovenia), 1998-00
Mc Donald’s drive-in restaurant, Maibor (Slovenia), 1998-00
Mc Donald’s drive-in restaurant, Maibor (Slovenia), 1998-00
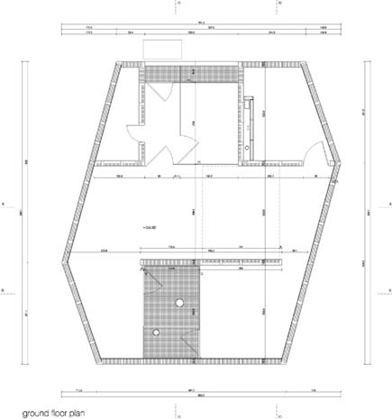
Pianta del piano terreno
Pianta del piano terreno
La soletta orizzontale bucata. A ogni foro corrisponde un patio sottostante
La soletta orizzontale bucata. A ogni foro corrisponde un patio sottostante
Esempio di morphing del piano. Ogni zona può assumere altezze diverse
Esempio di morphing del piano. Ogni zona può assumere altezze diverse
Ipermercato Baumaxx a Maribor (Slovenia), 1998-00. Veduta notturna dell’edificio
Ipermercato Baumaxx a Maribor (Slovenia), 1998-00. Veduta notturna dell’edificio
Modello dell’edificio
Modello dell’edificio
Modello della biblioteca
Modello della biblioteca
Pianta della biblioteca. In giallo è segnata la copertura al piano terreno
Pianta della biblioteca. In giallo è segnata la copertura al piano terreno
Ipermercato Baumaxx a Maribor (Slovenia), 1998-00. Veduta notturna dell’edificio
Ipermercato Baumaxx a Maribor (Slovenia), 1998-00. Veduta notturna dell’edificio
Schizzo di progetto. L’idea è presentata nella sua massima sintesi
Schizzo di progetto. L’idea è presentata nella sua massima sintesi

Ultimi articoli di Architettura

Altri articoli di Domus

China Germany India Mexico, Central America and Caribbean Sri Lanka Korea icon-camera close icon-comments icon-down-sm icon-download icon-facebook icon-heart icon-heart icon-next-sm icon-next icon-pinterest icon-play icon-plus icon-prev-sm icon-prev Search icon-twitter icon-views icon-instagram