The Australian brand Aesop opened a new shop in Kanazawa, designed by Case-Real. The brand is known for its engagement with local traditions; this project makes no exception as it embodies the company’s values by renovating an old nagaya–style row house in the dense fabric of the Japanese city.
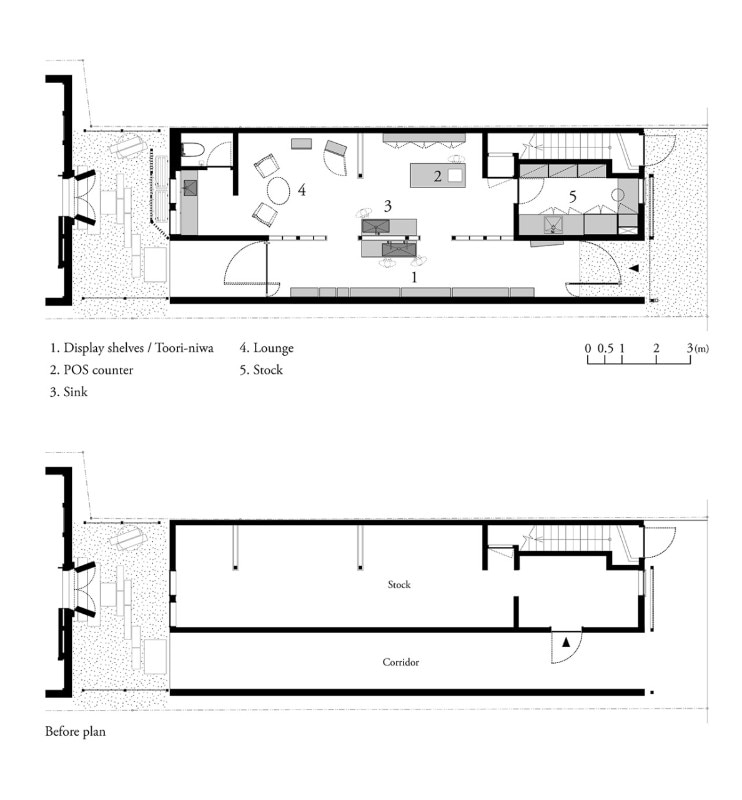
This typology was originally used for a combination of residential and commercial purposes; for this reason nagayas are located along a street, and are equipped with a semi-outdoor space, the toori-niwa, that bonds the commercial ground floor and the passers-by. While dealing with the existing structure, Case-Real decided to redesign the elevation facing the street, bringing back the traditional layout of the facade. The whole operation insisted on this aspect by demolishing what the architects considered to be posthumous accretions, and preserving the original atmosphere of the building.
The restored toori-niwa serves as a display area for the products, and brings the visitor to the sinks, a central element of the shop. The lounge area, the counter and the stock all revolve around this central point, that constitutes the core of the shopping experience, as water helps the scents of the products to propagate in the 67 sqm of the store.
- Project:
- Aesop Kanazawa
- Location:
- Ishikawa, Kanazawa, Japan
- Architect:
- Case-Real
- Construction:
- &S co.,ltd
- Lighting:
- BRANCH lighting design, Tatsuki Nakamura
- Area:
- 67 sqm
- Completion:
- 2016
