View gallery
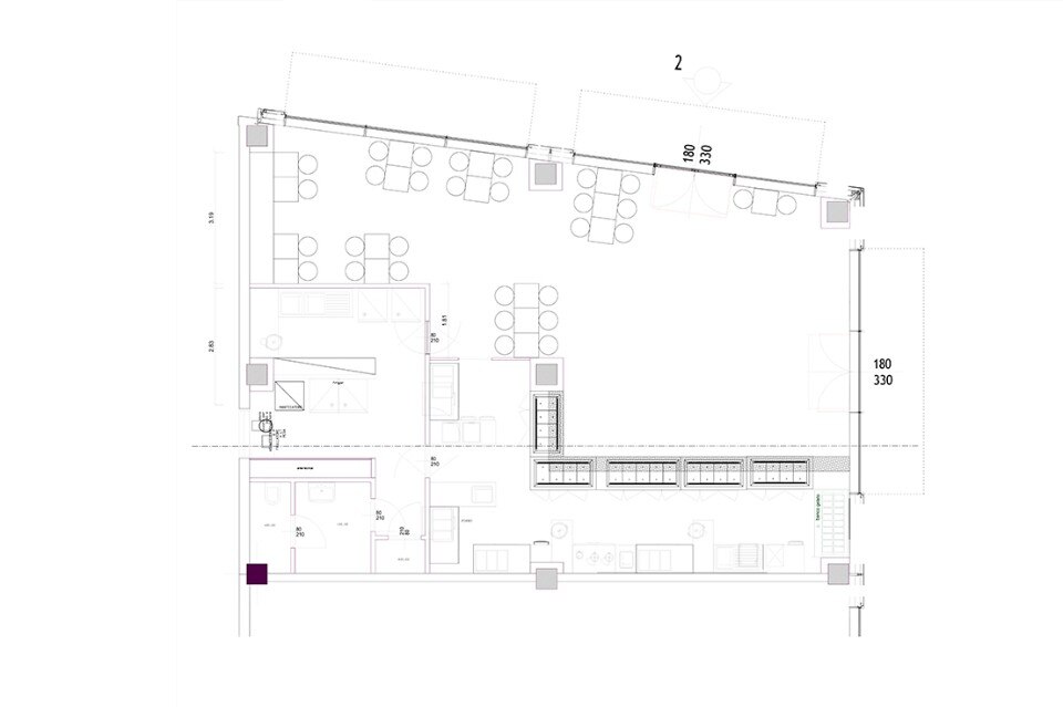
Materials research has focused on the nature and its production run; each element has a strong bond with the land: the wood, the transparency, the light colors, hand-made ceramics. The desk lamps, thin and designed to measure, they create timely and warm lighting, while for general lighting have been used of day lighting systems with industrial lamps. The vertical garden and the back counter, with fruit storage, are watered daily by a micronized water system that ensures freshness for bio food and green wall.
Fresco banco e cucina, Milan
Program: shop
Architect: MARGstudio
Furnishing: Pedrali – Nolita chairs, Laja and Nolita tables, Tatami armchairs
Completion: 2016
