View gallery
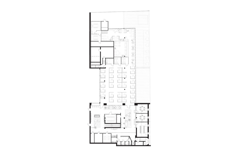
At its core, the company had concepts such as transparency, efficiency, excellence and mindfulness. The architects’ interpretation of this was to create an open and social workspace without clear hierarchies. The entrance lobby, surrounded by a wooden structure made of maple with shelves, mirrors, cork and brass net, acts both as a workspace for the employees, as well as a place to meet customers. Without any cellular office, workplaces are all the same size separated by maple wooden frames. Felt, mirrors and cork inside the frames create privacy and noise reduction.
Morris Law, Gothenburg, Sweden
Program: lawyer’s office
Architect: Bornstein Lyckefors arkitekter
Team: Johan Olsson, Per Bornstein, Andreas Lyckefors, Ainhoa Etxeberria, Emelie Johansson
Area: 1.000 sqm
Completion: 2015
