View gallery
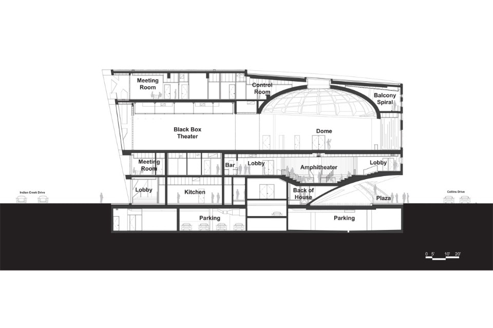
The lobby amphitheatre features Rosa Portugal pink marble floors and technical capabilities for surround projections. The upper floor assembly hall features a 12-metre-high dome with a central glazed oculus and a floor-to-ceiling window overlooking Indian Creek that can also be used for loading large scale art. A walkway that spirals up the interior wall of the Forum from street level to the top of the dome provides visitors with a range of perspectives on the space and additional seating. Combined, the balcony spiral, dome and cube have the capacity to host over 1,000 visitors. “The Forum represents endless possibilities to host a range of events – from concerts to conventions; roundtable discussion to banquets; intimate exhibitions to art fairs – all within a single evening”, explains lead designer Shohei Shigematsu. “Liberated from obligations to operate as a strictly institutional or a strictly commercial entity, the Forum presents a new typology for interaction, leveraging the ambiguous advantage of Faena’s redefinition of culture”.
View gallery
Faena Park (2,627 square metres) is a state-of-the-art parking structure with a capacity for 81 cars, as well as retail spaces at the street and top level. The 2,600 square metres structure features a mechanical system with parking lifts that stacks cars 2 per space for maximum efficiency. An exposed glass shaft way on 35th street reveals the vehicular and passenger movement within the building’s structure. The precast concrete façade features angled perforations allowing for ventilation and controlled.
Faena Forum, Faena Bazaar and Park, Miami
Program: mixed-use buildings
Design: OMA
Partners: Shohei Shigematsu, Jason Long
Associate-in-Charge: Jake Forster
Concept Design – Design Development
Project Architect: Clarisa Garcia Fresco, Paxton Sheldhal
Team: Yusef Ali Denis, Slava Savova, Cass Nakashima, Ariel Poliner, Jackie Woon Bae, Matthew Haseltine, Salome Nikuradze, Simon McKenzie
Construction Documentation – Construction Administration
Project Architect: Clarisa Garcia Fresco, Paxton Sheldhal (BOS|UA)
Project Management: Gardiner & Theobald, Inc., Claro Development Solutions
Architect of Record: Revuelta Architecture International, PA
Landscape Architect: Raymond Jungles, Inc.
Civil Engineer: Kimley-Horn and Associates, Inc.
Structural Engineer: DeSimone Consulting Engineers
Lighting: Tillotson Design Associates
Acoustic: Electro-Media Design, Ltd., Stages Consultants, LLC
Exterior Building Envelope: IBA Consultants, Inc.
Completion: 2016–17
