In a village with a strategic tourist location, 2 km from the Universal Studios Beijing Resort theme park, Atelier d'More has renovated an abandoned bed and breakfast, maintaining its original destination and structural layout, but significantly changing the sensory experience of the building.
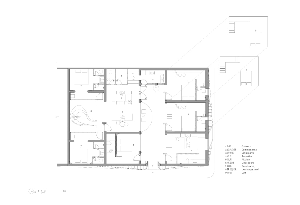
The complex, originally characterised by an incoherent aggregation of disordered volumes and long in a state of disrepair after the suspension of previous works, has been recomposed from its fragmentary state by a brand new external envelope consisting of an immaculate wall with fluid lines, which gives dynamic continuity to the facades.
A recess in the surface marks the position of the entrance, inviting visitors to be magnetically “sucked” into a renovated and surprising space.
Inside, neat and essential spaces accentuate the vaguely spiritual character of the space. The focal point of the composition is the central public area, flooded with light from the large windows, which houses the living/dining area and reception and acts as a pivot between the two existing courtyards: the entrance courtyard, an open space with immaculate, peaceful tones and symmetrical structures on both sides, which serves as the main distribution area, and the more intimate rear courtyard, dedicated to outdoor relaxation.
The intervention preserved the existing structures and walls, bringing to light and integrating, through selective and minimal interventions, through a design and construction process that combines technology and craftsmanship: most of the elements (from the external walls of the building, to the gutters and entrance doors, to the bedroom doors, bed frames and furniture) were digitally prefabricated and handmade on site by local craftsmen.
- Project:
- Sleeping lab·Tang
- Architectural project:
- Atelier d'More
- Leader designer and team:
- Wei Wang, Zhiyi Lu, Le Sheng
- Client:
- Sleeping lab
