Located in the Nihonbashi-Bakurocho, an important commercial district of Tokyo, the project of the DDD Hotel by Japanese studio Case-Real deals with the renovation of a 37-year-old, 10 story high business hotel building.
The great concentration of commercial trades in Japan has turned many buildings into spaces for night use only. To satisfy the needs of businessmen and commuters, the hotel as a sleeping space has become increasingly common within the Japanese routine.
Renovating, the purpose of Case-Real Architects has been to guarantee more than just good sleep and relaxing time in its new 122 rooms. On the other hand, the concept of a modern-day business hotel is defined by open areas located on the ground and first floor, which provide a cordial environment to spend quality time through facilities, such as a restaurant and a gallery.
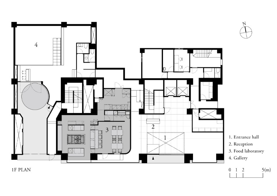
After entering the large entrance gate, designed to fit the tone of the existing tiles, the lobby hall welcomes the guests. This space is characterized by a double-height space and related openings to the main street. The first floor, originally dedicated to guest rooms, now embraces wide open space with lounge areas adjacent to a multi-counter bar. Welcoming the clients with both the reception and the cafe functions, the interiors of this level identify a minimal design with pure lines and delicate combinations.
Located on the ground floor and facing the main street, the Food Laboratory is hosted in an open space with a minimal kitchen and an array of workstations. Steel is the main visible material in the equipped room, with both matte and glossy finished surfaces.
The former parking-lot was converted in a contemporary Art Gallery with independent access. Here, the neutral interiors are completely different: the colour white is predominant and it is only matched with a concrete texture extended in the floor. From the entrance of the gallery, the main exhibition level is accessible through a concrete staircase.
From the 3rd floor upwards and in contrast with the two levels below, the idea of a relaxing and resting space was strengthened. In the guest rooms, the original arched windows give both a delicate aesthetic connotation and a new affinity with the external urban context. The function of each room is kept to its minimum and elegance. The furniture pieces are transformed into a unique green boiserie that highlights the spaces and hides the services of the room through sliding panels.
Presented through different combinations of neutral tones, the moss green colour shows expressions depending on the lighting conditions and it gives to all the environments a special signature. It is the main colour in the renovated hotel and it guides the guests through all the different spaces. This intense tone with its dark and decisive nature is especially intended for brilliant and warm lively sensations. As a bright green in the daylight and a deep but warm tone at night, the moss green is the main character of the DDD Hotel.
Curated by Branch, lighting design is one of the project’s key elements. Artificial light is never direct in the hotel but it appears through luminous bands and small spotlights.
