In a sloping plot plunged into the fragmented countryside of Penafiel, in northern Portugal, Nuno Melo Sousa has created a dwelling that encloses itself to the street to gradually be revealed inside.
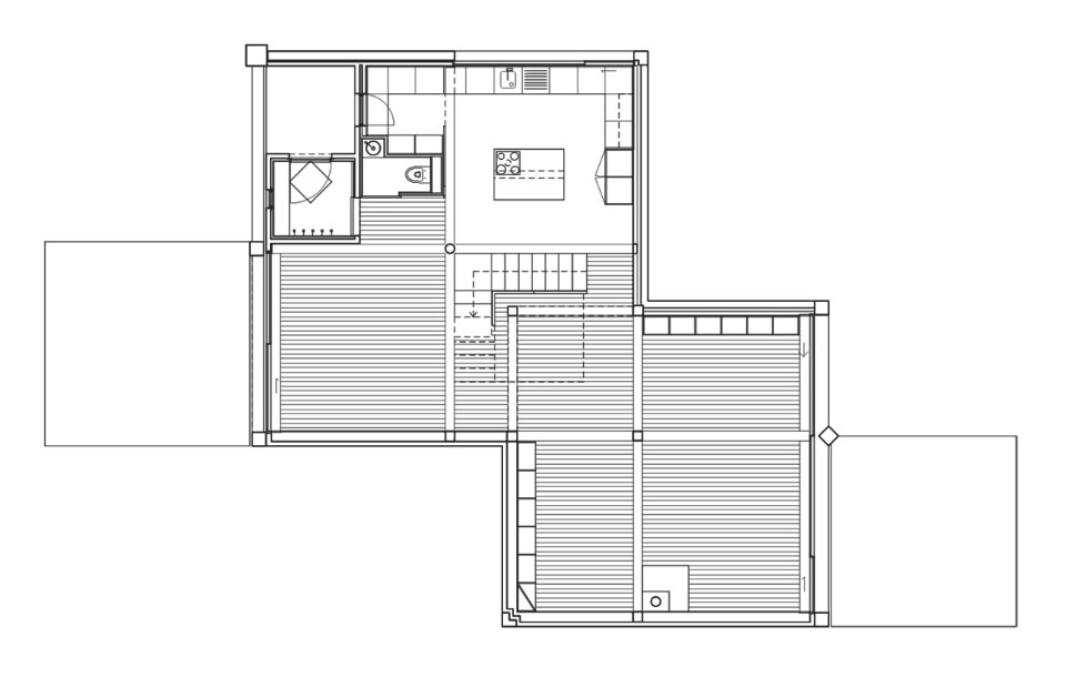
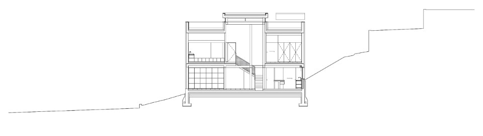
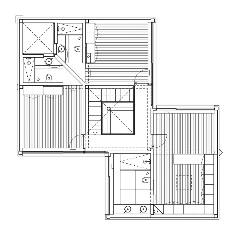
The building is characterised by a clear and rigorous composition: two squares corresponding to the different functional areas intersect at the centre in the triple-height common space, where the staircase connecting the two floors is located. On the ground floor the kitchen and communal areas are located; on the floor above, the bedrooms with private bathrooms.
The rigour of the geometric composition, the clear structural modulation and the nonchalant use of exposed reinforced concrete declare a Brutalist inspiration. From the outside, the building with its plastered front appears as a blind, introverted screen protecting domestic intimacy. A long, narrow staircase leads to the concrete entrance porch which, followed by a light well and a small hall acting as a filter between outside and inside, leads into the private realm of the dwelling.
Inside, a modular grid clearly exhibited in the exposed concrete beam and pillar structure denounces the building's constructive straightforwardness and punctuates the fluid and unified spaces evocating Adolf Loos' Raumplan system devoid of corridors, standing out vigorously against the immaculate walls and wooden floors.
- Collaborator:
- João Taveira
- Contractor:
- Isidro Rodrigues Silva - Construções
- Engineering:
- Helder Gomes
