If an architect is also his own client, it is inevitable that when the personal framework of needs, memories, habits feeding the creative process has to face any lucid process planning – from cost management to time control – compromises are even more painstaking because it is one's own home. When the work is then located in a highly constrained context – from a topographical, functional, regulatory point of view – the complexity is amplified and the work takes on an even more challenging character. This challenge was taken up by Jemima Retallack and Mitchell Thompson, a duo of Sydney-based architects who identified a narrow, steep lot in the bustling suburb of Darlinghurst for their home-studio, seeing in the site an opportunity far greater than the constraints of the site's restrictions.
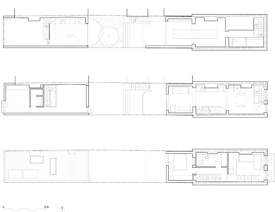
The site originally contained a cramped and dilapidated 1830s listed sandstone house, which the architects salvaged and repurposed as their own studio and two-bedroom dwelling, consistently naming it Stone House.
As a counterpoint to the solid stone architecture, the studio has conceived and realised a second building (Steel House) at the rear of the plot, on the site of a cottage burnt down in the early 20th century, openly contrasting with its ethereal and light silhouette the materiality of the existing stone building, and evoking the absence of the demolished cottage. The new construction increases the amount of living space: kitchen, living room and garage on the ground floor, two bedrooms on the first floor. The fronts are characterised by a diaphanous cladding of shaped sandblasted aluminium panels which reflect the sky and dialogue with the windows framed by thin metal profiles.
A small garden with rich vegetation separates the two buildings located on different levels, promoting the autonomy and intimacy of the dwellings while offering an open-air space protected from metropolitan congestion.
In the interiors, a meticulous study of details characterises simple but extremely refined spaces, where the studio has explored the possibilities of materials – from the smooth concrete of the floors to the wood of the furniture – in their most straightforward and essential ways of expression.
