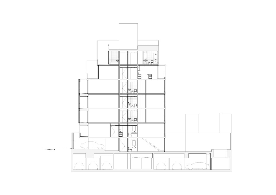
Casa Sucre is located in the residential neighbourhood of Belgrano in Buenos Aires. The building has 8 floors – including underground parking – and a roof terrace for residents on the top level.
The project focuses on the relationship between communal and private, open and closed spaces: living areas are connected to balconies over their entire width, creating new environments in a strong dialogue between inside and outside. On the main facade, sliding fabric panels cover the building, allowing a glimpse of the balconies. By moving, they create always different compositions emphasizing the dualism transparency-opacity.
These dynamic surfaces make the building lighter and at the same time serve for thermal and light control, sound absorption and energy saving. The flats, two on each floor, consist of a living area facing the main side and bedrooms located at the back.
- Progetto:
- Edificio de Viviendas Sucre 812
- Location:
- Belgrano, Buenos Aires, Argentina
- Program:
- Residential building
- Architects:
- Estudio de Ana Smud y Alberto Smud
- Team:
- Ana Sol Smud, Alberto Smud, Pilar Esnagola, Sasha Molczadzki, Camila Jalife, Florencia Lopez Iriquin
- Lighting:
- Pablo Pizarro
- Construction:
- Alberto Smud
- Interiors:
- Agustina Gentili
- Area:
- 2,165 sqm
- Completion:
- 2020
