This interview was originally published on Domus 1084, November 2023.
Toshiko Mori: The topic of this November issue is “Temporal” and it focuses on conditions of instability and unpredictability in different parts of the world, how climate change and socio-economic and political circumstances are destabilising communities, and how architects are coming up with creative solutions to manage and design spaces and facilities. What are the specific challenges of instability related this project site and its location?
Ignacio Urquiza: Like most cities around the world today, Mexico City presents extreme contrasts between the lush, culturally buzzing streetscapes of its wealthy neighbourhoods and the glaring inequities of underserved communities whose citizens’ daily lives are marked by precarity. So many of Mexico City’s inhabitants face meagre wages, work instability, constant looming violence, and a disheartening lack of public services and infrastructure. In 2018, Mexico City’s government launched the Pilares initiative (a Spanish acronym for “Points of Innovation, Freedom, Art, Education and Knowledge”) that would result in 100 community centres distributed across the most underserved neighbourhood in the city.
Each structure was conceptualised as supporting various kinds of classes and workshops in support of skill-building, as well as bringing cultural programming, learning opportunities and safe spaces for leisure and cross-generational gathering to each neighbourhood. And while the initial Pilares were successful in terms of programming, the buildings were often poorly designed and shoddily built by contractors with little oversight. In January 2020, harnessing Mexico’s strong modernist legacy of engaging architecture in the service of the public, the government decided to enlist a number of well-known architects to design and oversee the construction of 26 of the Pilares, asking each practice to focus on the conditions of its site and social context to address the community’s specific needs while also following the programming guidelines established through extensive community engagement.
View gallery
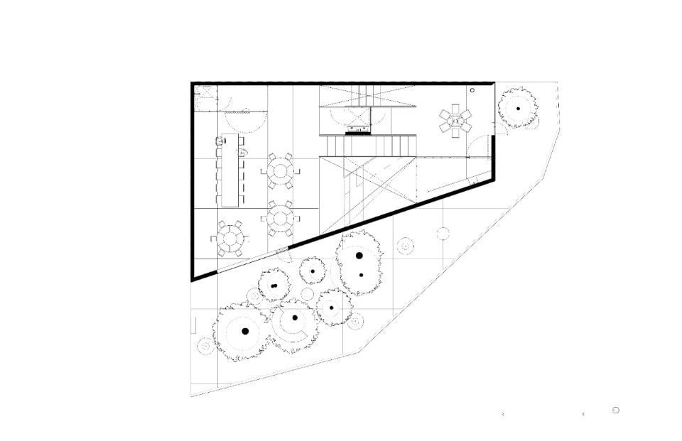
WORKac + IUA Ignacio Urquiza Arquitectos, Pilares Lomas de Becerra community centre, Mexico City, 2022
All project materials © WORKac + IUA Ignacio Urquiza Arquitectos
WORKac + IUA Ignacio Urquiza Arquitectos, Pilares Lomas de Becerra community centre, Mexico City, 2022
All project materials © WORKac + IUA Ignacio Urquiza Arquitectos
WORKac + IUA Ignacio Urquiza Arquitectos, Pilares Lomas de Becerra community centre, Mexico City, 2022
All project materials © WORKac + IUA Ignacio Urquiza Arquitectos
WORKac + IUA Ignacio Urquiza Arquitectos, Pilares Lomas de Becerra community centre, Mexico City, 2022
All project materials © WORKac + IUA Ignacio Urquiza Arquitectos
WORKac + IUA Ignacio Urquiza Arquitectos, Pilares Lomas de Becerra community centre, Mexico City, 2022
All project materials © WORKac + IUA Ignacio Urquiza Arquitectos
WORKac + IUA Ignacio Urquiza Arquitectos, Pilares Lomas de Becerra community centre, Mexico City, 2022
All project materials © WORKac + IUA Ignacio Urquiza Arquitectos
WORKac + IUA Ignacio Urquiza Arquitectos, Pilares Lomas de Becerra community centre, Mexico City, 2022
All project materials © WORKac + IUA Ignacio Urquiza Arquitectos
WORKac + IUA Ignacio Urquiza Arquitectos, Pilares Lomas de Becerra community centre, Mexico City, 2022
All project materials © WORKac + IUA Ignacio Urquiza Arquitectos
WORKac + IUA Ignacio Urquiza Arquitectos, Pilares Lomas de Becerra community centre, Mexico City, 2022
All project materials © WORKac + IUA Ignacio Urquiza Arquitectos
WORKac + IUA Ignacio Urquiza Arquitectos, Pilares Lomas de Becerra community centre, Mexico City, 2022
All project materials © WORKac + IUA Ignacio Urquiza Arquitectos
WORKac + IUA Ignacio Urquiza Arquitectos, Pilares Lomas de Becerra community centre, Mexico City, 2022
All project materials © WORKac + IUA Ignacio Urquiza Arquitectos
WORKac + IUA Ignacio Urquiza Arquitectos, Pilares Lomas de Becerra community centre, Mexico City, 2022
All project materials © WORKac + IUA Ignacio Urquiza Arquitectos
WORKac + IUA Ignacio Urquiza Arquitectos, Pilares Lomas de Becerra community centre, Mexico City, 2022
All project materials © WORKac + IUA Ignacio Urquiza Arquitectos
WORKac + IUA Ignacio Urquiza Arquitectos, Pilares Lomas de Becerra community centre, Mexico City, 2022
All project materials © WORKac + IUA Ignacio Urquiza Arquitectos
WORKac + IUA Ignacio Urquiza Arquitectos, Pilares Lomas de Becerra community centre, Mexico City, 2022
All project materials © WORKac + IUA Ignacio Urquiza Arquitectos
WORKac + IUA Ignacio Urquiza Arquitectos, Pilares Lomas de Becerra community centre, Mexico City, 2022
All project materials © WORKac + IUA Ignacio Urquiza Arquitectos
WORKac + IUA Ignacio Urquiza Arquitectos, Pilares Lomas de Becerra community centre, Mexico City, 2022
All project materials © WORKac + IUA Ignacio Urquiza Arquitectos
WORKac + IUA Ignacio Urquiza Arquitectos, Pilares Lomas de Becerra community centre, Mexico City, 2022
All project materials © WORKac + IUA Ignacio Urquiza Arquitectos
WORKac + IUA Ignacio Urquiza Arquitectos, Pilares Lomas de Becerra community centre, Mexico City, 2022
All project materials © WORKac + IUA Ignacio Urquiza Arquitectos
WORKac + IUA Ignacio Urquiza Arquitectos, Pilares Lomas de Becerra community centre, Mexico City, 2022
All project materials © WORKac + IUA Ignacio Urquiza Arquitectos
WORKac + IUA Ignacio Urquiza Arquitectos, Pilares Lomas de Becerra community centre, Mexico City, 2022
All project materials © WORKac + IUA Ignacio Urquiza Arquitectos
WORKac + IUA Ignacio Urquiza Arquitectos, Pilares Lomas de Becerra community centre, Mexico City, 2022
All project materials © WORKac + IUA Ignacio Urquiza Arquitectos
WORKac + IUA Ignacio Urquiza Arquitectos, Pilares Lomas de Becerra community centre, Mexico City, 2022
All project materials © WORKac + IUA Ignacio Urquiza Arquitectos
WORKac + IUA Ignacio Urquiza Arquitectos, Pilares Lomas de Becerra community centre, Mexico City, 2022
All project materials © WORKac + IUA Ignacio Urquiza Arquitectos
WORKac + IUA Ignacio Urquiza Arquitectos, Pilares Lomas de Becerra community centre, Mexico City, 2022
All project materials © WORKac + IUA Ignacio Urquiza Arquitectos
WORKac + IUA Ignacio Urquiza Arquitectos, Pilares Lomas de Becerra community centre, Mexico City, 2022
All project materials © WORKac + IUA Ignacio Urquiza Arquitectos
WORKac + IUA Ignacio Urquiza Arquitectos, Pilares Lomas de Becerra community centre, Mexico City, 2022
All project materials © WORKac + IUA Ignacio Urquiza Arquitectos
WORKac + IUA Ignacio Urquiza Arquitectos, Pilares Lomas de Becerra community centre, Mexico City, 2022
All project materials © WORKac + IUA Ignacio Urquiza Arquitectos
What are the programmes and architectural solutions that deal with this problem, and how have you solved or proposed an alternative approach?
Amale Andraos: When we were invited to participate – together with Mexico City-based Ignacio Urquiza Arquitectos (IUA) – it was March 2020 and the city was entirely under lockdown. As a result, many of the programmatic foundations for the project were the result of community engagement that had been done on the ground by local social organisations prior to the pandemic. Our specific site called for space for a cyberschool and robotics classes, as well as the capacity for jewellery-making and screen-printing classes and workshops. With this given programme in hand, and an almost clandestine visit that IUA’s team had to make to the site given the city’s curfew, we dove into extensive research into the existing Pilares, harnessing whatever we could find online in terms of images, event photography and other research to better understand each centre’s uses.
Through this process, it became evident to us that what the Pilares most needed was, firstly, an intimate connection between inside and outside at street level, with access to the outdoors and whatever public space could be carved out of each side; and secondly, complete flexibility to allow for organic adaptation of the spaces and encourage a variety of uses. It appeared central to us that there be the built-in capacity for visitors to completely appropriate and transform these spaces according to their needs. These findings became the foundation of our approach in which we designed the building to preserve the existing trees on site, limiting its footprint in order to maximise outdoor space and connectivity between inside and outside. This yielded a slightly taller structure where only the basic core and its infrastructure were fixed, with a focus on making all spaces accessible, as well as serviced in terms of bathrooms and kitchenettes. The rest of the spaces were conceived as continuous and flexible.
View gallery
WORKac + IUA Ignacio Urquiza Arquitectos, Pilares Azcapotzalco community center, Mexico City, 2022
All project materials © WORKac + IUA Ignacio Urquiza Arquitectos
WORKac + IUA Ignacio Urquiza Arquitectos, Pilares Azcapotzalco community center, Mexico City, 2022
All project materials © WORKac + IUA Ignacio Urquiza Arquitectos
WORKac + IUA Ignacio Urquiza Arquitectos, Pilares Azcapotzalco community center, Mexico City, 2022
All project materials © WORKac + IUA Ignacio Urquiza Arquitectos
WORKac + IUA Ignacio Urquiza Arquitectos, Pilares Azcapotzalco community center, Mexico City, 2022
All project materials © WORKac + IUA Ignacio Urquiza Arquitectos
WORKac + IUA Ignacio Urquiza Arquitectos, Pilares Azcapotzalco community center, Mexico City, 2022
All project materials © WORKac + IUA Ignacio Urquiza Arquitectos
WORKac + IUA Ignacio Urquiza Arquitectos, Pilares Azcapotzalco community center, Mexico City, 2022
All project materials © WORKac + IUA Ignacio Urquiza Arquitectos
WORKac + IUA Ignacio Urquiza Arquitectos, Pilares Azcapotzalco community center, Mexico City, 2022
All project materials © WORKac + IUA Ignacio Urquiza Arquitectos
WORKac + IUA Ignacio Urquiza Arquitectos, Pilares Azcapotzalco community center, Mexico City, 2022
All project materials © WORKac + IUA Ignacio Urquiza Arquitectos
WORKac + IUA Ignacio Urquiza Arquitectos, Pilares Azcapotzalco community center, Mexico City, 2022
All project materials © WORKac + IUA Ignacio Urquiza Arquitectos
WORKac + IUA Ignacio Urquiza Arquitectos, Pilares Azcapotzalco community center, Mexico City, 2022
All project materials © WORKac + IUA Ignacio Urquiza Arquitectos
WORKac + IUA Ignacio Urquiza Arquitectos, Pilares Azcapotzalco community center, Mexico City, 2022
All project materials © WORKac + IUA Ignacio Urquiza Arquitectos
WORKac + IUA Ignacio Urquiza Arquitectos, Pilares Azcapotzalco community center, Mexico City, 2022
All project materials © WORKac + IUA Ignacio Urquiza Arquitectos
WORKac + IUA Ignacio Urquiza Arquitectos, Pilares Azcapotzalco community center, Mexico City, 2022
All project materials © WORKac + IUA Ignacio Urquiza Arquitectos
WORKac + IUA Ignacio Urquiza Arquitectos, Pilares Azcapotzalco community center, Mexico City, 2022
All project materials © WORKac + IUA Ignacio Urquiza Arquitectos
WORKac + IUA Ignacio Urquiza Arquitectos, Pilares Azcapotzalco community center, Mexico City, 2022
All project materials © WORKac + IUA Ignacio Urquiza Arquitectos
WORKac + IUA Ignacio Urquiza Arquitectos, Pilares Azcapotzalco community center, Mexico City, 2022
All project materials © WORKac + IUA Ignacio Urquiza Arquitectos
WORKac + IUA Ignacio Urquiza Arquitectos, Pilares Azcapotzalco community center, Mexico City, 2022
All project materials © WORKac + IUA Ignacio Urquiza Arquitectos
WORKac + IUA Ignacio Urquiza Arquitectos, Pilares Azcapotzalco community center, Mexico City, 2022
All project materials © WORKac + IUA Ignacio Urquiza Arquitectos
WORKac + IUA Ignacio Urquiza Arquitectos, Pilares Azcapotzalco community center, Mexico City, 2022
All project materials © WORKac + IUA Ignacio Urquiza Arquitectos
WORKac + IUA Ignacio Urquiza Arquitectos, Pilares Azcapotzalco community center, Mexico City, 2022
All project materials © WORKac + IUA Ignacio Urquiza Arquitectos
WORKac + IUA Ignacio Urquiza Arquitectos, Pilares Azcapotzalco community center, Mexico City, 2022
All project materials © WORKac + IUA Ignacio Urquiza Arquitectos
WORKac + IUA Ignacio Urquiza Arquitectos, Pilares Azcapotzalco community center, Mexico City, 2022
All project materials © WORKac + IUA Ignacio Urquiza Arquitectos
WORKac + IUA Ignacio Urquiza Arquitectos, Pilares Azcapotzalco community center, Mexico City, 2022
All project materials © WORKac + IUA Ignacio Urquiza Arquitectos
WORKac + IUA Ignacio Urquiza Arquitectos, Pilares Azcapotzalco community center, Mexico City, 2022
All project materials © WORKac + IUA Ignacio Urquiza Arquitectos
WORKac + IUA Ignacio Urquiza Arquitectos, Pilares Azcapotzalco community center, Mexico City, 2022
All project materials © WORKac + IUA Ignacio Urquiza Arquitectos
WORKac + IUA Ignacio Urquiza Arquitectos, Pilares Azcapotzalco community center, Mexico City, 2022
All project materials © WORKac + IUA Ignacio Urquiza Arquitectos
WORKac + IUA Ignacio Urquiza Arquitectos, Pilares Azcapotzalco community center, Mexico City, 2022
All project materials © WORKac + IUA Ignacio Urquiza Arquitectos
WORKac + IUA Ignacio Urquiza Arquitectos, Pilares Azcapotzalco community center, Mexico City, 2022
All project materials © WORKac + IUA Ignacio Urquiza Arquitectos
WORKac + IUA Ignacio Urquiza Arquitectos, Pilares Azcapotzalco community center, Mexico City, 2022
All project materials © WORKac + IUA Ignacio Urquiza Arquitectos
WORKac + IUA Ignacio Urquiza Arquitectos, Pilares Azcapotzalco community center, Mexico City, 2022
All project materials © WORKac + IUA Ignacio Urquiza Arquitectos
How will a new or existing community be able to integrate into this facility, and are there other cultural inclusivity or inter-generational aspects to the programme?
Dan Wood: What has been most interesting and, in some ways, rewarding to us, is to see the project appropriated in completely different ways than we had anticipated. While some of the spaces are used as intended in an almost studio-like environment of desks and computers, others have been adapted to simple gatherings serving everything from political mobilisation to fun-filled game nights. Meanwhile, other spaces have been left more open, enabling physical activities and classes: martial arts, dance and hip-hop classes, and yoga – where we can clearly see intergenerational participation and the fulfilled desire for a space in which to move, learn and live.
