Wadden Sea Centre by Dorte Mandrup
View gallery
Z:\01. SAGSARKIV\521 VADEHAVSCENTRET\18 PUBLICERING\TEGNINGER under udarbejdelse\Situationsplan_Johan 1_1000 (1)
Z:\01. SAGSARKIV\521 VADEHAVSCENTRET\18 PUBLICERING\TEGNINGER under udarbejdelse\Hovedtegninger_Johan STUEPLAN 1-400 (1)
Thick thatch is carved to ceate the striking roof of Dorte Mandrup’s visitor centre for the Wadden Sea mashland in Ribe, Denmark – a UNESCO protected habitat for migrating birds. The locally harvested water reeds used for the roof offer a direct connection to the site, which completed in 2017 and is approaching its first year in use.
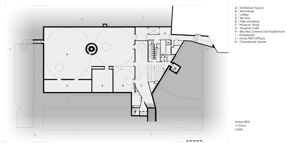
Amos Rex Museum by JKMM
View gallery
Five tentacle-like protrusions stretch in opposing directions in a square to bring light down into the Amos Rex art museum extension below. The tiled manmade hills, or canons de lumière, double as a resting spot for visitors to the gallery in Helsinki, Finland.
National Kaohsiung Center for the Arts by Mecanoo
View gallery
Kaohsiung. Mecanoo’s huge performing arts centre is inspired by banyan trees
With its 140,000 sqm, the building interprets the clustering trees, linking five performance spaces under one roof.
Macanoo architecten, Weiwuying, Taiwan’s National Kaohsiung Center for the Arts, Kaohsiung, Taiwan, 2018. Photo Iwan Baan
Kaohsiung. Mecanoo’s huge performing arts centre is inspired by banyan trees
With its 140,000 sqm, the building interprets the clustering trees, linking five performance spaces under one roof.
Macanoo architecten, Weiwuying, Taiwan’s National Kaohsiung Center for the Arts, Kaohsiung, Taiwan, 2018. Photo Iwan Baan
Kaohsiung. Mecanoo’s huge performing arts centre is inspired by banyan trees
With its 140,000 sqm, the building interprets the clustering trees, linking five performance spaces under one roof.
Macanoo architecten, Weiwuying, Taiwan’s National Kaohsiung Center for the Arts, Kaohsiung, Taiwan, 2018. Photo Iwan Baan
Kaohsiung. Mecanoo’s huge performing arts centre is inspired by banyan trees
With its 140,000 sqm, the building interprets the clustering trees, linking five performance spaces under one roof.
Macanoo architecten, Weiwuying, Taiwan’s National Kaohsiung Center for the Arts, Kaohsiung, Taiwan, 2018. Photo Iwan Baan
Kaohsiung. Mecanoo’s huge performing arts centre is inspired by banyan trees
With its 140,000 sqm, the building interprets the clustering trees, linking five performance spaces under one roof.
Macanoo architecten, Weiwuying, Taiwan’s National Kaohsiung Center for the Arts, Kaohsiung, Taiwan, 2018. Photo Iwan Baan
Kaohsiung. Mecanoo’s huge performing arts centre is inspired by banyan trees
With its 140,000 sqm, the building interprets the clustering trees, linking five performance spaces under one roof.
Macanoo architecten, Weiwuying, Taiwan’s National Kaohsiung Center for the Arts, Kaohsiung, Taiwan, 2018. Photo Iwan Baan
Kaohsiung. Mecanoo’s huge performing arts centre is inspired by banyan trees
With its 140,000 sqm, the building interprets the clustering trees, linking five performance spaces under one roof.
Macanoo architecten, Weiwuying, Taiwan’s National Kaohsiung Center for the Arts, Kaohsiung, Taiwan, 2018. Photo Iwan Baan
Kaohsiung. Mecanoo’s huge performing arts centre is inspired by banyan trees
With its 140,000 sqm, the building interprets the clustering trees, linking five performance spaces under one roof.
Macanoo architecten, Weiwuying, Taiwan’s National Kaohsiung Center for the Arts, Kaohsiung, Taiwan, 2018. Photo Iwan Baan
Kaohsiung. Mecanoo’s huge performing arts centre is inspired by banyan trees
With its 140,000 sqm, the building interprets the clustering trees, linking five performance spaces under one roof.
Macanoo architecten, Weiwuying, Taiwan’s National Kaohsiung Center for the Arts, Kaohsiung, Taiwan, 2018. Photo Iwan Baan
Kaohsiung. Mecanoo’s huge performing arts centre is inspired by banyan trees
With its 140,000 sqm, the building interprets the clustering trees, linking five performance spaces under one roof.
Macanoo architecten, Weiwuying, Taiwan’s National Kaohsiung Center for the Arts, Kaohsiung, Taiwan, 2018. Photo Iwan Baan
Kaohsiung. Mecanoo’s huge performing arts centre is inspired by banyan trees
With its 140,000 sqm, the building interprets the clustering trees, linking five performance spaces under one roof.
Macanoo architecten, Weiwuying, Taiwan’s National Kaohsiung Center for the Arts, Kaohsiung, Taiwan, 2018. Photo Iwan Baan
Kaohsiung. Mecanoo’s huge performing arts centre is inspired by banyan trees
With its 140,000 sqm, the building interprets the clustering trees, linking five performance spaces under one roof.
Macanoo architecten, Weiwuying, Taiwan’s National Kaohsiung Center for the Arts, Kaohsiung, Taiwan, 2018. Photo Iwan Baan
Kaohsiung. Mecanoo’s huge performing arts centre is inspired by banyan trees
With its 140,000 sqm, the building interprets the clustering trees, linking five performance spaces under one roof.
Macanoo architecten, Weiwuying, Taiwan’s National Kaohsiung Center for the Arts, Kaohsiung, Taiwan, 2018. Photo Iwan Baan
Kaohsiung. Mecanoo’s huge performing arts centre is inspired by banyan trees
With its 140,000 sqm, the building interprets the clustering trees, linking five performance spaces under one roof.
Macanoo architecten, Weiwuying, Taiwan’s National Kaohsiung Center for the Arts, Kaohsiung, Taiwan, 2018. Photo Iwan Baan
Kaohsiung. Mecanoo’s huge performing arts centre is inspired by banyan trees
With its 140,000 sqm, the building interprets the clustering trees, linking five performance spaces under one roof.
Macanoo architecten, Weiwuying, Taiwan’s National Kaohsiung Center for the Arts, Kaohsiung, Taiwan, 2018. Photo Iwan Baan
Kaohsiung. Mecanoo’s huge performing arts centre is inspired by banyan trees
With its 140,000 sqm, the building interprets the clustering trees, linking five performance spaces under one roof.
Macanoo architecten, Weiwuying, Taiwan’s National Kaohsiung Center for the Arts, Kaohsiung, Taiwan, 2018. Photo Iwan Baan
Kaohsiung. Mecanoo’s huge performing arts centre is inspired by banyan trees
With its 140,000 sqm, the building interprets the clustering trees, linking five performance spaces under one roof.
Macanoo architecten, Weiwuying, Taiwan’s National Kaohsiung Center for the Arts, Kaohsiung, Taiwan, 2018. Photo Iwan Baan
Kaohsiung. Mecanoo’s huge performing arts centre is inspired by banyan trees
With its 140,000 sqm, the building interprets the clustering trees, linking five performance spaces under one roof.
Macanoo architecten, Weiwuying, Taiwan’s National Kaohsiung Center for the Arts, Kaohsiung, Taiwan, 2018. Photo Iwan Baan
Kaohsiung. Mecanoo’s huge performing arts centre is inspired by banyan trees
With its 140,000 sqm, the building interprets the clustering trees, linking five performance spaces under one roof.
Macanoo architecten, Weiwuying, Taiwan’s National Kaohsiung Center for the Arts, plan
Kaohsiung. Mecanoo’s huge performing arts centre is inspired by banyan trees
With its 140,000 sqm, the building interprets the clustering trees, linking five performance spaces under one roof.
Mecanoo architecten, Weiwuying, Taiwan’s National Kaohsiung Center for the Arts, floor plan
Kaohsiung. Mecanoo’s huge performing arts centre is inspired by banyan trees
With its 140,000 sqm, the building interprets the clustering trees, linking five performance spaces under one roof.
Mecanoo architecten, Weiwuying, Taiwan’s National Kaohsiung Center for the Arts, second floor plan
Kaohsiung. Mecanoo’s huge performing arts centre is inspired by banyan trees
With its 140,000 sqm, the building interprets the clustering trees, linking five performance spaces under one roof.
Mecanoo architecten, Weiwuying, Taiwan’s National Kaohsiung Center for the Arts, section of the Banyan Plaza
Kaohsiung. Mecanoo’s huge performing arts centre is inspired by banyan trees
With its 140,000 sqm, the building interprets the clustering trees, linking five performance spaces under one roof.
Mecanoo architecten, Weiwuying, Taiwan’s National Kaohsiung Center for the Arts, section of the concert hall and recital hall
Kaohsiung. Mecanoo’s huge performing arts centre is inspired by banyan trees
With its 140,000 sqm, the building interprets the clustering trees, linking five performance spaces under one roof.
Mecanoo architecten, Weiwuying, Taiwan’s National Kaohsiung Center for the Arts, section of the Lyric Theatre
Kaohsiung. Mecanoo’s huge performing arts centre is inspired by banyan trees
With its 140,000 sqm, the building interprets the clustering trees, linking five performance spaces under one roof.
Mecanoo architecten, Weiwuying, Taiwan’s National Kaohsiung Center for the Arts, section of the Playhouse
Kaohsiung. Mecanoo’s huge performing arts centre is inspired by banyan trees
With its 140,000 sqm, the building interprets the clustering trees, linking five performance spaces under one roof.
Mecanoo architecten, Weiwuying, Taiwan’s National Kaohsiung Center for the Arts, diagram
Kaohsiung. Mecanoo’s huge performing arts centre is inspired by banyan trees
With its 140,000 sqm, the building interprets the clustering trees, linking five performance spaces under one roof.
Macanoo architecten, Weiwuying, Taiwan’s National Kaohsiung Center for the Arts, sketch
Kaohsiung. Mecanoo’s huge performing arts centre is inspired by banyan trees
With its 140,000 sqm, the building interprets the clustering trees, linking five performance spaces under one roof.
Macanoo architecten, Weiwuying, Taiwan’s National Kaohsiung Center for the Arts, sketch
Kaohsiung. Mecanoo’s huge performing arts centre is inspired by banyan trees
With its 140,000 sqm, the building interprets the clustering trees, linking five performance spaces under one roof.
Macanoo architecten, Weiwuying, Taiwan’s National Kaohsiung Center for the Arts, sketch
Kaohsiung. Mecanoo’s huge performing arts centre is inspired by banyan trees
With its 140,000 sqm, the building interprets the clustering trees, linking five performance spaces under one roof.
Macanoo architecten, Weiwuying, Taiwan’s National Kaohsiung Center for the Arts, Kaohsiung, Taiwan, 2018. Photo Iwan Baan
Kaohsiung. Mecanoo’s huge performing arts centre is inspired by banyan trees
With its 140,000 sqm, the building interprets the clustering trees, linking five performance spaces under one roof.
Macanoo architecten, Weiwuying, Taiwan’s National Kaohsiung Center for the Arts, Kaohsiung, Taiwan, 2018. Photo Iwan Baan
Kaohsiung. Mecanoo’s huge performing arts centre is inspired by banyan trees
With its 140,000 sqm, the building interprets the clustering trees, linking five performance spaces under one roof.
Macanoo architecten, Weiwuying, Taiwan’s National Kaohsiung Center for the Arts, Kaohsiung, Taiwan, 2018. Photo Iwan Baan
Kaohsiung. Mecanoo’s huge performing arts centre is inspired by banyan trees
With its 140,000 sqm, the building interprets the clustering trees, linking five performance spaces under one roof.
Macanoo architecten, Weiwuying, Taiwan’s National Kaohsiung Center for the Arts, Kaohsiung, Taiwan, 2018. Photo Iwan Baan
Kaohsiung. Mecanoo’s huge performing arts centre is inspired by banyan trees
With its 140,000 sqm, the building interprets the clustering trees, linking five performance spaces under one roof.
Macanoo architecten, Weiwuying, Taiwan’s National Kaohsiung Center for the Arts, Kaohsiung, Taiwan, 2018. Photo Iwan Baan
Kaohsiung. Mecanoo’s huge performing arts centre is inspired by banyan trees
With its 140,000 sqm, the building interprets the clustering trees, linking five performance spaces under one roof.
Macanoo architecten, Weiwuying, Taiwan’s National Kaohsiung Center for the Arts, Kaohsiung, Taiwan, 2018. Photo Iwan Baan
Kaohsiung. Mecanoo’s huge performing arts centre is inspired by banyan trees
With its 140,000 sqm, the building interprets the clustering trees, linking five performance spaces under one roof.
Macanoo architecten, Weiwuying, Taiwan’s National Kaohsiung Center for the Arts, Kaohsiung, Taiwan, 2018. Photo Iwan Baan
Kaohsiung. Mecanoo’s huge performing arts centre is inspired by banyan trees
With its 140,000 sqm, the building interprets the clustering trees, linking five performance spaces under one roof.
Macanoo architecten, Weiwuying, Taiwan’s National Kaohsiung Center for the Arts, Kaohsiung, Taiwan, 2018. Photo Iwan Baan
Kaohsiung. Mecanoo’s huge performing arts centre is inspired by banyan trees
With its 140,000 sqm, the building interprets the clustering trees, linking five performance spaces under one roof.
Macanoo architecten, Weiwuying, Taiwan’s National Kaohsiung Center for the Arts, Kaohsiung, Taiwan, 2018. Photo Iwan Baan
Kaohsiung. Mecanoo’s huge performing arts centre is inspired by banyan trees
With its 140,000 sqm, the building interprets the clustering trees, linking five performance spaces under one roof.
Macanoo architecten, Weiwuying, Taiwan’s National Kaohsiung Center for the Arts, Kaohsiung, Taiwan, 2018. Photo Iwan Baan
Kaohsiung. Mecanoo’s huge performing arts centre is inspired by banyan trees
With its 140,000 sqm, the building interprets the clustering trees, linking five performance spaces under one roof.
Macanoo architecten, Weiwuying, Taiwan’s National Kaohsiung Center for the Arts, Kaohsiung, Taiwan, 2018. Photo Iwan Baan
Kaohsiung. Mecanoo’s huge performing arts centre is inspired by banyan trees
With its 140,000 sqm, the building interprets the clustering trees, linking five performance spaces under one roof.
Macanoo architecten, Weiwuying, Taiwan’s National Kaohsiung Center for the Arts, Kaohsiung, Taiwan, 2018. Photo Iwan Baan
Kaohsiung. Mecanoo’s huge performing arts centre is inspired by banyan trees
With its 140,000 sqm, the building interprets the clustering trees, linking five performance spaces under one roof.
Macanoo architecten, Weiwuying, Taiwan’s National Kaohsiung Center for the Arts, Kaohsiung, Taiwan, 2018. Photo Iwan Baan
Kaohsiung. Mecanoo’s huge performing arts centre is inspired by banyan trees
With its 140,000 sqm, the building interprets the clustering trees, linking five performance spaces under one roof.
Macanoo architecten, Weiwuying, Taiwan’s National Kaohsiung Center for the Arts, Kaohsiung, Taiwan, 2018. Photo Iwan Baan
Kaohsiung. Mecanoo’s huge performing arts centre is inspired by banyan trees
With its 140,000 sqm, the building interprets the clustering trees, linking five performance spaces under one roof.
Macanoo architecten, Weiwuying, Taiwan’s National Kaohsiung Center for the Arts, Kaohsiung, Taiwan, 2018. Photo Iwan Baan
Kaohsiung. Mecanoo’s huge performing arts centre is inspired by banyan trees
With its 140,000 sqm, the building interprets the clustering trees, linking five performance spaces under one roof.
Macanoo architecten, Weiwuying, Taiwan’s National Kaohsiung Center for the Arts, Kaohsiung, Taiwan, 2018. Photo Iwan Baan
Kaohsiung. Mecanoo’s huge performing arts centre is inspired by banyan trees
With its 140,000 sqm, the building interprets the clustering trees, linking five performance spaces under one roof.
Macanoo architecten, Weiwuying, Taiwan’s National Kaohsiung Center for the Arts, Kaohsiung, Taiwan, 2018. Photo Iwan Baan
Kaohsiung. Mecanoo’s huge performing arts centre is inspired by banyan trees
With its 140,000 sqm, the building interprets the clustering trees, linking five performance spaces under one roof.
Macanoo architecten, Weiwuying, Taiwan’s National Kaohsiung Center for the Arts, Kaohsiung, Taiwan, 2018. Photo Iwan Baan
Kaohsiung. Mecanoo’s huge performing arts centre is inspired by banyan trees
With its 140,000 sqm, the building interprets the clustering trees, linking five performance spaces under one roof.
Macanoo architecten, Weiwuying, Taiwan’s National Kaohsiung Center for the Arts, plan
Kaohsiung. Mecanoo’s huge performing arts centre is inspired by banyan trees
With its 140,000 sqm, the building interprets the clustering trees, linking five performance spaces under one roof.
Mecanoo architecten, Weiwuying, Taiwan’s National Kaohsiung Center for the Arts, floor plan
Kaohsiung. Mecanoo’s huge performing arts centre is inspired by banyan trees
With its 140,000 sqm, the building interprets the clustering trees, linking five performance spaces under one roof.
Mecanoo architecten, Weiwuying, Taiwan’s National Kaohsiung Center for the Arts, second floor plan
Kaohsiung. Mecanoo’s huge performing arts centre is inspired by banyan trees
With its 140,000 sqm, the building interprets the clustering trees, linking five performance spaces under one roof.
Mecanoo architecten, Weiwuying, Taiwan’s National Kaohsiung Center for the Arts, section of the Banyan Plaza
Kaohsiung. Mecanoo’s huge performing arts centre is inspired by banyan trees
With its 140,000 sqm, the building interprets the clustering trees, linking five performance spaces under one roof.
Mecanoo architecten, Weiwuying, Taiwan’s National Kaohsiung Center for the Arts, section of the concert hall and recital hall
Kaohsiung. Mecanoo’s huge performing arts centre is inspired by banyan trees
With its 140,000 sqm, the building interprets the clustering trees, linking five performance spaces under one roof.
Mecanoo architecten, Weiwuying, Taiwan’s National Kaohsiung Center for the Arts, section of the Lyric Theatre
Kaohsiung. Mecanoo’s huge performing arts centre is inspired by banyan trees
With its 140,000 sqm, the building interprets the clustering trees, linking five performance spaces under one roof.
Mecanoo architecten, Weiwuying, Taiwan’s National Kaohsiung Center for the Arts, section of the Playhouse
Kaohsiung. Mecanoo’s huge performing arts centre is inspired by banyan trees
With its 140,000 sqm, the building interprets the clustering trees, linking five performance spaces under one roof.
Mecanoo architecten, Weiwuying, Taiwan’s National Kaohsiung Center for the Arts, diagram
Kaohsiung. Mecanoo’s huge performing arts centre is inspired by banyan trees
With its 140,000 sqm, the building interprets the clustering trees, linking five performance spaces under one roof.
Macanoo architecten, Weiwuying, Taiwan’s National Kaohsiung Center for the Arts, sketch
Kaohsiung. Mecanoo’s huge performing arts centre is inspired by banyan trees
With its 140,000 sqm, the building interprets the clustering trees, linking five performance spaces under one roof.
Macanoo architecten, Weiwuying, Taiwan’s National Kaohsiung Center for the Arts, sketch
Kaohsiung. Mecanoo’s huge performing arts centre is inspired by banyan trees
With its 140,000 sqm, the building interprets the clustering trees, linking five performance spaces under one roof.
Macanoo architecten, Weiwuying, Taiwan’s National Kaohsiung Center for the Arts, sketch
An amphitheatre is sunken into the roof of Mecanoo’s cultural centre in Kaohsiung, Taiwan, which dips down to meet a vast subtropical park. The centre brings together Taiwan's national theatre, concert tall under one great undulating roof.
Saya Park by Álvaro Siza and Carlos Castanheira
View gallery
A trio of concrete buildings – an art centre, chapel and observation tower – are embedded among the dense vegetation of Saya Park in South Korea. The branching roof form of the art centre ramps up from a hillside path to offer a viewing spot overlooking forested landscape.
Torre Fondazione Prada by OMA
View gallery
Rising from a 20th century distillery in a largely undeveloped area of Milan, OMA’s Torre building cuts an unusual profile among the fromer industrial buildings surrounding the Fondazione Prada. A glass elevator running the height of the tower ushers guests to a roof bar offering views of railway tracks and the city beyond.
