Overlooking the Beitou hot spring area at the foot of Taipei’s Dantun mountains, Din-a-ka has been conceived for a retired couple. Designed by Wei Yi International Design Associates, the interiors are defined by a collection of furniture that bonds together a wide range of carefully crafted materials.
View gallery
Din-a-ka, a nostalgic taiwanese residence punctuated with bold volumes
Home of a senior couple, the 160 sqm apartment overlooks the Beitou hot spring area and features a series of furnishings, architecturally defining the interiors.
Wei Yi International Design Associates, Din-a-ka, Taipei, Taiwan, 2018
Din-a-ka, a nostalgic taiwanese residence punctuated with bold volumes
Home of a senior couple, the 160 sqm apartment overlooks the Beitou hot spring area and features a series of furnishings, architecturally defining the interiors.
Wei Yi International Design Associates, Din-a-ka, Taipei, Taiwan, 2018
Din-a-ka, a nostalgic taiwanese residence punctuated with bold volumes
Home of a senior couple, the 160 sqm apartment overlooks the Beitou hot spring area and features a series of furnishings, architecturally defining the interiors.
Wei Yi International Design Associates, Din-a-ka, Taipei, Taiwan, 2018
Din-a-ka, a nostalgic taiwanese residence punctuated with bold volumes
Home of a senior couple, the 160 sqm apartment overlooks the Beitou hot spring area and features a series of furnishings, architecturally defining the interiors.
Wei Yi International Design Associates, Din-a-ka, Taipei, Taiwan, 2018
Din-a-ka, a nostalgic taiwanese residence punctuated with bold volumes
Home of a senior couple, the 160 sqm apartment overlooks the Beitou hot spring area and features a series of furnishings, architecturally defining the interiors.
Wei Yi International Design Associates, Din-a-ka, Taipei, Taiwan, 2018
Din-a-ka, a nostalgic taiwanese residence punctuated with bold volumes
Home of a senior couple, the 160 sqm apartment overlooks the Beitou hot spring area and features a series of furnishings, architecturally defining the interiors.
Wei Yi International Design Associates, Din-a-ka, Taipei, Taiwan, 2018
Din-a-ka, a nostalgic taiwanese residence punctuated with bold volumes
Home of a senior couple, the 160 sqm apartment overlooks the Beitou hot spring area and features a series of furnishings, architecturally defining the interiors.
Wei Yi International Design Associates, Din-a-ka, Taipei, Taiwan, 2018
Din-a-ka, a nostalgic taiwanese residence punctuated with bold volumes
Home of a senior couple, the 160 sqm apartment overlooks the Beitou hot spring area and features a series of furnishings, architecturally defining the interiors.
Wei Yi International Design Associates, Din-a-ka, Taipei, Taiwan, 2018
Din-a-ka, a nostalgic taiwanese residence punctuated with bold volumes
Home of a senior couple, the 160 sqm apartment overlooks the Beitou hot spring area and features a series of furnishings, architecturally defining the interiors.
Wei Yi International Design Associates, Din-a-ka, Taipei, Taiwan, 2018
Din-a-ka, a nostalgic taiwanese residence punctuated with bold volumes
Home of a senior couple, the 160 sqm apartment overlooks the Beitou hot spring area and features a series of furnishings, architecturally defining the interiors.
Wei Yi International Design Associates, Din-a-ka, Taipei, Taiwan, 2018
Din-a-ka, a nostalgic taiwanese residence punctuated with bold volumes
Home of a senior couple, the 160 sqm apartment overlooks the Beitou hot spring area and features a series of furnishings, architecturally defining the interiors.
Wei Yi International Design Associates, Din-a-ka, Taipei, Taiwan, 2018
Din-a-ka, a nostalgic taiwanese residence punctuated with bold volumes
Home of a senior couple, the 160 sqm apartment overlooks the Beitou hot spring area and features a series of furnishings, architecturally defining the interiors.
Wei Yi International Design Associates, Din-a-ka, Taipei, Taiwan, 2018
Din-a-ka, a nostalgic taiwanese residence punctuated with bold volumes
Home of a senior couple, the 160 sqm apartment overlooks the Beitou hot spring area and features a series of furnishings, architecturally defining the interiors.
Wei Yi International Design Associates, Din-a-ka, Taipei, Taiwan, 2018
Din-a-ka, a nostalgic taiwanese residence punctuated with bold volumes
Home of a senior couple, the 160 sqm apartment overlooks the Beitou hot spring area and features a series of furnishings, architecturally defining the interiors.
Wei Yi International Design Associates, Din-a-ka, Taipei, Taiwan, 2018
Din-a-ka, a nostalgic taiwanese residence punctuated with bold volumes
Home of a senior couple, the 160 sqm apartment overlooks the Beitou hot spring area and features a series of furnishings, architecturally defining the interiors.
Wei Yi International Design Associates, Din-a-ka, Taipei, Taiwan, 2018
Din-a-ka, a nostalgic taiwanese residence punctuated with bold volumes
Home of a senior couple, the 160 sqm apartment overlooks the Beitou hot spring area and features a series of furnishings, architecturally defining the interiors.
Wei Yi International Design Associates, Din-a-ka, Taipei, Taiwan, 2018
Din-a-ka, a nostalgic taiwanese residence punctuated with bold volumes
Home of a senior couple, the 160 sqm apartment overlooks the Beitou hot spring area and features a series of furnishings, architecturally defining the interiors.
Wei Yi International Design Associates, Din-a-ka, Taipei, Taiwan, 2018
Din-a-ka, a nostalgic taiwanese residence punctuated with bold volumes
Home of a senior couple, the 160 sqm apartment overlooks the Beitou hot spring area and features a series of furnishings, architecturally defining the interiors.
Wei Yi International Design Associates, Din-a-ka, Taipei, Taiwan, 2018
Din-a-ka, a nostalgic taiwanese residence punctuated with bold volumes
Home of a senior couple, the 160 sqm apartment overlooks the Beitou hot spring area and features a series of furnishings, architecturally defining the interiors.
Wei Yi International Design Associates, Din-a-ka, Taipei, Taiwan, 2018
Din-a-ka, a nostalgic taiwanese residence punctuated with bold volumes
Home of a senior couple, the 160 sqm apartment overlooks the Beitou hot spring area and features a series of furnishings, architecturally defining the interiors.
Wei Yi International Design Associates, Din-a-ka, Taipei, Taiwan, 2018
Din-a-ka, a nostalgic taiwanese residence punctuated with bold volumes
Home of a senior couple, the 160 sqm apartment overlooks the Beitou hot spring area and features a series of furnishings, architecturally defining the interiors.
Wei Yi International Design Associates, Din-a-ka, Taipei, Taiwan, 2018
Din-a-ka, a nostalgic taiwanese residence punctuated with bold volumes
Home of a senior couple, the 160 sqm apartment overlooks the Beitou hot spring area and features a series of furnishings, architecturally defining the interiors.
Wei Yi International Design Associates, Din-a-ka, Taipei, Taiwan, 2018
Din-a-ka, a nostalgic taiwanese residence punctuated with bold volumes
Home of a senior couple, the 160 sqm apartment overlooks the Beitou hot spring area and features a series of furnishings, architecturally defining the interiors.
Wei Yi International Design Associates, Din-a-ka, Taipei, Taiwan, 2018
Din-a-ka, a nostalgic taiwanese residence punctuated with bold volumes
Home of a senior couple, the 160 sqm apartment overlooks the Beitou hot spring area and features a series of furnishings, architecturally defining the interiors.
Wei Yi International Design Associates, Din-a-ka, Taipei, Taiwan, 2018
Din-a-ka, a nostalgic taiwanese residence punctuated with bold volumes
Home of a senior couple, the 160 sqm apartment overlooks the Beitou hot spring area and features a series of furnishings, architecturally defining the interiors.
Wei Yi International Design Associates, Din-a-ka, Taipei, Taiwan, 2018
Din-a-ka, a nostalgic taiwanese residence punctuated with bold volumes
Home of a senior couple, the 160 sqm apartment overlooks the Beitou hot spring area and features a series of furnishings, architecturally defining the interiors.
Wei Yi International Design Associates, Din-a-ka, Taipei, Taiwan, 2018
Din-a-ka, a nostalgic taiwanese residence punctuated with bold volumes
Home of a senior couple, the 160 sqm apartment overlooks the Beitou hot spring area and features a series of furnishings, architecturally defining the interiors.
Wei Yi International Design Associates, Din-a-ka, Taipei, Taiwan, 2018
Din-a-ka, a nostalgic taiwanese residence punctuated with bold volumes
Home of a senior couple, the 160 sqm apartment overlooks the Beitou hot spring area and features a series of furnishings, architecturally defining the interiors.
Wei Yi International Design Associates, Din-a-ka, Taipei, Taiwan, 2018
Din-a-ka, a nostalgic taiwanese residence punctuated with bold volumes
Home of a senior couple, the 160 sqm apartment overlooks the Beitou hot spring area and features a series of furnishings, architecturally defining the interiors.
Wei Yi International Design Associates, Din-a-ka, Taipei, Taiwan, 2018
Din-a-ka, a nostalgic taiwanese residence punctuated with bold volumes
Home of a senior couple, the 160 sqm apartment overlooks the Beitou hot spring area and features a series of furnishings, architecturally defining the interiors.
Wei Yi International Design Associates, Din-a-ka, Taipei, Taiwan, 2018
Din-a-ka, a nostalgic taiwanese residence punctuated with bold volumes
Home of a senior couple, the 160 sqm apartment overlooks the Beitou hot spring area and features a series of furnishings, architecturally defining the interiors.
Wei Yi International Design Associates, Din-a-ka, Taipei, Taiwan, 2018
Din-a-ka, a nostalgic taiwanese residence punctuated with bold volumes
Home of a senior couple, the 160 sqm apartment overlooks the Beitou hot spring area and features a series of furnishings, architecturally defining the interiors.
Wei Yi International Design Associates, Din-a-ka, Taipei, Taiwan, 2018
Din-a-ka, a nostalgic taiwanese residence punctuated with bold volumes
Home of a senior couple, the 160 sqm apartment overlooks the Beitou hot spring area and features a series of furnishings, architecturally defining the interiors.
Wei Yi International Design Associates, Din-a-ka, Taipei, Taiwan, 2018
Din-a-ka, a nostalgic taiwanese residence punctuated with bold volumes
Home of a senior couple, the 160 sqm apartment overlooks the Beitou hot spring area and features a series of furnishings, architecturally defining the interiors.
Wei Yi International Design Associates, Din-a-ka, Taipei, Taiwan, 2018
Din-a-ka, a nostalgic taiwanese residence punctuated with bold volumes
Home of a senior couple, the 160 sqm apartment overlooks the Beitou hot spring area and features a series of furnishings, architecturally defining the interiors.
Wei Yi International Design Associates, Din-a-ka, Taipei, Taiwan, 2018
Din-a-ka, a nostalgic taiwanese residence punctuated with bold volumes
Home of a senior couple, the 160 sqm apartment overlooks the Beitou hot spring area and features a series of furnishings, architecturally defining the interiors.
Wei Yi International Design Associates, Din-a-ka, Taipei, Taiwan, 2018
Din-a-ka, a nostalgic taiwanese residence punctuated with bold volumes
Home of a senior couple, the 160 sqm apartment overlooks the Beitou hot spring area and features a series of furnishings, architecturally defining the interiors.
Wei Yi International Design Associates, Din-a-ka, Taipei, Taiwan, 2018
Din-a-ka, a nostalgic taiwanese residence punctuated with bold volumes
Home of a senior couple, the 160 sqm apartment overlooks the Beitou hot spring area and features a series of furnishings, architecturally defining the interiors.
Wei Yi International Design Associates, Din-a-ka, Taipei, Taiwan, 2018
Din-a-ka, a nostalgic taiwanese residence punctuated with bold volumes
Home of a senior couple, the 160 sqm apartment overlooks the Beitou hot spring area and features a series of furnishings, architecturally defining the interiors.
Wei Yi International Design Associates, Din-a-ka, Taipei, Taiwan, 2018
Din-a-ka, a nostalgic taiwanese residence punctuated with bold volumes
Home of a senior couple, the 160 sqm apartment overlooks the Beitou hot spring area and features a series of furnishings, architecturally defining the interiors.
Wei Yi International Design Associates, Din-a-ka, Taipei, Taiwan, 2018
Din-a-ka, a nostalgic taiwanese residence punctuated with bold volumes
Home of a senior couple, the 160 sqm apartment overlooks the Beitou hot spring area and features a series of furnishings, architecturally defining the interiors.
Wei Yi International Design Associates, Din-a-ka, Taipei, Taiwan, 2018
Din-a-ka, a nostalgic taiwanese residence punctuated with bold volumes
Home of a senior couple, the 160 sqm apartment overlooks the Beitou hot spring area and features a series of furnishings, architecturally defining the interiors.
Wei Yi International Design Associates, Din-a-ka, Taipei, Taiwan, 2018
Din-a-ka, a nostalgic taiwanese residence punctuated with bold volumes
Home of a senior couple, the 160 sqm apartment overlooks the Beitou hot spring area and features a series of furnishings, architecturally defining the interiors.
Wei Yi International Design Associates, Din-a-ka, Taipei, Taiwan, 2018
Din-a-ka, a nostalgic taiwanese residence punctuated with bold volumes
Home of a senior couple, the 160 sqm apartment overlooks the Beitou hot spring area and features a series of furnishings, architecturally defining the interiors.
Wei Yi International Design Associates, Din-a-ka, Taipei, Taiwan, 2018
Din-a-ka, a nostalgic taiwanese residence punctuated with bold volumes
Home of a senior couple, the 160 sqm apartment overlooks the Beitou hot spring area and features a series of furnishings, architecturally defining the interiors.
Wei Yi International Design Associates, Din-a-ka, Taipei, Taiwan, 2018
Din-a-ka, a nostalgic taiwanese residence punctuated with bold volumes
Home of a senior couple, the 160 sqm apartment overlooks the Beitou hot spring area and features a series of furnishings, architecturally defining the interiors.
Wei Yi International Design Associates, Din-a-ka, Taipei, Taiwan, 2018
Din-a-ka, a nostalgic taiwanese residence punctuated with bold volumes
Home of a senior couple, the 160 sqm apartment overlooks the Beitou hot spring area and features a series of furnishings, architecturally defining the interiors.
Wei Yi International Design Associates, Din-a-ka, Taipei, Taiwan, 2018
Din-a-ka, a nostalgic taiwanese residence punctuated with bold volumes
Home of a senior couple, the 160 sqm apartment overlooks the Beitou hot spring area and features a series of furnishings, architecturally defining the interiors.
Wei Yi International Design Associates, Din-a-ka, Taipei, Taiwan, 2018
Din-a-ka, a nostalgic taiwanese residence punctuated with bold volumes
Home of a senior couple, the 160 sqm apartment overlooks the Beitou hot spring area and features a series of furnishings, architecturally defining the interiors.
Wei Yi International Design Associates, Din-a-ka, Taipei, Taiwan, 2018
Din-a-ka, a nostalgic taiwanese residence punctuated with bold volumes
Home of a senior couple, the 160 sqm apartment overlooks the Beitou hot spring area and features a series of furnishings, architecturally defining the interiors.
Wei Yi International Design Associates, Din-a-ka, Taipei, Taiwan, 2018
Din-a-ka, a nostalgic taiwanese residence punctuated with bold volumes
Home of a senior couple, the 160 sqm apartment overlooks the Beitou hot spring area and features a series of furnishings, architecturally defining the interiors.
Wei Yi International Design Associates, Din-a-ka, Taipei, Taiwan, 2018
Din-a-ka, a nostalgic taiwanese residence punctuated with bold volumes
Home of a senior couple, the 160 sqm apartment overlooks the Beitou hot spring area and features a series of furnishings, architecturally defining the interiors.
Wei Yi International Design Associates, Din-a-ka, Taipei, Taiwan, 2018
The project takes its name from a feature of the traditional agrarian residences of Taiwan. In the country’s history, this architectural element – a covered walkway – has represented the main place where social interactions take place in rural areas.
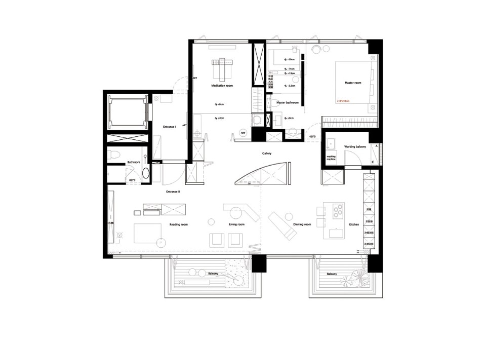
The 160 sqm floorplan of the apartment is divided into a large living area with two balconies opening onto views of the springs; a master bedroom with en suite bathroom, and a meditation room. The latter is the room where the tea ritual takes place, and is characterised by a floor-to-ceiling opening facing towards the foliage of a tree, and floors made of rice-straw tatamis.
More than half of the apartment corresponds to the living room, an open-plan space divided by folding partitions and punctuated by bold volumes, such as the floating steel blue cabinet and the curved element in the hallway. Such prominent interventions provide variations in the circulation and outline the interior spaces.
With a hazy nostalgia underlying the atmosphere of the apartment, Wei Yi conveyed the memories of this area through a wide palette of materials and finishings: native hanoki wood, cement with a matte finish, terrazzo linings and tatami floors, punctually finished with rusted metal and gold foil.
- Project:
- Din-a-ka
- Location:
- Taipei, Taiwan, China
- Program:
- private apartment
- Architect:
- Wei Yi International Design Associates
- Project leader:
- Fang Shin-yuan
- Area:
- 160 sqm
- Completion:
- 2018
