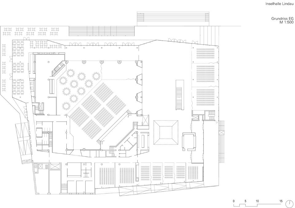
The German firm Auer Weber Architekten has completed the renovation and extension of a conference hall in Lindau, a town on Lake Constance whose historic centre is located on an island. The project primarily looks at the reorganisation of the public spaces overlooking the lake, so as to integrate various functions such as a fire station, offices and services for the harbour master's office and the pier. The narrow entrance to the Inselhalle, built in 1981, has been moved towards a large square overlooking the lake front.
View gallery
The design competition won by Architekten BDA required the preservation of the existing building core and the addition of a new hall. Old and new are bound together by a multi-faceted roof, which makes the building a recognisable and unique figure in the urban landscape. The aluminium envelope enhances conference hall’s sculptural qualities and ties it to another monolith, the nearby parking building. The copper colour of the outer shell gives the building a warm and elegant appearance, tying it to the red tiles of the roofs around it. Glass surfaces envelop and integrate the existing structure.
- Project:
- Inselhalle
- Location:
- Lindau, Germany
- Program:
- conference hall
- Architect:
- Auer Weber Architekten
- Design team:
- Till Richter (person in charge), Florian Zopfy (project director), Doris Binder, Daniela Hohenhorst, Duc Hua, Christina Stein, Daniela Sacher, Mohan Zeng; Parts of the tendering: Axel Hellmes; Construction management: Heinz Wendl, Markus Schoch, Martin Stang, Franz Stinner, Michael Wegner, Moritz Wolf
- Landscape:
- Rainer Schmidt Landschaftsarchitekten
- Structural engineering:
- Boll und Partner
- Installations:
- Ingenieurgesellschaft für Haustechnik Wetzstein, Herrenberg, Raible + Partner
- Area:
- 10,360 mq
- Completion:
- 2018
